Allereerst bedankt dat je contact met ons hebt opgenomen.
We hebben uw verzoek met betrekking tot de eigenschap referentie ontvangen:GE2-83001. Een van onze agenten neemt zo snel mogelijk contact met u op.
Email info@gold-estates.be
Kantoor België: Moeistraat 20G, 9830 St-Martens-Latem
Kantoor Spanje: Av. Marina Baixa 11, 03570 La Villa Joyosa, Alicante
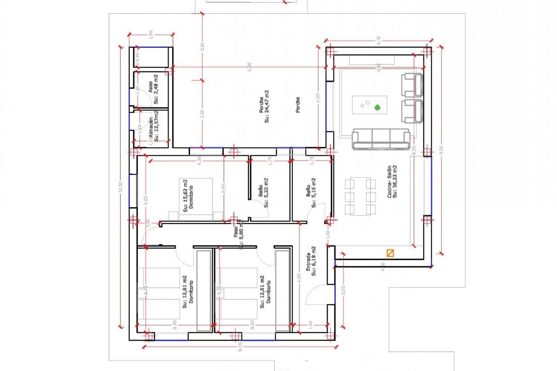
NIEUWBOUW VILLA IN HONDON DE LAS NIEVES Nieuwbouwvilla op een groot perceel in de gemeente Hondón de las Nieves. Moderne gelijkvloerse villa gebouwd op een enorm perceel van 10.000 m2, heeft 3 slaapkamers, 2 badkamers, gastentoilet, open ingerichte keuken met ruime woon-eetkamer, grote ramen van vloer tot plafond met veel natuurlijk licht, ingebouwde kasten. Privé zwembad. Garage voor 2 auto's. Gelegen in een rustige en residentiële omgeving, kun je in deze villa genieten van de privacy en rust die je wenst, terwijl je toch op loopafstand bent van voorzieningen, winkels, supermarkten, restaurants. Het is de perfecte balans tussen serene afzondering en het gemak van modern leven. In deze urbanisatie in Hondón de las Nieves is elke dag een kans om in contact te komen met de wereld. Hondón de las Nieves is een stad in de Valenciaanse Gemeenschap, Spanje. Het ligt in het zuidwesten van de provincie Alicante, in de regio Vinalopó Medio. De stranden en de luchthaven van Alicante liggen op slechts 30 minuten rijden.
Deze informatie is hier onderhevig aan fouten en maakt geen deel uit van een contract. De aanbieding kan zonder kennisgeving worden gewijzigd of ingetrokken. Prijzen zijn exclusief aankoopkosten.
Jouw droomleven in Spanje begint met onze handige gids! In 4 stappen maken we jou wegwijs onder de Spaanse zon.
E-Mail info@gold-estates.be
Kantoor België: Moeistraat 20G, 9830 St-Martens-Latem
Kantoor Spanje: Av. Marina Baixa 11, 03570 La Villa Joyosa, Alicante
Vind uw droomhuis door uw panden te bewaren en meldingen te ontvangen over nieuwe beschikbare panden.
Nieuwe gebruiker registrerenAllereerst bedankt dat je contact met ons hebt opgenomen.
We hebben uw verzoek met betrekking tot de eigenschap referentie ontvangen:GE2-83001. Een van onze agenten neemt zo snel mogelijk contact met u op.
Allereerst bedankt dat je contact met ons hebt opgenomen.
We hebben een aanvraag voor een rapport ontvangen als u de prijs van het onroerend goed met de referentie verlaagt: GE2-83001
Bekijk in de tussentijd eens een selectie van vergelijkbare woningen die voor u van belang kunnen zijn: