Allereerst bedankt dat je contact met ons hebt opgenomen.
We hebben uw verzoek met betrekking tot de eigenschap referentie ontvangen:GE2-15625. Een van onze agenten neemt zo snel mogelijk contact met u op.
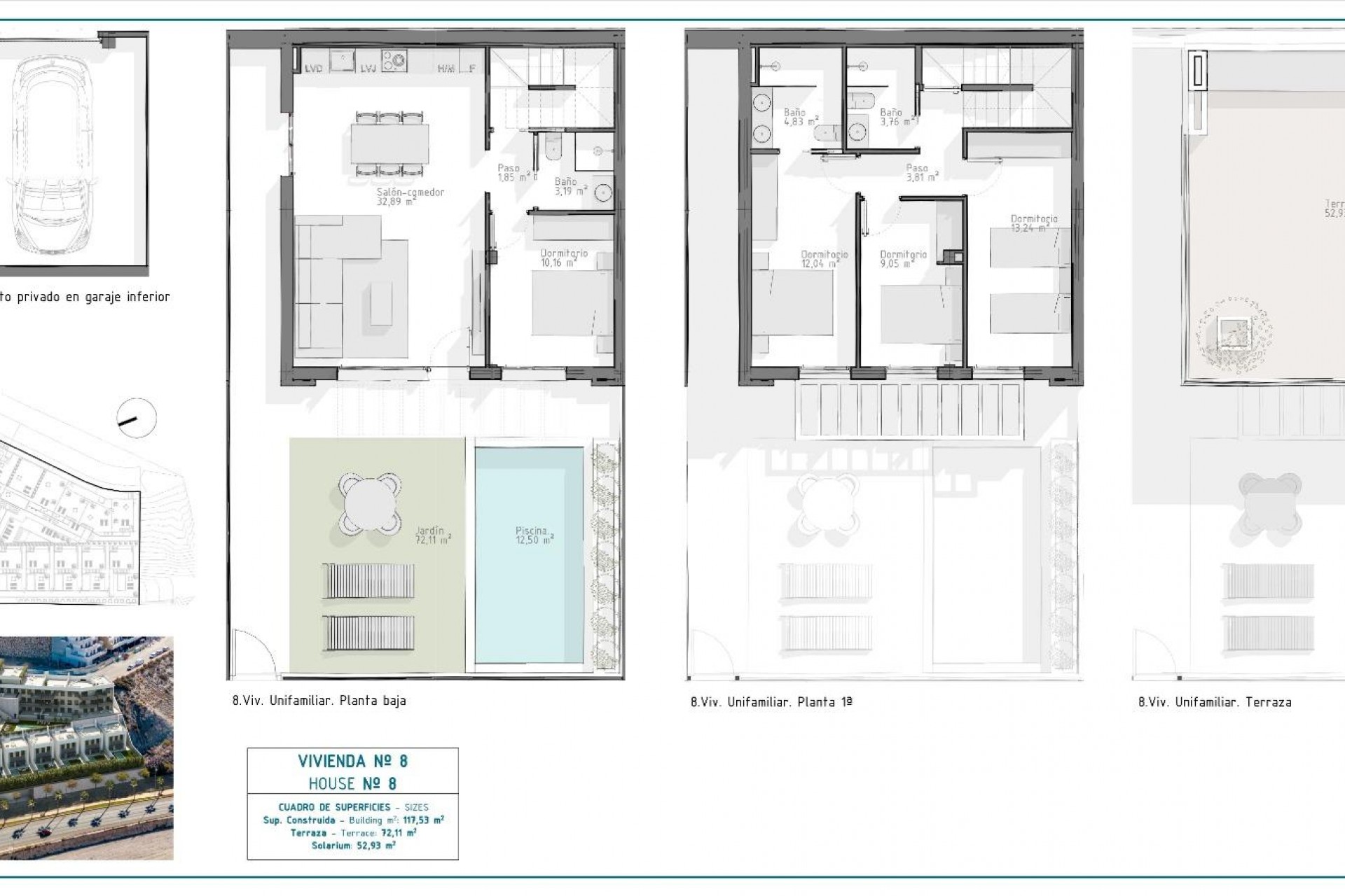
NIEUWBOUW WOONCOMPLEX IN AGUILAS Nieuwbouw exclusief wooncomplex met appartementen en villa's in Aguilas. Nieuwbouw complex bestaat uit 36 appartementen met 3 en 2 slaapkamers verdeeld over 4 moderne blokken, uitgerust met 2 gemeenschappelijke zwembaden en gemeenschappelijke garage met parkeerplaats en berging voor elke woning; en 10 elegante villa's met 4 slaapkamers en 3 badkamers, elk met een eigen zwembad. Dit wooncomplex is ontworpen met het oog op uitmuntendheid en biedt ruime terrassen op de begane grond en de eerste verdiepingen en solariums op de bovenste verdiepingen, waar het uitzicht op de horizon een canvas van ervaringen wordt. De huizen hebben volledig uitgeruste keukens en badkamers en een pre-installatie voor gekanaliseerde airconditioning. Complex gelegen op 800 meter van de zee, naast een winkelcentrum. Aguilas ligt in een uitzonderlijk gebied aan de Costa Cálida op slechts 50 minuten van het nieuwe vliegveld van Murcia of Almeria en 1u30 van het vliegveld van Alicante. Aguilas is een kleine stad met veel voorzieningen, een lang strand om te wandelen en te ontspannen in de zon. Het is een perfecte enclave om te duiken, watersporten te beoefenen, te wandelen en te golfen. Het heeft 28 kilometer kustlijn waarin zich 35 stranden bevinden met verschillende soorten zanddikte gelegen in verschillende landschappen, van baaien en maagdelijke stranden in een natuurlijke omgeving tot de stedelijke stranden van de stad Aguilas. Het hele jaar door heerst er een warm woestijnklimaat met een jaargemiddelde van 22º met milde temperaturen in de winter en zeer heet in de zomer.