Allereerst bedankt dat je contact met ons hebt opgenomen.
We hebben uw verzoek met betrekking tot de eigenschap referentie ontvangen:GE2-59680. Een van onze agenten neemt zo snel mogelijk contact met u op.
Email info@gold-estates.be
Kantoor België: Moeistraat 20G, 9830 St-Martens-Latem
Kantoor Spanje: Av. Marina Baixa 11, 03570 La Villa Joyosa, Alicante
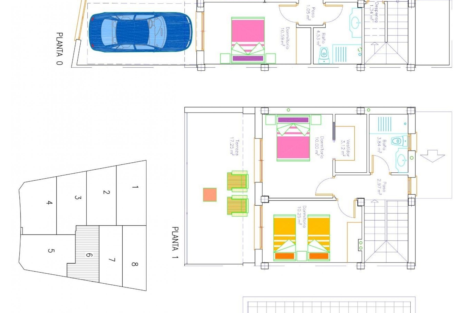
NIEUWBOUW HALFVRIJSTAANDE VILLA'S IN SAN PEDRO DEL PINATAR Nieuwbouwproject van 8 onafhankelijke villa's en halfvrijstaande villa's in San Pedro Pinatar, allemaal met privézwembad, terras, solarium en parkeerplaats op het perceel. Elke woning heeft 3 slaapkamers en 2 complete badkamers, open keuken met ruime woonkamer, inbouwkasten. De bevoorrechte ligging van San Pedro del Pinatar aan de Mar Menor en de Middellandse Zeekust trekt mensen aan die geïnteresseerd zijn in zeilen en watersporten, met ligplaatsen in de jachthaven en zeilclubs, terwijl de stranden en natuurlijke modderbaden mensen aantrekken die op zoek zijn naar veilige zon, zee en strand. San Pedro del Pinatar heeft een gevestigde gemeenschap en biedt een uitstekend aanbod aan activiteiten, waaronder een overdekt zwembad en sportfaciliteiten, maar ook een jaarrond het hele jaar door een programma van sociale activiteiten door het aangename winterweer. De voordelen van de modderbaden, typisch voor de regio, of het rustige water van de Mar Menor, hebben de groei van Lo Pagán bevorderd, dat momenteel over allerlei voorzieningen beschikt. Bovendien heeft het een uitstekende ligging, op slechts 5 minuten van het commerciële centrum Dos Mares.
Deze informatie is hier onderhevig aan fouten en maakt geen deel uit van een contract. De aanbieding kan zonder kennisgeving worden gewijzigd of ingetrokken. Prijzen zijn exclusief aankoopkosten.
Jouw droomleven in Spanje begint met onze handige gids! In 4 stappen maken we jou wegwijs onder de Spaanse zon.
E-Mail info@gold-estates.be
Kantoor België: Moeistraat 20G, 9830 St-Martens-Latem
Kantoor Spanje: Av. Marina Baixa 11, 03570 La Villa Joyosa, Alicante
Vind uw droomhuis door uw panden te bewaren en meldingen te ontvangen over nieuwe beschikbare panden.
Nieuwe gebruiker registrerenAllereerst bedankt dat je contact met ons hebt opgenomen.
We hebben uw verzoek met betrekking tot de eigenschap referentie ontvangen:GE2-59680. Een van onze agenten neemt zo snel mogelijk contact met u op.
Allereerst bedankt dat je contact met ons hebt opgenomen.
We hebben een aanvraag voor een rapport ontvangen als u de prijs van het onroerend goed met de referentie verlaagt: GE2-59680
Bekijk in de tussentijd eens een selectie van vergelijkbare woningen die voor u van belang kunnen zijn: