Allereerst bedankt dat je contact met ons hebt opgenomen.
We hebben uw verzoek met betrekking tot de eigenschap referentie ontvangen:GE2-18089. Een van onze agenten neemt zo snel mogelijk contact met u op.
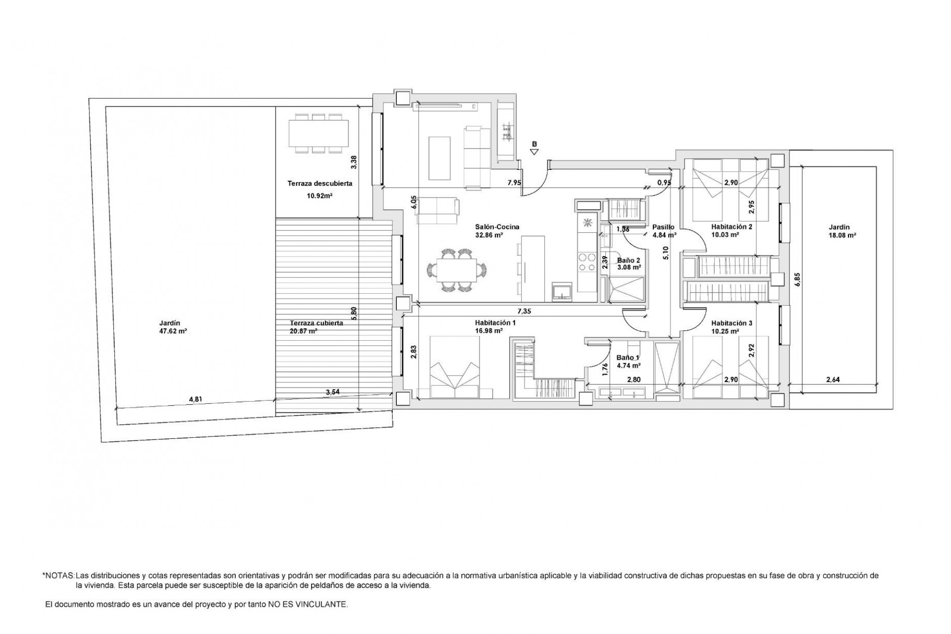
Nieuw wooncomplex in de buurt van Doña Julia Golf - Moderne huizen met spectaculair uitzicht Exclusieve nieuwbouwwoningen in Casares, Costa del Sol Ontdek dit prachtige nieuwe wooncomplex gelegen in het gewilde gebied van Doña Julia Golf, in Casares, een van de meest charmante stadjes aan de Costa del Sol. Verscholen tussen de verfijning van Estepona en de authentieke schoonheid van Casares Pueblo, biedt deze locatie een uitzonderlijke levensstijl omringd door golfbanen, mediterrane uitzichten en natuurlijke sereniteit. Hier ervaar je het beste van twee werelden: een vredig toevluchtsoord in een natuurlijke omgeving, terwijl je op slechts enkele minuten van het strand, de jachthavens en een scala aan toprestaurants en vrijetijdsopties bent. Toplocatie met uitstekende verbindingen Strand - 5 minuten te voet Supermarkten, restaurants, apotheken - in de buurt Jachthaven La Duquesa - 10 minuten met de auto Estepona centrum - 15 minuten met de auto Puerto Banús - 25 minuten met de auto Sotogrande - 25 minuten met de auto Golfbanen (Doña Julia Golf, Finca Cortesín, Sotogrande, Estepona, Marbella) - Binnen 6 tot 20 minuten rijden Luchthaven Málaga - 1u 10 min met de auto Luchthaven Gibraltar - 45 min met de auto Een verscheidenheid aan woonopties voor elke levensstijl Dit exclusieve project bestaat uit negen unieke woningen, elk zorgvuldig ontworpen om maximaal comfort, ruimte en een adembenemend uitzicht te bieden. Kies uit: Appartementen op de begane grond met privétuinen - Ideaal voor wie van buitenruimtes houdt. Duplexen met 2 slaapkamers - Perfect voor koppels of kleine gezinnen. Duplexen met 3 slaapkamers - Ruim en functioneel voor grotere gezinnen. Penthouses met 2 slaapkamers - Met panoramisch uitzicht en ultieme privacy. Meergezinswoningen met 3 slaapkamers - Ontworpen voor degenen die extra ruimte en gemak nodig hebben. Hoogwaardige kenmerken & modern ontwerp Elke woning is gebouwd met materialen van topkwaliteit en moderne afwerkingen, wat zorgt voor een luxe en comfortabele woonervaring. Kenmerken zijn onder andere: Volledig uitgeruste keukens met Siemens apparatuur of gelijkwaardig. Airconditioning met kanaalaansluiting (warm en koud). Aerothermisch systeem voor energiezuinig warm water. Versterkte veiligheidsingangsdeur. Thermisch onderbroken aluminium ramen met dubbele beglazing voor optimale isolatie. Privé parkeerplaats en berging inbegrepen. Exclusieve gemeenschapsvoorzieningen Dit omheinde wooncomplex is ontworpen om een eersteklas levensstijl te bieden, met: Oneindig zwembad met solarium. Prachtig aangelegde tuinen voor ontspanning en vrije tijd. Veilige, privé urbanisatie met gecontroleerde toegang voor gemoedsrust. De charme van Casares - een perfecte mix van zee en bergen Casares is een van de meest pittoreske witte dorpen van Andalusië en biedt een unieke mix van schoonheid aan het strand en avontuur in de bergen. Met meer dan 2000 meter ongerepte stranden, kristalhelder water en prachtige wandelpaden in de Sierra Bermeja is Casares de perfecte bestemming voor golfliefhebbers, natuurliefhebbers en mensen die op zoek zijn naar een ontspannen maar levendige levensstijl. Jouw droomhuis aan de Costa del Sol wacht op je Of je nu op zoek bent naar een permanente woning, vakantieverblijf of investeringsmogelijkheid, dit project biedt ongeëvenaard comfort, adembenemend uitzicht en een onovertroffen locatie. Neem vandaag nog contact met ons op voor meer informatie of om een bezichtiging te plannen!