Dziękujemy za kontakt z naszym biurem
We have received your request regarding the property reference: GE-25452. One of our agents will contact you as soon as possible.
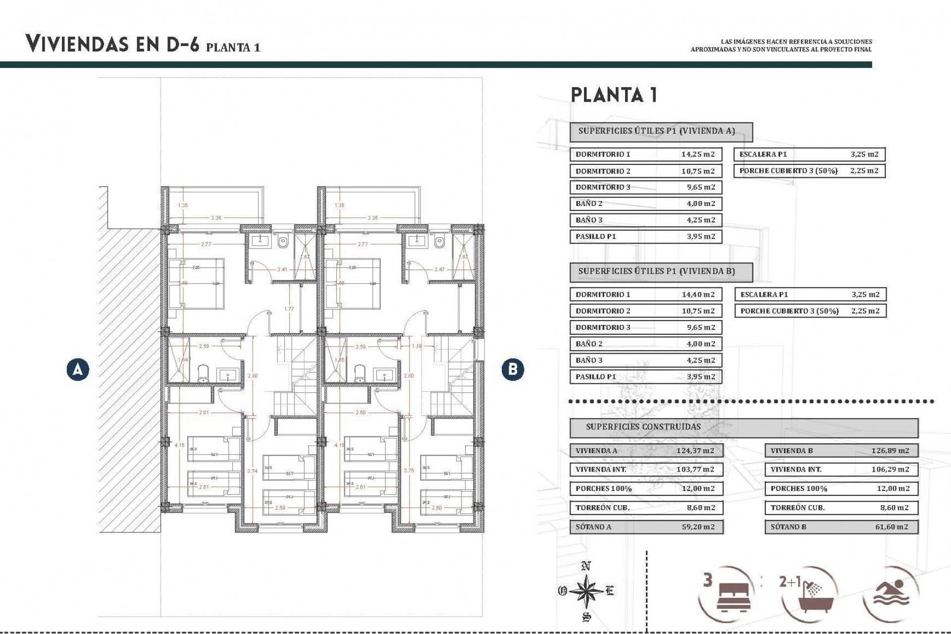
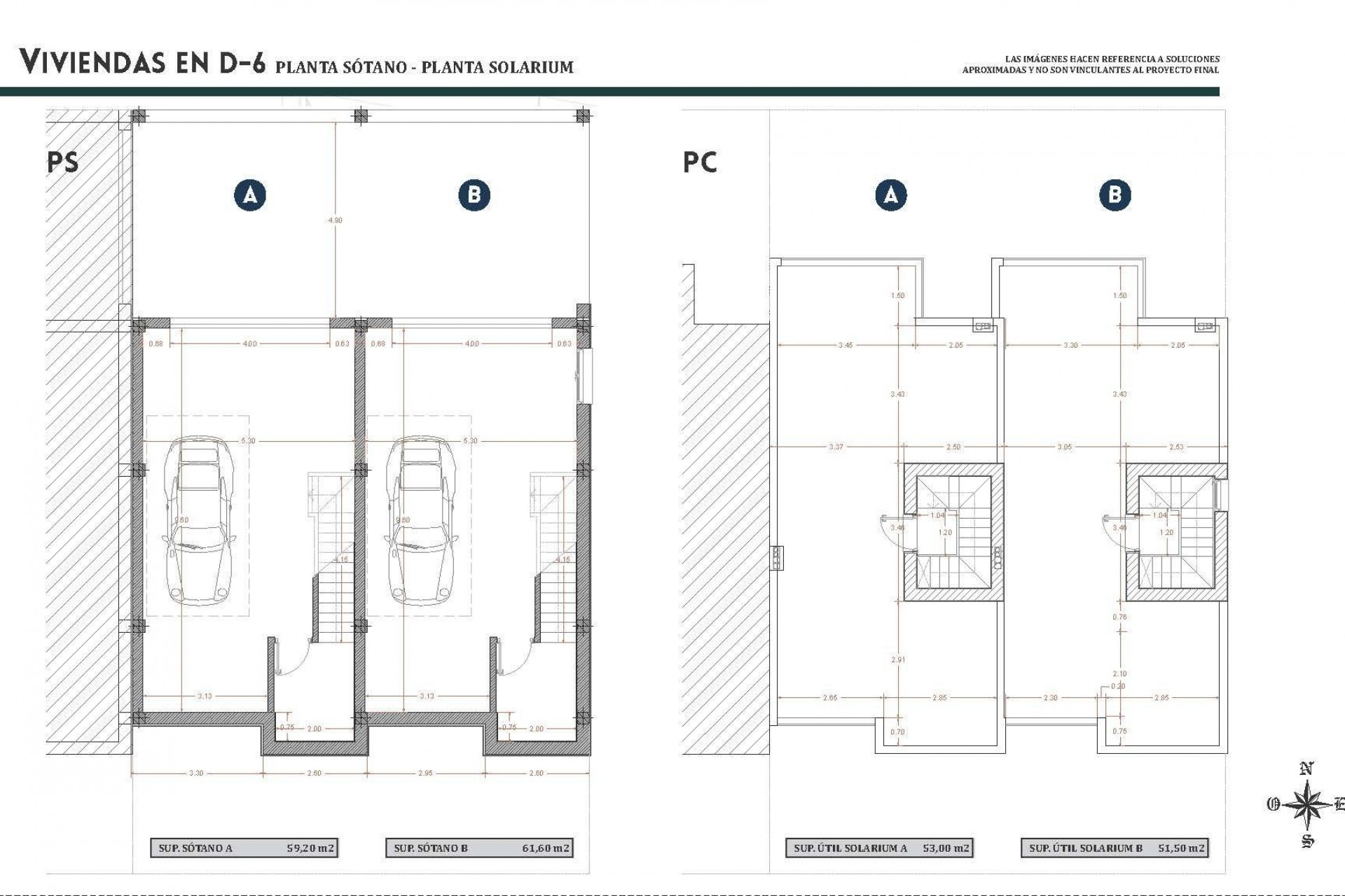
Nowe domy szeregowe z solarium i garażem w piwnicy w Bigastro Vega Baja Ekskluzywna inwestycja obejmująca tylko dwa nowoczesne domy Ten butikowy projekt obejmuje tylko dwa domy szeregowe w spokojnej miejscowości Bigastro, położonej w regionie Vega Baja na południowym wybrzeżu Costa Blanca. Domy te, zaprojektowane z praktycznym rozkładem na kilku poziomach, łączą przestrzeń, komfort i energooszczędność w dobrze skomunikowanej okolicy mieszkalnej. Bigastro słynie z spokojnej atmosfery, tradycyjnego hiszpańskiego charakteru i doskonałego dostępu do pobliskich miast, plaż i usług. Oferuje relaksujący styl życia, a jednocześnie znajduje się w pobliżu wszystkiego, co potrzebne do codziennego życia, co czyni je idealnym miejscem zarówno do stałego zamieszkania, jak i na wakacje. Przestronny układ na czterech poziomach Każda nieruchomość składa się z piwnicy, parteru, pierwszego piętra i solarium na dachu, zapewniając przestronne wnętrza i zewnętrzne strefy mieszkalne. Piwnica o powierzchni 59 m2 została zaprojektowana jako prywatny garaż z automatyczną bramą, oferujący bezpieczne miejsce parkingowe i dodatkową przestrzeń do przechowywania. Na parterze znajduje się jasny salon z otwartą kuchnią, toaleta dla gości oraz dwa tarasy, jeden z przodu i jeden z tyłu, zapewniające naturalne światło i wentylację przez cały dzień. Na pierwszym piętrze znajdują się 3 sypialnie i 2 łazienki, z których jedna jest łazienką przy sypialni, a także dodatkowy taras. Na najwyższym poziomie prywatne solarium na dachu o powierzchni około 40 m2 stanowi idealne miejsce do relaksu, opalania się lub stworzenia strefy wypoczynkowej na świeżym powietrzu. Wysokiej jakości wyposażenie i energooszczędne systemy Domy te zostały zbudowane z nowoczesnych materiałów i przemyślanych detali, aby zapewnić komfort i wydajność, w tym: Wzmocnione drzwi wejściowe System aerotermiczny do podgrzewania wody Fotowoltaiczne panele słoneczne Elektryczne rolety w salonie i sypialniach Preinstalacja klimatyzacji kanałowej Zmotoryzowana brama garażowa Mieszkańcy mają również dostęp do wspólnego basenu na terenie urbanizacji, co stanowi dodatkową wartość dla wypoczynku i relaksu. Dobrze skomunikowana lokalizacja w pobliżu plaż i usług Centrum miasta Bigastro 0,5 km Miasto Orihuela 5 km Plaże Guardamar del Segura 15 km Centrum handlowe Zenia Boulevard 20 km Szpital Vega Baja 10 km Międzynarodowe lotnisko w Alicante 48 km Kilka pól golfowych w promieniu 15 km Pobliska autostrada AP 7 zapewnia szybkie połączenia z Alicante, Murcją i okolicznymi nadmorskimi miastami. Doskonała okazja w rozwijającej się dzielnicy mieszkaniowej Dzięki lokalnym sklepom, szkołom, obiektom sportowym, parkom i restauracjom Bigastro staje się coraz bardziej popularne wśród krajowych i międzynarodowych nabywców poszukujących wysokiej jakości życia i dobrych połączeń komunikacyjnych. Skontaktuj się z nami już dziś, aby uzyskać więcej informacji lub umówić się na wizytę w tych ekskluzywnych, nowo wybudowanych kamienicach w Bigastro.