Dziękujemy za kontakt z naszym biurem
We have received your request regarding the property reference: GE-81085. One of our agents will contact you as soon as possible.
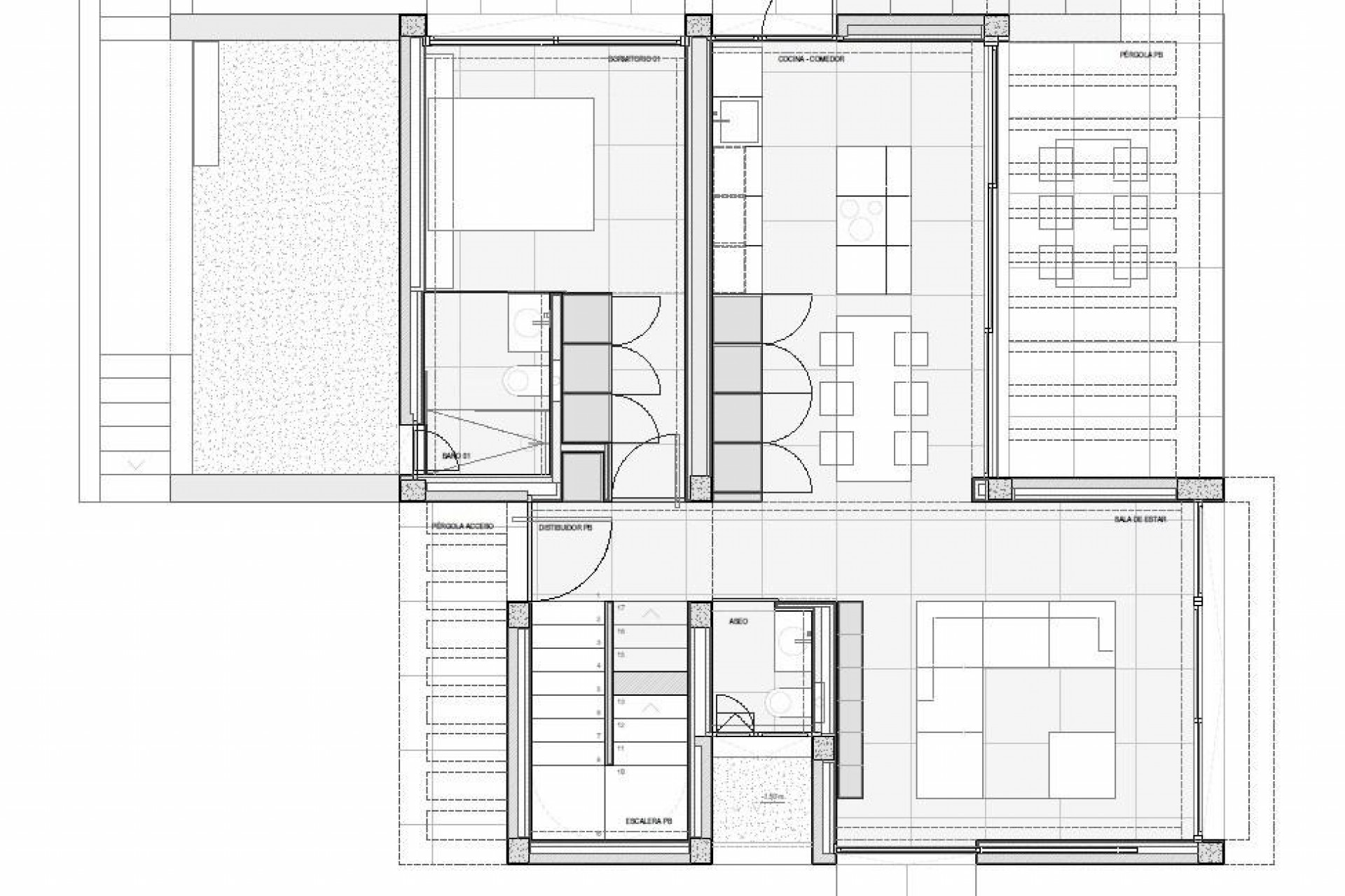
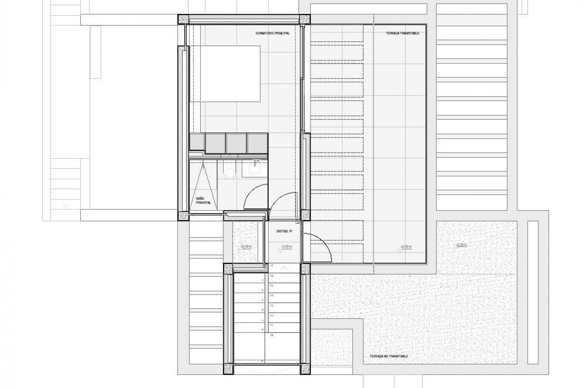
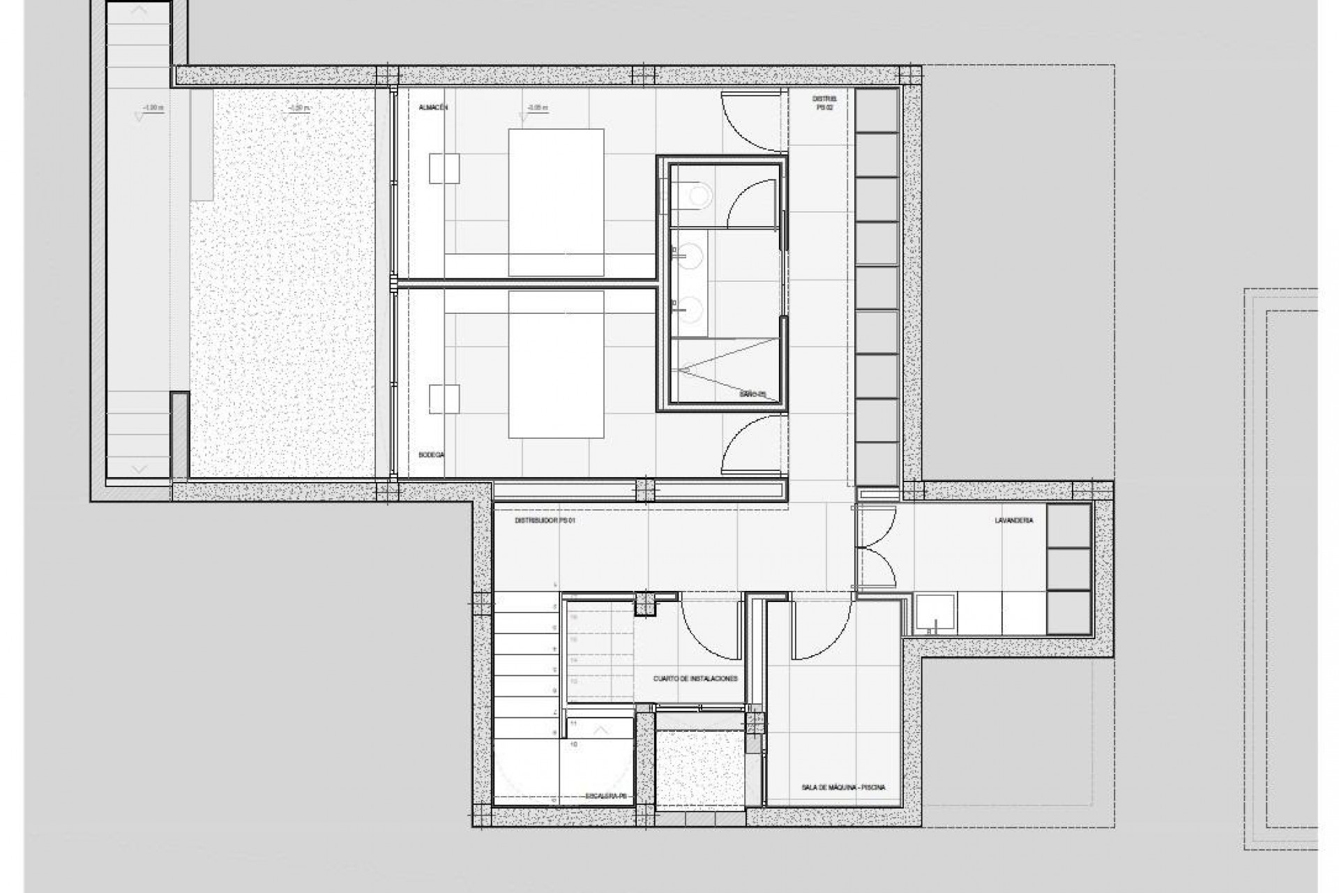
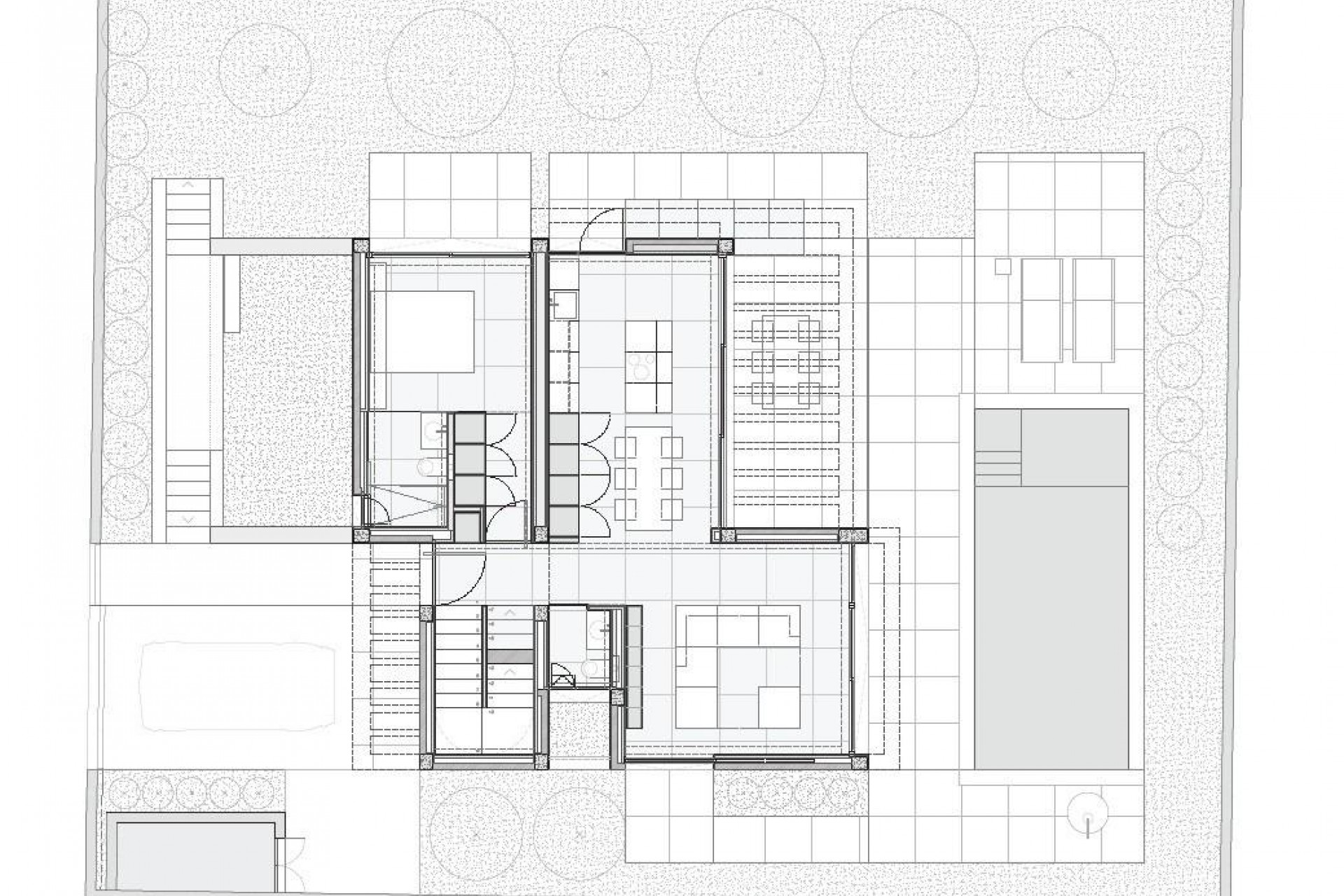
Nowa luksusowa willa z widokiem na morze w La Alberca Polop Nowoczesny design w spokojnej górskiej okolicy Ta wyjątkowa nowa willa znajduje się w La Alberca, spokojnej dzielnicy mieszkalnej w górach Polop. Otoczona lasem i naturą, nieruchomość oferuje panoramiczne widoki na Morze Śródziemne, góry i historyczne miasto Polop. Zaprojektowana z elegancją architektury pionowej, willa łączy prywatność, funkcjonalność i płynne przejście między wnętrzem a otoczeniem zewnętrznym. Polop to urokliwa wioska na Costa Blanca, znana z tradycyjnej atmosfery i naturalnego piękna. Willa znajduje się w pobliżu wszystkich usług w La Nucia, w tym sklepów, restauracji, centrów sportowych i szkół. Plaże i tętniące życiem nadmorskie miasteczka, takie jak Benidorm i Altea, znajdują się zaledwie 15 minut drogi stąd. Przemyślany rozkład pomieszczeń na trzech poziomach Na parterze znajduje się hol wejściowy z wbudowaną szafą i toaletą dla gości. Na tym poziomie znajduje się jedna sypialnia z łazienką i podnoszonymi drzwiami okiennymi od podłogi do sufitu, które otwierają się na prywatny taras boczny. Jasny, otwarty salon i jadalnia łączą się bezpośrednio z tarasem pokrytym pergolą i prywatnym basenem ze słoną wodą, tworząc harmonijny styl życia wewnątrz i na zewnątrz. Najwyższe piętro jest przeznaczone wyłącznie na apartament główny. Ten prywatny poziom oferuje sypialnię z łazienką i dostępem do spektakularnego tarasu o powierzchni 40 m2 oraz zapierającymi dech w piersiach panoramicznymi widokami na morze i góry, zapewniając maksymalną prywatność i komfort. W piwnicy znajdują się dwie dodatkowe sypialnie z dużymi oknami wychodzącymi na pięknie zaprojektowany zagłębiony dziedziniec, który wypełnia przestrzeń naturalnym światłem. Wspólna łazienka, w pełni wyposażona pralnia z urządzeniami Haier oraz dwa przestronne pomieszczenia techniczne i magazynowe uzupełniają tę kondygnację. Najwyższej jakości wyposażenie i energooszczędność Willa posiada wysokiej jakości wykończenia i zaawansowane systemy, takie jak: Kuchnia z wyspą centralną i zintegrowanymi urządzeniami BOSCH Blaty z naturalnego kamienia wewnątrz i na zewnątrz Panoramiczne okna z wzmocnionym szkłem chroniącym przed słońcem System klimatyzacji aerotermicznej Mitsubishi Instalacja podgrzewania podłogowego Klasa efektywności energetycznej A Instalacja pod system inteligentnego domu Prywatny parking na dwa samochody Krajobrazowy ogród śródziemnomorski z automatycznym nawadnianiem i eleganckim dziedzińcem na niższym poziomie zwiększają prywatność i sprzyjają relaksowi. Dach jest przygotowany do montażu paneli słonecznych. Doskonała lokalizacja i odległości Centrum Polop 2 km La Nucia 4 km Plaże Benidorm 12 km Altea 10 km Villaitana Golf 14 km Lotnisko w Alicante 65 km Odkryj swoje prywatne schronienie w Polop Ta nowoczesna willa z widokiem na morze oferuje design, prywatność i komfort w jednym z najbardziej atrakcyjnych naturalnych miejsc na Costa Blanca. Skontaktuj się z nami już dziś, aby umówić się na prywatną wizytę i zapewnić sobie nowy dom w La Alberca Polop.