Dziękujemy za kontakt z naszym biurem
We have received your request regarding the property reference: MI-78239. One of our agents will contact you as soon as possible.
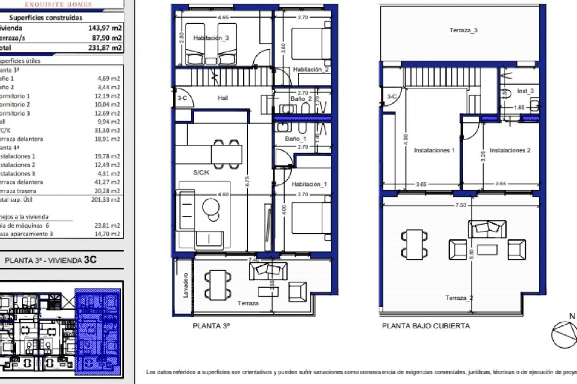
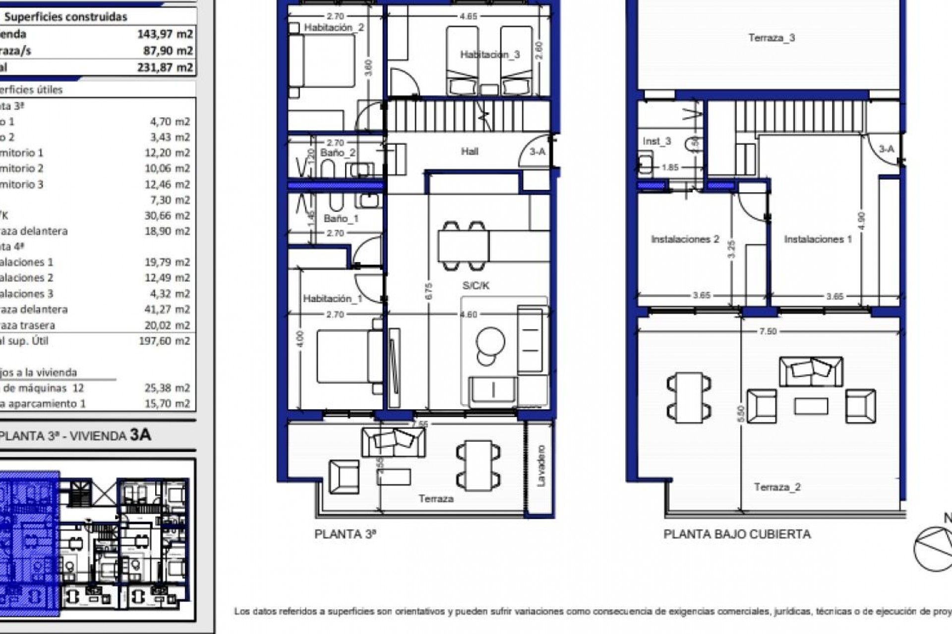
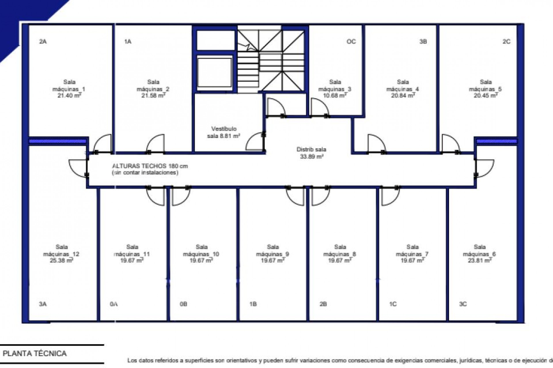
Odkryj ekskluzywną ofertę tylko 12 mieszkań w Villajoyosa, stworzonych dla tych, którzy poszukują doskonałej równowagi między nowoczesnością, luksusem a uprzywilejowanym otoczeniem. Każdy dom został zaprojektowany z przestronnymi wnętrzami, prywatnymi tarasami i wykończeniami najwyższej jakości, zapraszając do korzystania z klimatu śródziemnomorskiego przez cały rok. Oferta obejmuje wspólne strefy z basenem i ogrodami, przeznaczone do wypoczynku i rekreacji, w otoczeniu spokoju i dobrego samopoczucia. Strategiczna lokalizacja, zaledwie kilka metrów od Playa Centro, zostanie wzmocniona przez budowę windy, która ułatwi bezpośredni dostęp z górnych obszarów, zapewniając wyjątkowe doświadczenie nad morzem, w pobliżu mariny i tradycyjnego portu rybackiego. Zlokalizowane w jednej z najbardziej pożądanych dzielnic Villajoyosa, te budynki gwarantują wygodę posiadania wszystkiego w zasięgu ręki: supermarkety, restauracje, lokalne sklepy i centrum miasta są w zasięgu krótkiego spaceru. Ponadto w mniej niż 5 minut można dojść na plażę i skorzystać z szerokiej oferty gastronomicznej, kulturalnej i usługowej, która charakteryzuje to urocze nadmorskie miasto. Zakup jednego z tych mieszkań to znacznie więcej niż kupno nieruchomości: to inwestycja w komfort, ekskluzywność i jakość życia na Costa Blanca. Dzięki solidnej konstrukcji, najwyższej jakości materiałom i projektowi stworzonym dla najbardziej wymagających nabywców, te mieszkania są idealne zarówno jako stałe miejsce zamieszkania, drugi dom lub bezpieczna inwestycja. Doświadcz śródziemnomorskiego klimatu w pełni w jednym z najbardziej atrakcyjnych miejsc Villajoyosa.