Dziękujemy za kontakt z naszym biurem
We have received your request regarding the property reference: CL-46662. One of our agents will contact you as soon as possible.
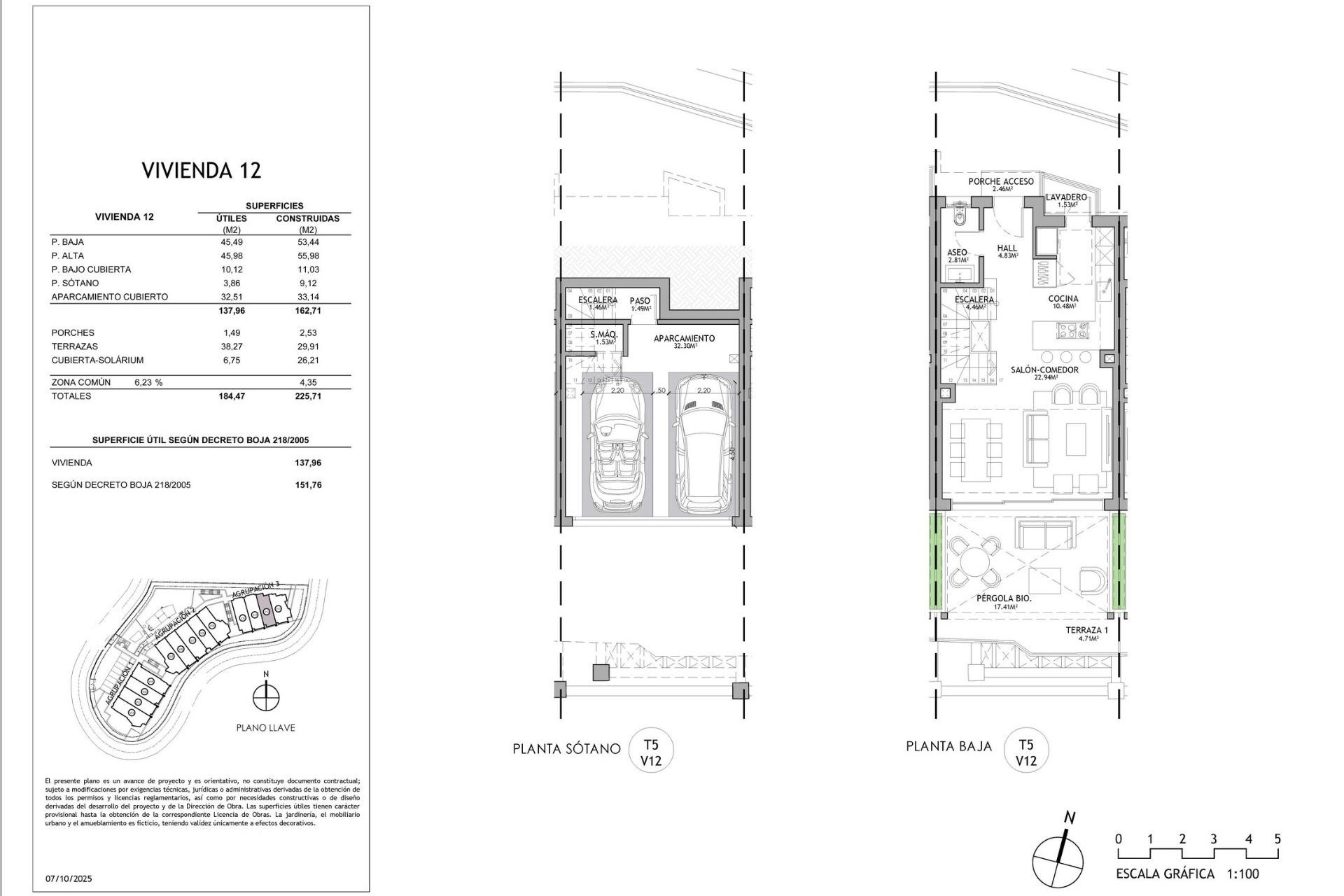
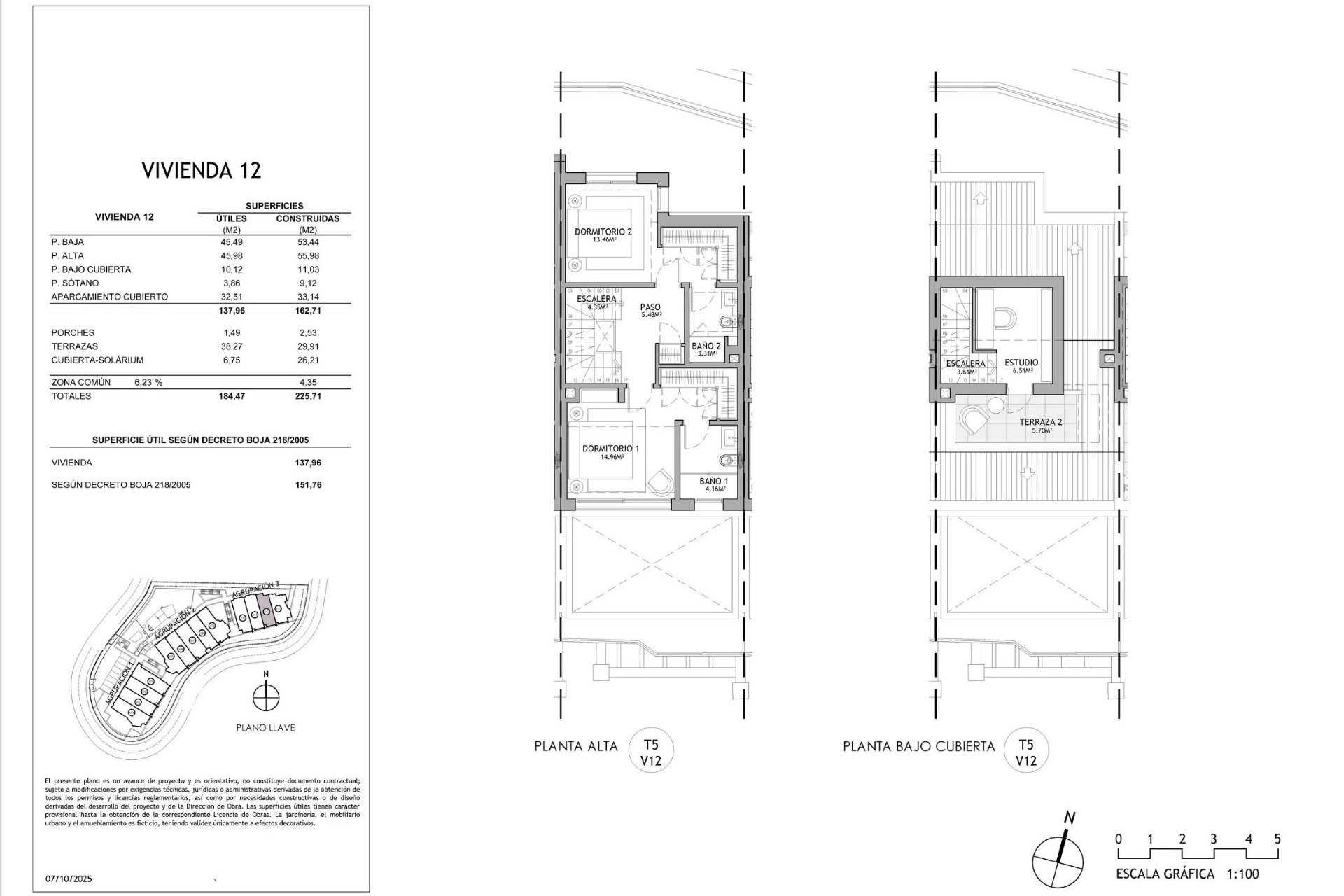
Nowe domy szeregowe z widokiem na morze w pobliżu pola golfowego Miraflores w Calahonda Ekskluzywna inwestycja mieszkaniowa w doskonałej lokalizacji w Calahonda Ta ekskluzywna nowa inwestycja składa się z zaledwie 13 domów szeregowych z dwiema lub trzema sypialniami oraz domów narożnych, położonych na wzniesieniu w pobliżu pola golfowego Miraflores w Calahonda. Okolica ta znana jest z spokojnej atmosfery, a jednocześnie oferuje doskonały dostęp do plaż, pól golfowych i codziennych usług. Calahonda leży pomiędzy Marbellą a Fuengirolą, co czyni ją jedną z najdogodniejszych i najbardziej uznanych lokalizacji na Costa del Sol. Domy z widokiem na morze, zapewniające prywatność i orientację Każdy dom ma otwarty widok na morze ze wszystkich poziomów mieszkalnych dzięki podwyższonemu położeniu i starannemu ustawieniu. Solaria na dachu oferują imponujące panoramiczne widoki na wybrzeże Morza Śródziemnego, tworząc prywatną przestrzeń na świeżym powietrzu dla każdego właściciela domu. Orientacja i osłony architektoniczne zapewniają idealną równowagę między prywatnością a niezakłóconymi widokami. Przestronne tarasy i otwarta przestrzeń dzienna Kamienice zostały zaprojektowane tak, aby rozszerzyć przestrzeń mieszkalną na zewnątrz dzięki obszernym tarasom, idealnym do spożywania posiłków, relaksu lub cieszenia się morską bryzą. Otwarte wnętrza łączą kuchnię, jadalnię i salon z bezpośrednim dostępem do tarasów, tworząc jasne i przestronne przestrzenie z nieprzerwanym widokiem na morze. Niektóre domy posiadają również prywatne ogrody na parterze. Elastyczne układy dla nowoczesnego życia Domy są rozmieszczone na dwóch piętrach oraz prywatnym solarium na dachu. Na parterze znajduje się otwarta część dzienna i jadalnia z zintegrowaną kuchnią, pralnią i toaletą dla gości. Na piętrze znajdują się dwie lub trzy sypialnie dwuosobowe i dwie łazienki, w tym główna sypialnia z łazienką. Kilka solariów na dachu obejmuje studio, które zapewnia dodatkową, wszechstronną przestrzeń do wykorzystania jako domowe biuro lub miejsce wypoczynku. Najwyższej jakości specyfikacje i udogodnienia Wszystkie nieruchomości są zbudowane z wysokiej jakości materiałów i wyposażone w nowoczesne systemy. Wyposażenie obejmuje w pełni zainstalowaną klimatyzację i ogrzewanie systemem aerotermicznym oraz w pełni wyposażoną kuchnię ze sprzętem marki Siemens. Okna od podłogi do sufitu maksymalizują ilość naturalnego światła i wzmacniają połączenie między przestrzenią wewnętrzną a zewnętrzną. Większość mieszkań posiada dwa podziemne miejsca parkingowe, a wybrane domy oferują również prywatną komórkę lokatorską. Wspólne obszary w stylu kurortu W centrum osiedla znajduje się basen dla mieszkańców z przestronnymi tarasami słonecznymi, zaprojektowanymi tak, aby stworzyć spokojną atmosferę w stylu kurortu. Ta wspólna przestrzeń jest idealna do relaksu po rundzie golfa lub cieszenia się śródziemnomorskim klimatem z rodziną i przyjaciółmi. Doskonała komunikacja i pobliskie udogodnienia Pole golfowe Miraflores Golf znajduje się w odległości około 1 km, co sprawia, że inwestycja ta jest idealna dla miłośników golfa. Plaże Calahonda znajdują się w odległości około 1,4 km od rezydencji i oferują szeroki wybór barów plażowych i atrakcji wodnych. Marbella i La Cala de Mijas znajdują się w niewielkiej odległości samochodem, a lotnisko w Maladze jest dobrze skomunikowane dzięki głównej drodze nadbrzeżnej. Odległości do najważniejszych punktów Miraflores Golf: 1 km Plaża Calahonda: 1,4 km La Cala de Mijas: 6 km Marbella: 15 km Marina Puerto Banus: 18 km Lotnisko w Maladze: 35 km Zabezpiecz sobie dom z widokiem na morze na Costa del Sol Skontaktuj się z nami już dziś, aby uzyskać więcej informacji lub umówić się na prywatną prezentację tych ekskluzywnych nowych domów szeregowych w pobliżu Miraflores Golf w Calahonda.