Dziękujemy za kontakt z naszym biurem
We have received your request regarding the property reference: GE-46731. One of our agents will contact you as soon as possible.
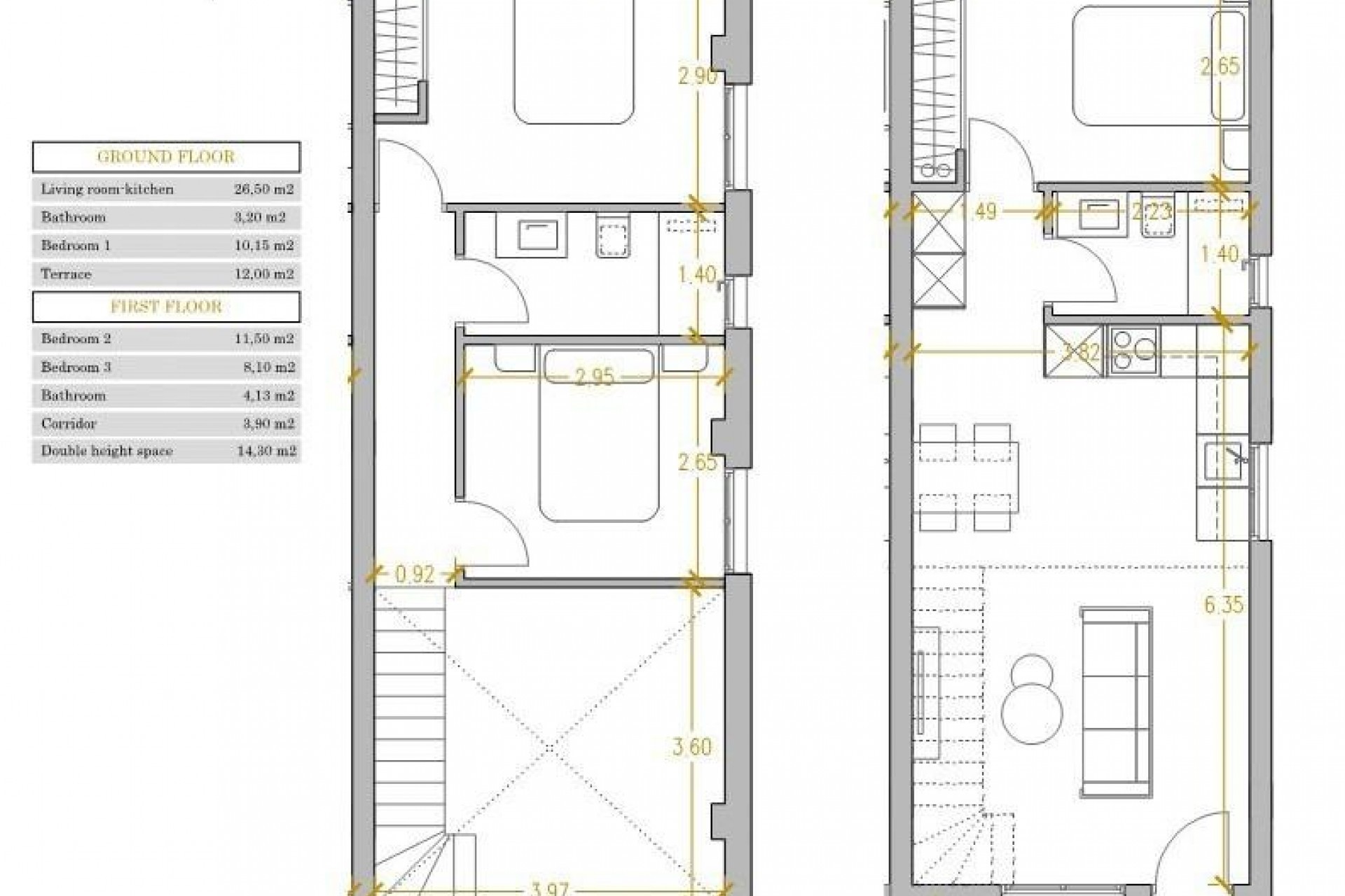
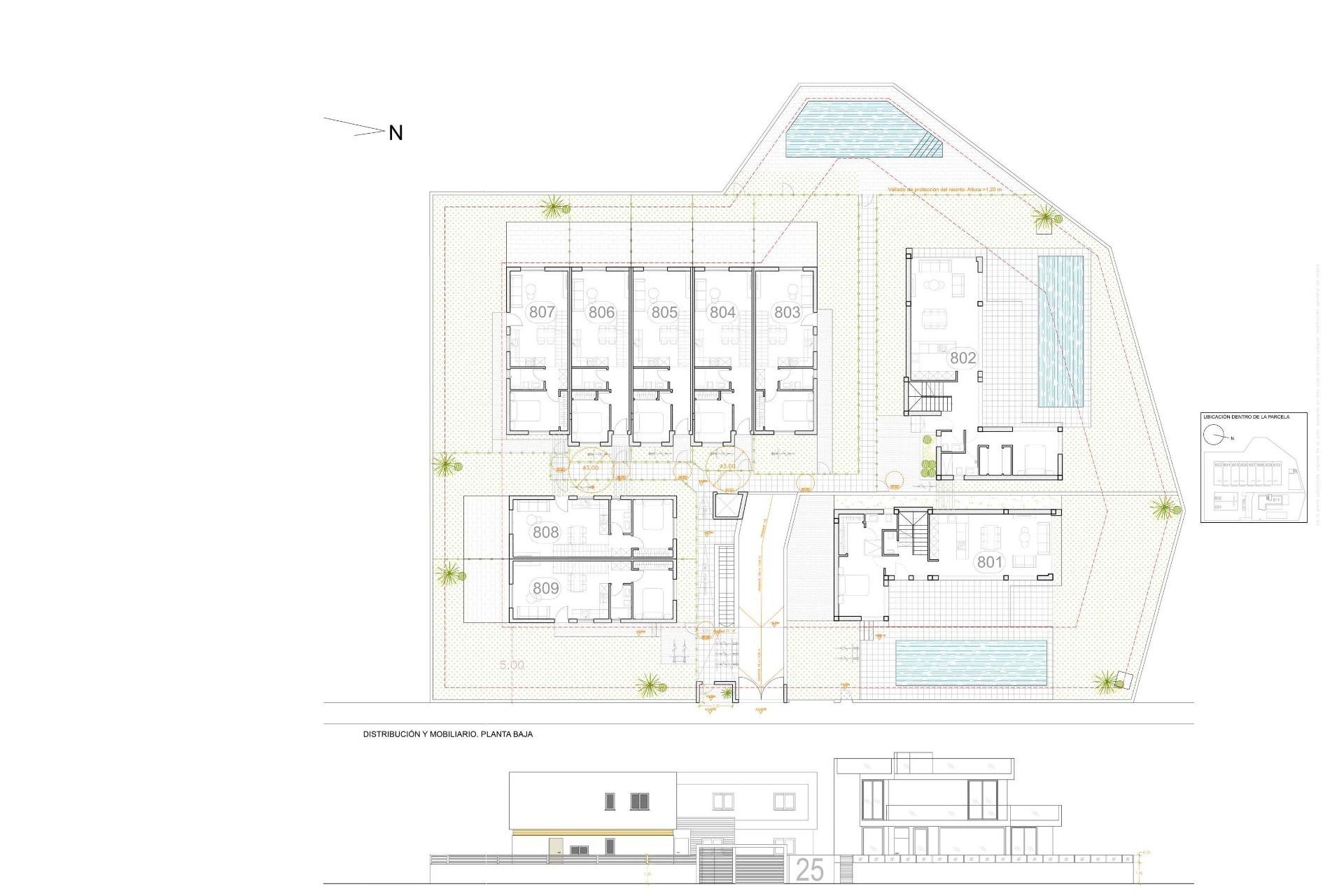
Ekskluzywny nowy kompleks mieszkaniowy w Orihuela Costa Uprzywilejowana lokalizacja w samym sercu Costa Blanca Ten nowoczesny zamknięty kompleks mieszkaniowy znajduje się w Orihuela Costa, jednym z najbardziej poszukiwanych obszarów Costa Blanca, zaledwie 4 km od plaż Orihuela Costa. Jego doskonała lokalizacja pozwala cieszyć się śródziemnomorskim słońcem przez cały rok, z dostępem do szerokiej gamy rekreacji, golfa i usług. Zaledwie 5 minut jazdy samochodem znajduje się pole golfowe Villamartin i centrum handlowe La Zenia Boulevard, największe w prowincji Alicante, z ponad 150 sklepami, restauracjami i strefami rozrywki. Nowoczesny design i ekskluzywne domy Osiedle to oferuje wybór nowo wybudowanych domów zaprojektowanych zgodnie z najwyższymi standardami jakości i komfortu: 7 kamienic z 2 i 3 sypialniami z dostępem do wspólnego basenu. 2 wolnostojące wille z 3 sypialniami i 3 łazienkami, każda z prywatnym basenem. Opcjonalnie: podziemne miejsca parkingowe i komórki lokatorskie za dodatkową opłatą. Ekskluzywne cechy i właściwości Każda nieruchomość została zaprojektowana z nowoczesnym i funkcjonalnym podejściem, w tym Zagospodarowane tereny zewnętrzne ze sztuczną trawą obok basenu. Ogrzewanie aerotermalne zapewniające większą efektywność energetyczną. Kuchnia z kwarcowym barem śniadaniowym, częścią wypoczynkową i metalowym zlewem o średnicy 50 cm. Schody ze szkłem i poręczą ze stali nierdzewnej. W pełni wyposażone łazienki z szafkami ściennymi, lustrem i kabiną prysznicową. Wstępna instalacja klimatyzacji kanałowej. Wyposażone szafy w każdej sypialni, z przesuwanymi drzwiami i systemem miękkiego zamykania. Bezpieczne drzwi wejściowe dla spokoju ducha. Bliskość interesujących miejsc Plaża Punta Prima - 4 km. Pole golfowe Villamartin - 5 km. Centrum handlowe La Zenia Boulevard - 5 km. Centrum miasta Torrevieja - 10 km. Lotnisko Alicante - 40 minut. Lotnisko Murcja-Corvera - 1 godzina. Poznaj śródziemnomorski styl życia Ten ekskluzywny kompleks mieszkaniowy jest idealny dla osób poszukujących nowoczesnego domu na Costa Blanca, z dostępem do plaż, golfa i wszystkich udogodnień. Nie przegap tej wyjątkowej okazji i skontaktuj się z nami już dziś, aby uzyskać więcej informacji lub umówić się na oglądanie.