Zunächst einmal, vielen Dank für Ihre Kontaktaufnahme.
Wir haben Ihre Anfrage bezüglich des Eigentumsverweises erhalten:GE2-60749. Einer unserer Mitarbeiter wird sich so schnell wie möglich mit Ihnen in Verbindung setzen.
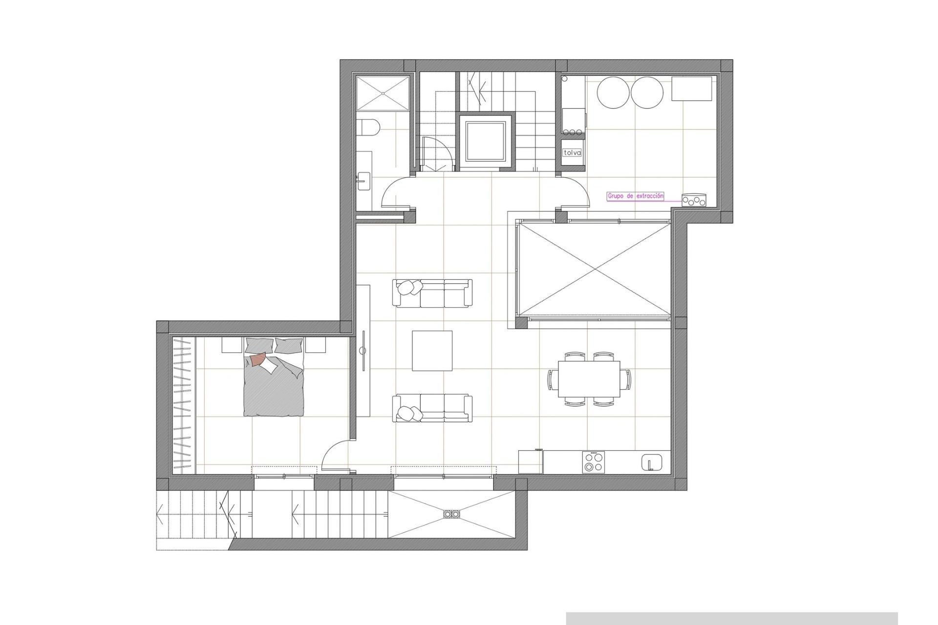
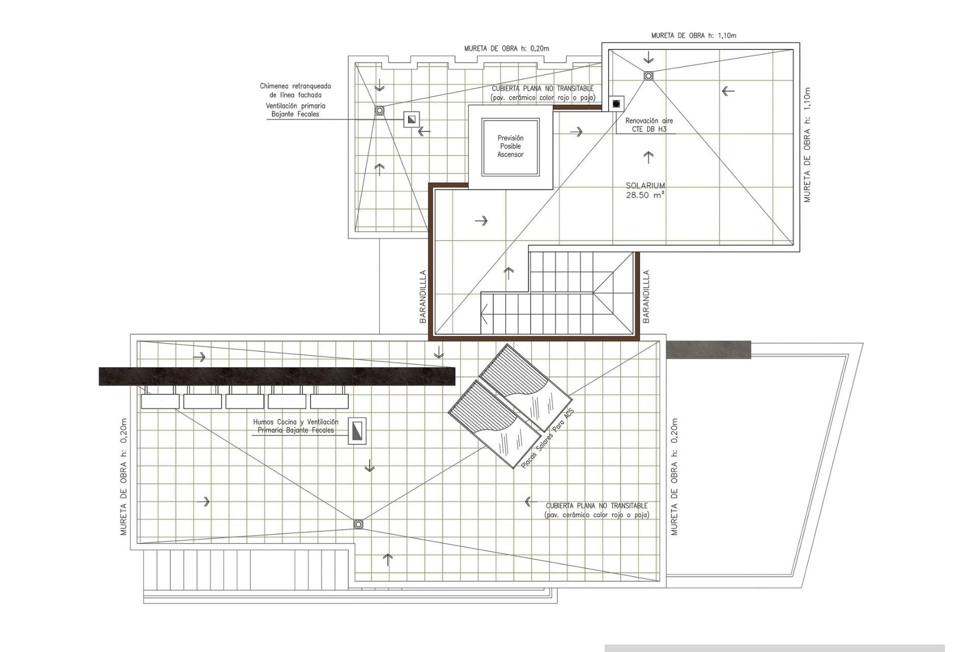
Exklusive Neubau-Villen mit privaten Pools in La Nucía, in der Nähe von Benidorm Premium-Wohnanlage mit unvergleichlicher Sicherheit Wir präsentieren Ihnen eine exklusive Kollektion von nur 10 freistehenden Villen in La Nucía, direkt neben der prestigeträchtigen Urbanisation Coblanca in Benidorm und weniger als 4 km vom Strand entfernt. Diese sichere Wohnanlage bietet die perfekte Mischung aus mediterranem Lebensstil, Luxus, Privatsphäre und Ruhe, mit 24/7-Überwachung und einem eigenen Nachtwächter. Jede Villa verfügt über einen eigenen Garten mit einheimischen Pflanzen, einen privaten Außenpool mit Wasserfall und eine Dachterrasse mit Panoramablick auf die Umgebung und das Mittelmeer. Die Wohnanlage bietet eine komplette Garten- und Poolpflege sowie einen hilfreichen Service für alltägliche Reparaturen im Haus, sodass diese Häuser ideal für ein stressfreies Leben oder als Ferienrückzugsort sind. Großzügiges Design und hochwertige Ausstattung Diese Villen sind auf drei Ebenen gebaut: Erdgeschoss, Obergeschoss und ein Halbkeller mit separatem Zugang und einem Innenhof, der für Tageslicht und Belüftung sorgt. Alle Häuser verfügen über 4 oder 5 Schlafzimmer und 4 oder 5 Badezimmer, ein großes offenes Wohn- und Esszimmer, eine voll ausgestattete Küche mit Miele-Geräten und eine überdachte Terrasse mit Grillplatz. Zu den wichtigsten Merkmalen gehören: Installation von 10 Solarpaneelen auf dem Dach Smart-Home-Automatisierung für Beleuchtung und Jalousien Klimaanlage in der gesamten Villa Doppelverglaste Fenster mit Wärmeschutz und motorisierten Rollläden Designer-Badezimmer mit Möbeln, Spiegeln und Duschwänden Optionale Installation eines Aufzugs Halbuntergeschoss mit individuell gestaltbaren Oberflächen Erstklassige Lage an der Costa Blanca La Nucía ist eine gut angebundene und lebhafte Stadt, nur wenige Minuten von Benidorm und Altea entfernt. Die Wohnanlage bietet eine gute Anbindung an alle wichtigen Dienstleistungen wie Schulen, Gesundheitsversorgung, Supermärkte und Restaurants. Wichtige Entfernungen: Strand von Benidorm: 3,5 km Strand von Albir: 6 km Flughafen Alicante: 60 km (ca. 45 Minuten mit dem Auto) Villaitana Golf: 5 km Einkaufszentrum La Marina: 6 km Puerto Deportivo de Altea: 8 km Genießen Sie das mediterrane Leben mit absolutem Komfort und Sicherheit Dies ist eine seltene Gelegenheit, eine hochmoderne Villa in einer der sichersten und exklusivsten Wohnanlagen an der Costa Blanca zu erwerben. Kontaktieren Sie uns noch heute für weitere Informationen oder um einen privaten Besichtigungstermin im Musterhaus zu vereinbaren.