Zunächst einmal, vielen Dank für Ihre Kontaktaufnahme.
Wir haben Ihre Anfrage bezüglich des Eigentumsverweises erhalten:GEE-13869. Einer unserer Mitarbeiter wird sich so schnell wie möglich mit Ihnen in Verbindung setzen.
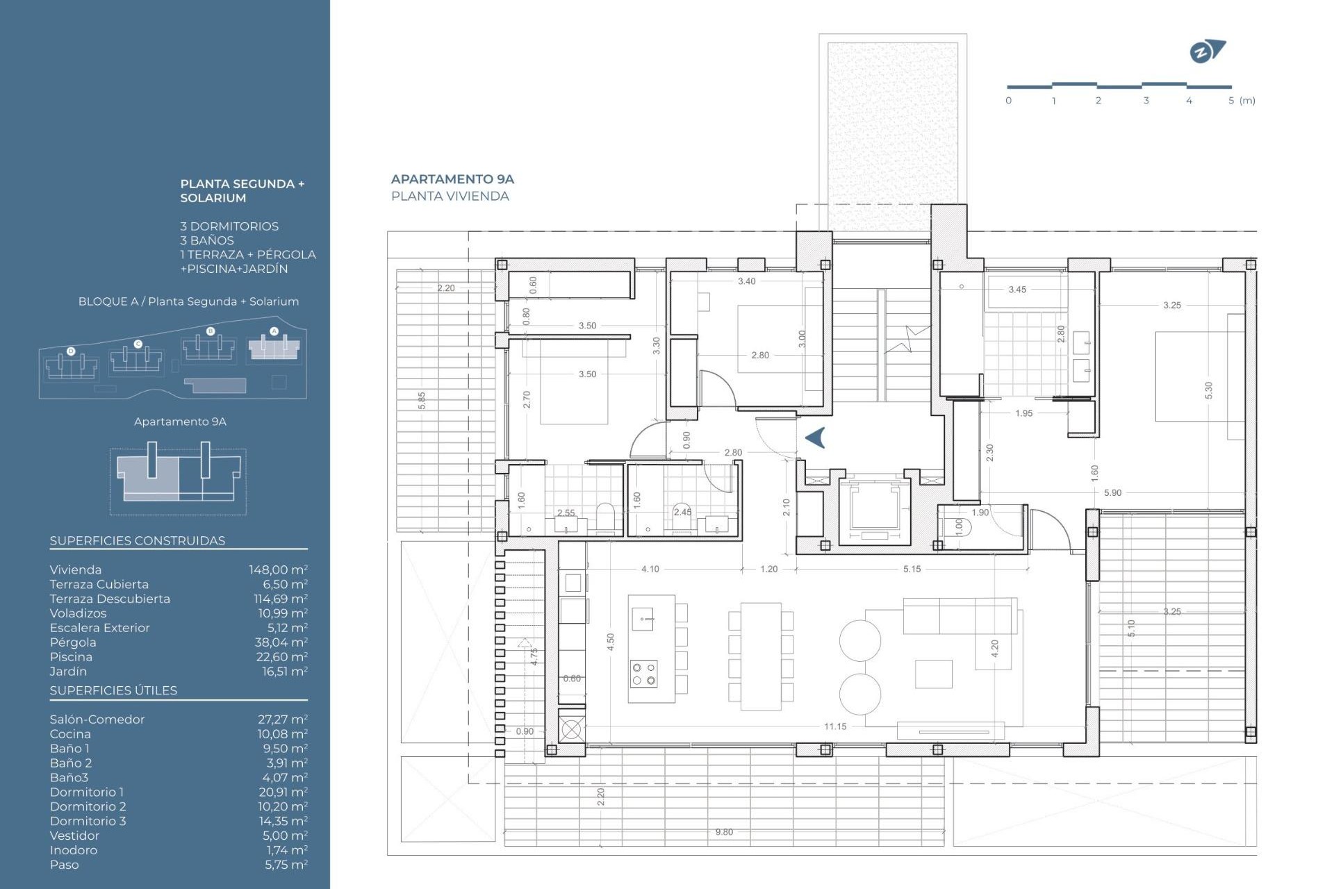
NEU GEBAUTE WOHNANLAGE IN LA NUCIA Neubau-Wohnanlage mit Wohnungen und Penthäusern mit Außenpool, Parkplatz, Abstellraum, Aufzug, Fitnessraum, Gemeinschafts-Spa mit beheiztem Innenpool, Sauna, Jacuzzi in La Nucia. Moderne Wohnungen mit 2 und 3 Schlafzimmern, alle mit 2 Bädern, offener Küche mit geräumigem Wohnzimmer, Einbauschränken, Terrasse, Tiefgaragenstellplatz. Die Penthäuser haben private Sonnenterrassen mit Pool. Hervorragende Avantgarde-Architektur, exquisite Ausstattung und High-End-Services, eine traumhafte Urbanisation für alle, die ein Höchstmaß an Komfort und Vornehmheit suchen. Innenräume, die elegantes Design und moderne Raffinesse verbinden, schaffen Räume, die jeden Tag zu einem außergewöhnlichen Erlebnis von Komfort und Wohlbefinden machen. Deutsche Designerküche, Burger oder ähnlich, mit Silestone-Arbeitsplatte, komplett ausgestattet. Siemens-Geräte oder ähnlich. Induktionskochfeld, Dunstabzugshaube, Backofen, Kühlschrank und Geschirrspüler in den Schränken integriert. Verstärkte Zugangstür zur Immobilie mit Sicherheitsschloss, das mit einer lackierten Verkleidung passend zum Innenausbau versehen ist. Optional kann das Schloss mit einer Fernbedienung für Smartphone oder Tablet ausgestattet werden. Modulare Schränke mit Dreh- oder Schiebetüren, die passend zum Rest der Schreinerei lackiert sind, einschließlich Kofferraum, Schubladen und Hängeschiene. Die Wohnung wird so hergerichtet, dass sie mit Hochgeschwindigkeitsinternet ausgestattet werden kann. In den Bädern wird eine elektrische Fußbodenheizung mit niedrigem Verbrauch installiert. Die Video-Gegensprechanlage wird elektronisch mit Farbbild und integrierter Fernsteuerung über Telefon oder Tablet sein. Samsung-Klimaanlage. Jedes Zimmer hat eine eigene Inneneinrichtung und eine unabhängige Steuerung. Die Klimaanlage wird über eine Fernbedienung verfügen. Sie kann über ein Telefon oder ein Tablet gesteuert werden. Die komplette Installation der Klimaanlage wird mit einer Wärmepumpe ausgestattet sein, die sowohl kühlen als auch heizen kann. Es werden auch Kanäle aus Glasfaser verwendet. Die Innengeräte werden in der Zwischendecke in den Bädern und im Flurbereich untergebracht, während das Außengerät in dem im Projekt vorgesehenen Bereich installiert wird. Belüftung. Installation einer Innenlufterneuerung in den Wohnungen mit Abluftauslässen in den Badezimmern und der Küche sowie einer Uhr zur Programmierung des Zeitplans. Schwimmbad zur gemeinschaftlichen Nutzung mit Salzchlorierung und automatischer Kontrolle des PH-Wertes und des Chlorgehalts. Im Untergeschoss befinden sich ein Fitnessraum, ein beheiztes Hallenbad, ein Whirlpool, eine Sauna, ein Dampfbad, eine Chromotherapie und Umkleideräume mit Bädern. Große Terrassenflächen und Gärten mit einheimischen Pflanzen für eine vielfältige Nutzung im Gemeinschaftsbereich. Die Grundstücksgrenzen werden mit Pflanzen bepflanzt, die im Laufe ihres Wachstums eine private Atmosphäre in der Anlage schaffen werden. Es wird ein Videoüberwachungssystem für die Gemeinschaftsbereiche geben. In einer privilegierten Lage, zwischen Nucia und Altea gelegen, genießt diese Wohnanlage eine außergewöhnliche Umgebung und ausgezeichnete Dienstleistungen innerhalb der Urbanisation.