Zunächst einmal, vielen Dank für Ihre Kontaktaufnahme.
Wir haben Ihre Anfrage bezüglich des Eigentumsverweises erhalten:GEE-50916. Einer unserer Mitarbeiter wird sich so schnell wie möglich mit Ihnen in Verbindung setzen.
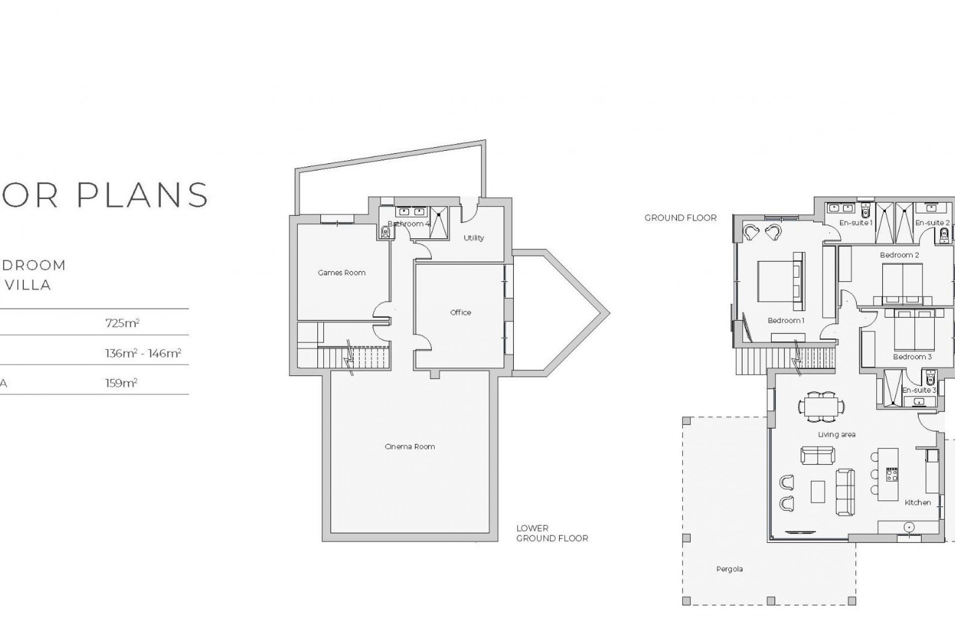
ATEMBERAUBENDE NEU GEBAUTE VILLEN IM DESERT SPRINGS RESORT Diese wunderschöne, moderne und stilvolle Anlage befindet sich in einer beneidenswerten Lage im Desert Springs Resort und bietet eine Auswahl an Villen mit drei Schlafzimmern, die einen atemberaubenden Blick auf den Meisterschaftsplatz in Indiana und die dahinter liegenden Bergketten bieten. Ein eingezäunter Vorhof, schattige Veranden, ein privater Landschaftsgarten mit direktem Blick auf den Golfplatz, ein eigener Swimmingpool, ein eingebauter Grill und weitläufige Dachterrassen sind nur einige der äußeren Merkmale der Häuser. Zeitgenössisches Design und natürliches Licht, das ein umfassendes Raumgefühl vermittelt, sind die herausragenden Merkmale der anspruchsvollen Innenräume, die stilvolle Wohnungen mit modernem Charme bieten. Zu den Merkmalen gehört ein geräumiger innerer Empfangsbereich, der sich mit einem durchgehenden Fußboden zu den überdachten Terrassen und dem Garten hin öffnet und über 93 m2 kombinierten Wohn- und Essbereich im Innen- und Außenbereich bietet, der so gestaltet ist, dass er in dem besonders privilegierten Klima der Region als Einheit genutzt werden kann. Das Hauptschlafzimmer mit eigenem Bad hat direkten Zugang zur großen Veranda und zum Swimmingpool. Es gibt zwei weitere Schlafzimmer, beide mit eigenem Bad und Garderobe. Im weitläufigen Untergeschoss befinden sich ein Spielzimmer, ein Kinoraum, ein Hauswirtschaftsraum, ein Büro und ein viertes Badezimmer. Doppelverglasung, eine hochwertige Einbauküche, integrierte Haushaltsgeräte und Schlafzimmerschränke sowie Sicherheitsvorrichtungen gehören zur Standardausstattung. Ein mechanisches Belüftungssystem im Erdgeschoss und im Untergeschoss sowie Photovoltaik-Paneele, die an den Warmwasserspeicher angeschlossen sind, und individuell gesteuerte Klimaanlagen im Wohnzimmer und in den Schlafzimmern sorgen für eine optimale Temperaturregelung.