Dziękujemy za kontakt z naszym biurem
We have received your request regarding the property reference: GEE-50916. One of our agents will contact you as soon as possible.
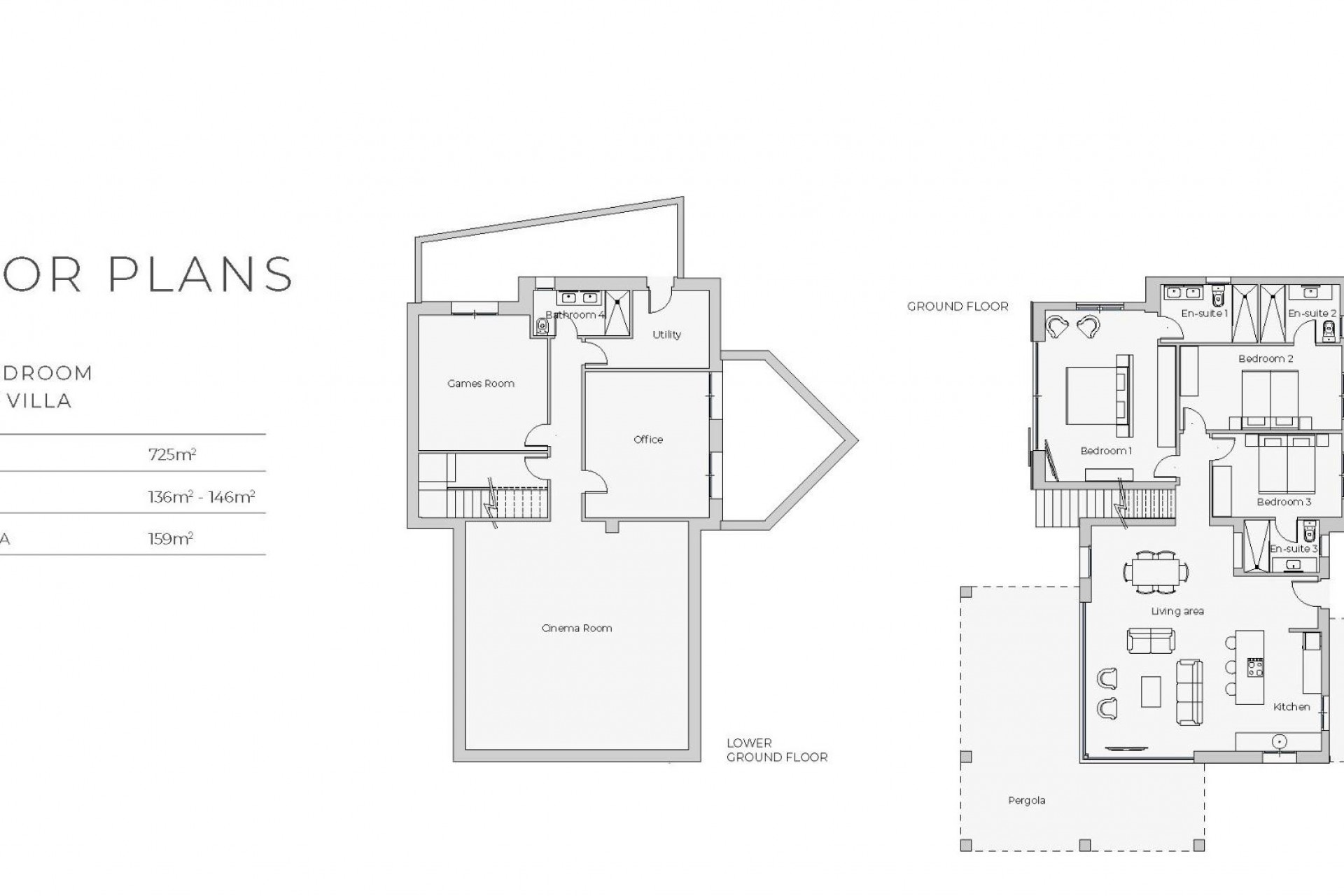
OSZAŁAMIAJĄCE NOWO WYBUDOWANE WILLE W OŚRODKU DESERT SPRINGS Ta piękna, nowoczesna i stylowa inwestycja zajmuje zazdrosną pozycję w ośrodku Desert Springs, oferując wybór willi z trzema sypialniami, z których roztacza się wspaniały widok na mistrzowskie pole golfowe Indiana i pasma górskie. Ogrodzony dziedziniec, głęboko zacienione werandy, prywatny ogród krajobrazowy wychodzący bezpośrednio na pole golfowe, indywidualny basen, wbudowany grill i rozległe tarasy na dachu to tylko niektóre z zewnętrznych cech nieruchomości. Współczesne wzornictwo i naturalne światło, dające ogólne poczucie przestrzeni, to wyjątkowe cechy wyrafinowanych wnętrz, które oferują stylowe domy o nowoczesnym wyglądzie. Funkcje obejmują przestronną wewnętrzną recepcję, która otwiera się z "poziomą podłogą" na zadaszone werandy i ogród, oferując ponad 93 m2 połączonej wewnętrznej / zewnętrznej przestrzeni mieszkalnej i jadalnej, zaprojektowanej tak, aby była używana jako jedna w szczególnie uprzywilejowanym klimacie regionu. Główna sypialnia z łazienką ma bezpośredni dostęp do rozległej werandy i basenu. Istnieją dwie kolejne sypialnie, obie z łazienkami i szatnią. Na parterze znajduje się pokój gier, sala kinowa, pomieszczenie gospodarcze, biuro i czwarta łazienka. Podwójne szyby, wysokiej jakości wyposażona kuchnia, zintegrowany sprzęt AGD i szafy w sypialni oraz wyposażenie bezpieczeństwa są standardem w całym budynku. Mechaniczny system wentylacji na dolnym i parterze oraz panele fotowoltaiczne podłączone do zasobnika ciepłej wody z indywidualnie sterowanymi klimatyzatorami ciepło/zimno w salonie i sypialniach, w pełni zaspokajają wszystkie wymagania dotyczące kontroli temperatury.