Zunächst einmal, vielen Dank für Ihre Kontaktaufnahme.
Wir haben Ihre Anfrage bezüglich des Eigentumsverweises erhalten:GE-85444. Einer unserer Mitarbeiter wird sich so schnell wie möglich mit Ihnen in Verbindung setzen.
Email info@gold-estates.be
Büro in Belgien: Moeistraat 20G, 9830 St-Martens-Latem
Büro in Spanien: Av. Marina Baixa 11, 03570 La Villa Joyosa, Alicante
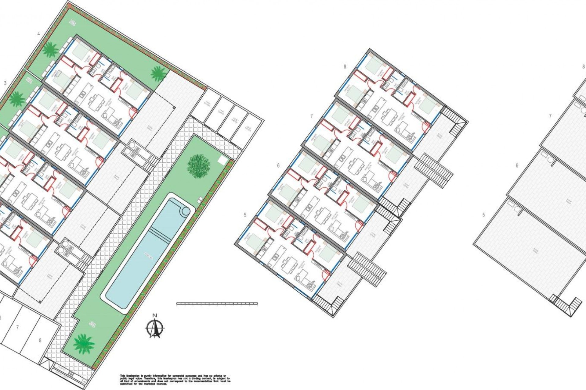
Exklusive Neubauwohnungen in Pilar de la Horadada, Costa Blanca Modernes mediterranes Wohnen in Strandnähe Entdecken Sie diese exklusive Neubauanlage mit nur 8 modernen Wohnungen in Pilar de la Horadada, nur wenige Gehminuten vom Stadtzentrum und nur 3,5 km von den schönen Stränden von Torre de la Horadada und Mil Palmeras entfernt. Diese charmante Küstenstadt im südlichsten Teil der Costa Blanca ist bekannt für ihre entspannte Atmosphäre, ihren traditionellen spanischen Charme und ihre hervorragende Infrastruktur. Die Bewohner genießen eine Vielzahl von Dienstleistungen wie Supermärkte, Restaurants, Geschäfte und Freizeitbereiche, die alle nur wenige Minuten entfernt sind. Elegante Häuser, die auf Komfort und Stil ausgelegt sind Die Wohnanlage bietet eine Auswahl an Erdgeschosswohnungen mit Terrassen und privaten Gärten oder Dachgeschosswohnungen mit großzügigen Terrassen und privaten Sonnenterrassen. Jedes Haus verfügt über 3 Schlafzimmer und 2 Badezimmer, eines davon en suite, die mit modernen Linien und hochwertigen Oberflächen gestaltet sind, um maximalen Komfort zu gewährleisten. Der Wohnkomplex verfügt über einen Gemeinschaftspool, der von Landschaftsgärten umgeben ist und eine einladende und ruhige Umgebung für Entspannung und Freizeit bietet. Zu jeder Immobilie gehören außerdem ein privater Parkplatz und ein Abstellraum. Hochwertige Ausstattungen und Premium-Ausstattung Diese neu gebauten Häuser wurden mit hochwertigen Materialien und Liebe zum Detail errichtet. Zu den wichtigsten Ausstattungsmerkmalen gehören: Aluminium-Außenfenster und -türen in Anthrazitgrau mit thermischer Trennung (Marke CORTIZO) Vierfachverglasung mit Sonnenschutz Elektrische Aluminiumrollläden in den Schlafzimmern Hängende Toiletten und begehbare Duschen mit integriertem Bodenbelag Badezimmermöbel mit LED-hinterleuchteten Spiegeln und elektrischen Handtuchhaltern Voll ausgestattete Küche mit Miele-Geräten LED-Innen- und Außenbeleuchtung im gesamten Haus Komplette Klimaanlageninstallation über Kanäle (Fujitsu-System) Perfekte Lage an der Costa Blanca Pilar de la Horadada ist ideal gelegen, sowohl für einen dauerhaften Wohnsitz als auch für einen Urlaub. Die Stadt verbindet das Beste des traditionellen spanischen Lebens mit moderner Infrastruktur und der Nähe zum Meer. Wichtigste Entfernungen: Strände von Torre de la Horadada und Mil Palmeras: 3,5 km Golfplatz Lo Romero: 6 km Flughafen Murcia-Corvera: 40 km Flughafen Alicante: 55 km Yachthafen von San Pedro del Pinatar: 10 km Ihr neues Zuhause in der Sonne erwartet Sie Genießen Sie die perfekte Kombination aus Design, Komfort und mediterranem Lebensstil in diesen neu gebauten Häusern in Pilar de la Horadada. Ob Sie einen Urlaubsort oder einen ganzjährigen Wohnsitz suchen, dieses exklusive Projekt bietet die ideale Balance zwischen Qualität, Lage und modernem Wohnen. Kontaktieren Sie uns noch heute für weitere Informationen oder um einen Besichtigungstermin zu vereinbaren.
Diese hier angegebenen Informationen unterliegen Fehlern und sind nicht Bestandteil eines Vertrages. Das Angebot kann ohne vorherige Ankündigung geändert oder zurückgezogen werden. Die Preise beinhalten keine Einkaufskosten.
Ihr Traumleben in Spanien beginnt mit unserem praktischen Reiseführer! In 4 Schritten ermöglichen wir Ihnen den Start unter der spanischen Sonne.
E-Mail info@gold-estates.be
Büro in Belgien: Moeistraat 20G, 9830 St-Martens-Latem
Büro in Spanien: Av. Marina Baixa 11, 03570 La Villa Joyosa, Alicante
© 2026 Gold Estates · Rechtlicher Hinweis · Privatsphäre · Cookies · BIV Legale Informatie · Web-Karte
Entwurf & CRM: Mediaelx
Finden Sie Ihr Traumhaus, indem Sie Ihre Immobilien speichern und Benachrichtigungen zu neuen verfügbaren Immobilien erhalten
Neuen Benutzer registrierenZunächst einmal, vielen Dank für Ihre Kontaktaufnahme.
Wir haben Ihre Anfrage bezüglich des Eigentumsverweises erhalten:GE-85444. Einer unserer Mitarbeiter wird sich so schnell wie möglich mit Ihnen in Verbindung setzen.
Zunächst einmal, vielen Dank für Ihre Kontaktaufnahme.
Wir haben eine Anfrage für einen Bericht erhalten, wenn Sie den Preis der Immobilie mit der Referenz senken: GE-85444
In der Zwischenzeit sehen Sie sich bitte diese Auswahl ähnlicher Objekte an, die für Sie von Interesse sein könnten: