Dziękujemy za kontakt z naszym biurem
We have received your request regarding the property reference: GE-85444. One of our agents will contact you as soon as possible.
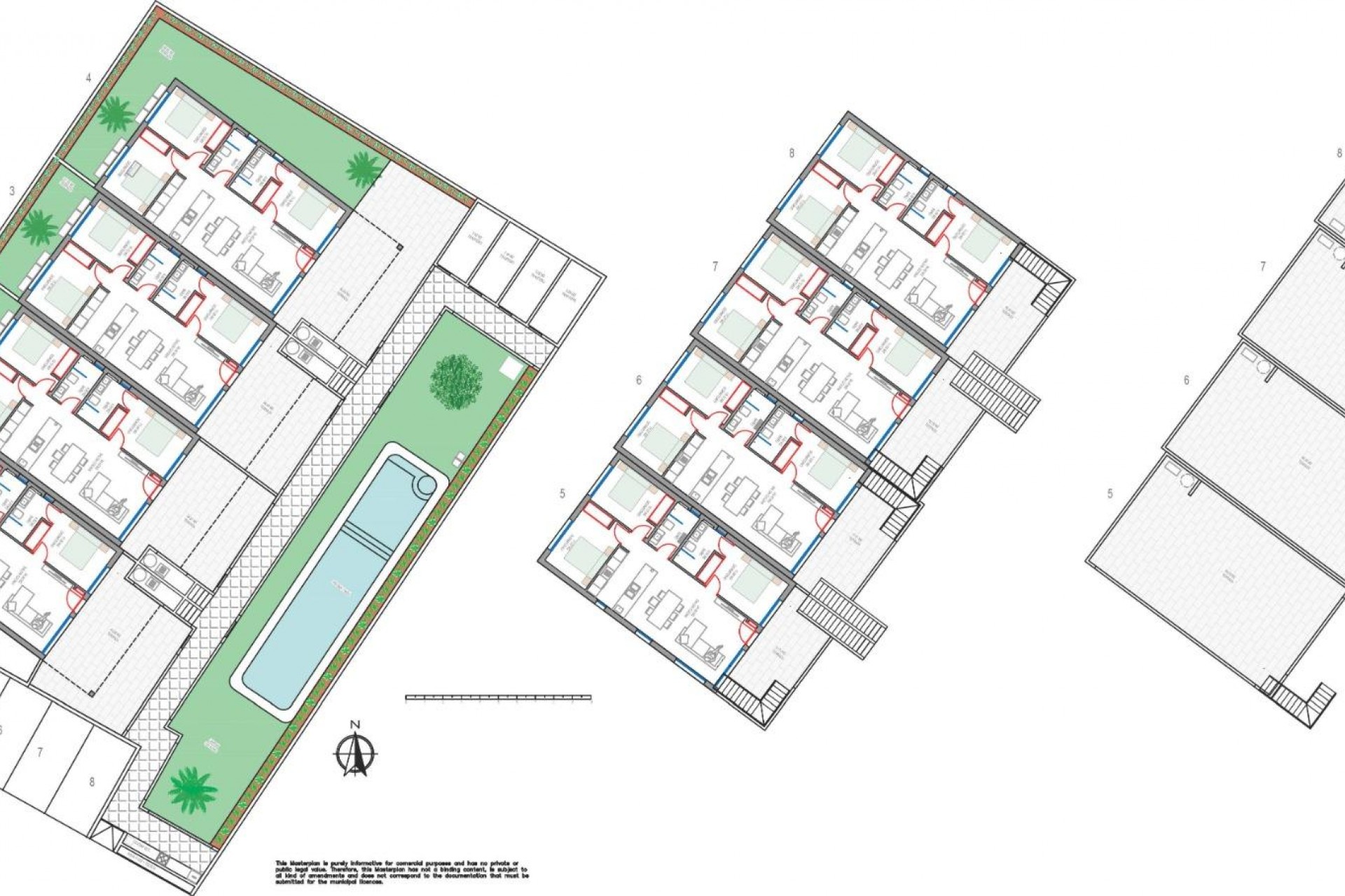
Ekskluzywne nowe rezydencje w Pilar de la Horadada, Costa Blanca Nowoczesne śródziemnomorskie życie w pobliżu plaży Odkryj tę ekskluzywną nową inwestycję obejmującą zaledwie 8 nowoczesnych domów w Pilar de la Horadada, położoną w odległości spacerowej od centrum miasta i zaledwie 3,5 km od pięknych plaż Torre de la Horadada i Mil Palmeras. To urocze nadmorskie miasteczko, położone w najbardziej wysuniętej na południe części Costa Blanca, znane jest z relaksującej atmosfery, tradycyjnego hiszpańskiego uroku i doskonałych udogodnień. Mieszkańcy mają do dyspozycji szeroki wachlarz usług, w tym supermarkety, restauracje, sklepy i tereny rekreacyjne, a wszystko to w odległości zaledwie kilku minut. Eleganckie domy zaprojektowane z myślą o komforcie i stylu Inwestycja oferuje wybór apartamentów na parterze z tarasami od frontu i prywatnymi ogrodami lub apartamentów na najwyższym piętrze z przestronnymi tarasami i prywatnymi solarium. Każdy dom posiada 3 sypialnie i 2 łazienki, z których jedna jest łazienką przy sypialni, zaprojektowane z nowoczesnymi liniami i wysokiej jakości wykończeniami, aby zapewnić maksymalny komfort. Kompleks mieszkaniowy posiada wspólny basen otoczony ogrodami krajobrazowymi, tworząc przyjazne i spokojne środowisko do relaksu i wypoczynku. Każda nieruchomość posiada również prywatne miejsce parkingowe i pomieszczenie gospodarcze. Wysokiej jakości wykończenia i funkcje premium Te nowe domy zostały zbudowane z najwyższej jakości materiałów i z dbałością o szczegóły. Najważniejsze specyfikacje obejmują: Aluminiowa stolarka zewnętrzna w kolorze antracytowym z przegrodą termiczną (marka CORTIZO) Czterokrotne szyby z ochroną przeciwsłoneczną Elektryczne rolety aluminiowe w sypialniach Wiszące toalety i kabiny prysznicowe z zintegrowaną podłogą Meble łazienkowe z lustrami z podświetleniem LED i elektrycznymi wieszakami na ręczniki W pełni wyposażona kuchnia z urządzeniami marki Miele Oświetlenie LED wewnątrz i na zewnątrz domu Kompletna instalacja klimatyzacji kanałowej (system Fujitsu) Idealna lokalizacja na Costa Blanca Pilar de la Horadada jest idealnym miejscem zarówno do stałego zamieszkania, jak i na wakacje. Miasto łączy w sobie to, co najlepsze w tradycyjnym hiszpańskim stylu życia, z nowoczesną infrastrukturą i bliskością morza. Główne odległości: Plaże Torre de la Horadada i Mil Palmeras: 3,5 km Pole golfowe Lo Romero: 6 km Lotnisko Murcia-Corvera: 40 km Lotnisko Alicante: 55 km Marina w San Pedro del Pinatar: 10 km Twoje nowe słoneczne mieszkanie czeka Ciesz się idealnym połączeniem designu, komfortu i śródziemnomorskiego stylu życia w tych nowo wybudowanych domach w Pilar de la Horadada. Niezależnie od tego, czy szukasz miejsca na wakacje, czy na całoroczne zamieszkanie, ten ekskluzywny projekt oferuje idealną równowagę między jakością, lokalizacją i nowoczesnym stylem życia. Skontaktuj się z nami już dziś, aby uzyskać więcej informacji lub umówić się na wizytę.