Zunächst einmal, vielen Dank für Ihre Kontaktaufnahme.
Wir haben Ihre Anfrage bezüglich des Eigentumsverweises erhalten:CLE-81546. Einer unserer Mitarbeiter wird sich so schnell wie möglich mit Ihnen in Verbindung setzen.
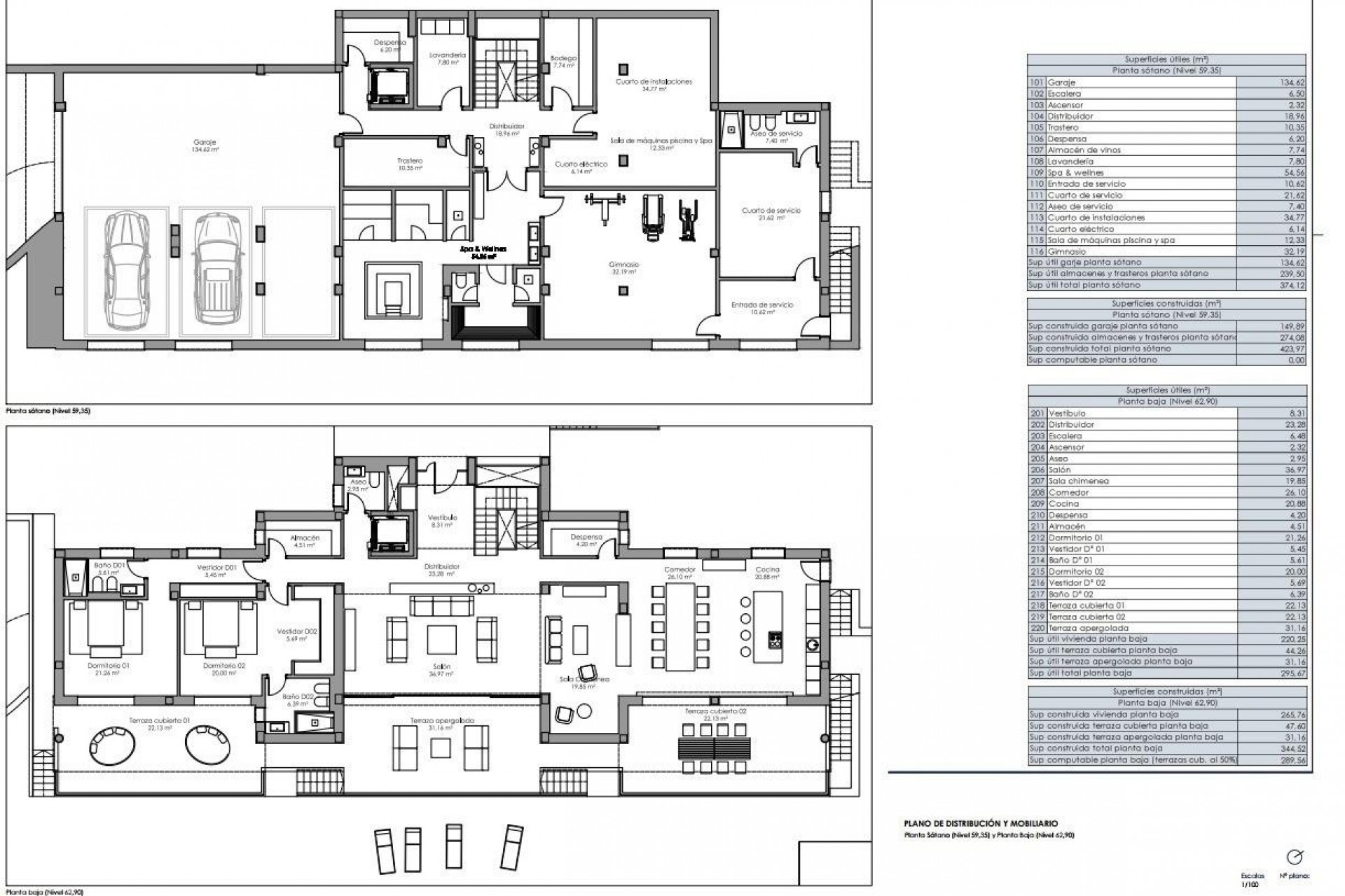
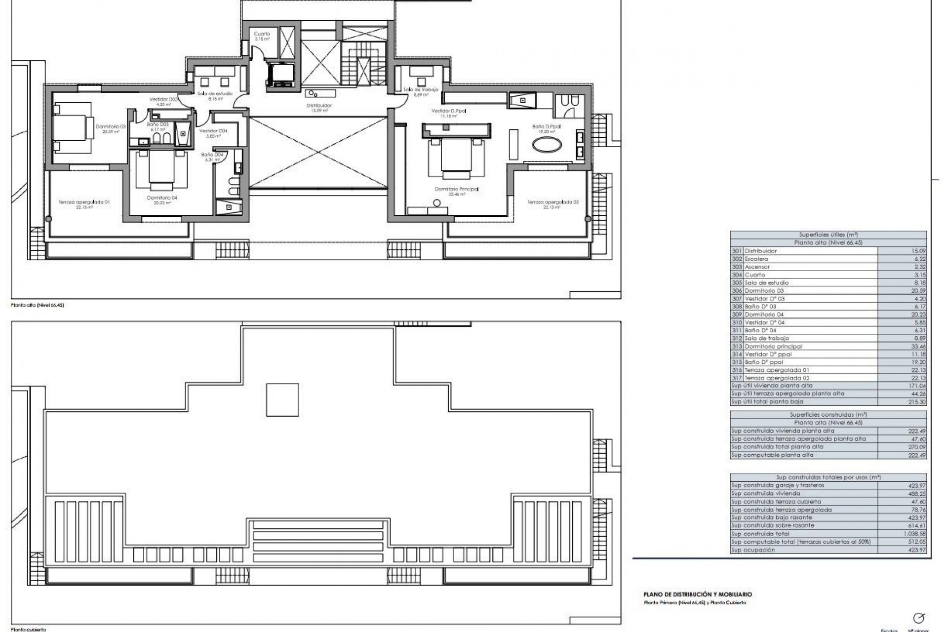
LUXURIÖSE NEUGEBAUTE VILLA MIT MEERBLICK IN EL PARAISO GOLF, NAHE ESTEPONA Gebaut mit Materialien von höchster Qualität, kümmern wir uns um jedes Detail des Projekts vom Beginn der Ausführung bis zur Übergabe an den Kunden. Die Innenräume sind von einzigartigem und exklusivem Design für jedes Haus, die Kombination von modernem und zeitgenössischem Stil mit der höchsten Leistung. 6 Schlafzimmer 7 Bäder Bebaute Fläche 1038 m2 Grundstücksgröße 1915 m2 Wenn Sie in die untere Etage hinabsteigen, erwartet Sie eine Welt der Freizeit und Entspannung. Hier finden Sie einen Weinkeller, einen voll ausgestatteten Fitnessraum und ein entspannendes Spa mit Sauna. Mit dem Aufzug können Sie sich mühelos zwischen den verschiedenen Ebenen bewegen. Das Gästezimmer, die Waschküche, die Speisekammer und das Ankleidezimmer wurden so konzipiert, dass sie alle Ihre Bedürfnisse erfüllen. Die private Garage bietet Platz für 3 Fahrzeuge und garantiert Sicherheit und einen einfachen und bequemen Zugang. Luxuriöse Qualitäten: ECO-Bauweise mit sehr niedrigem Energieverbrauch. Modernes und zeitgenössisches Design, geräumig, hell und offen. Hochwertige PORCELAIN STONEWARE Böden, Abmessungen 120x120cm, Marmorimitation. Die Schlafzimmer, das Hauptbadezimmer und die oberen Verteiler sind aus hochwertigem LAMINIERTEM HOLZ, Farbe weiße Eiche. Glas mit innerer Luftkammer für eine bessere Wärme- und Schalldämmung. Hochwertige Küche, nach Projektentwurf. Mit CENTRAL ISLAND, SILESTONE-Arbeitsplatte, Top-Markengeräte. Fußbodenheizung im gesamten Haus. Gemeinsame aerothermische Anlage mit dem Warmwassersystem. Wärmepumpenanlage der Marke DAIKIN oder ähnlich, die Heizung, Kühlung und Warmwasserbereitung ermöglicht. Außeneinheit auf dem Dach oder in nicht einsehbaren Außenbereichen. Großer Privatparkplatz im ersten Stock für 3 Fahrzeuge. Großes Lager und Abstellraum im Keller. Elektrisches Tor am Eingang des Grundstücks mit Fernöffnung für den Zugang von Fahrzeugen. Privater Landschaftsgarten mit privatem Schwimmbad. Automatische Bewässerungsanlage. Hausautomationssystem: Vorinstallation für CONTROL 4 System und 10″ Einbaudisplay.