Allereerst bedankt dat je contact met ons hebt opgenomen.
We hebben uw verzoek met betrekking tot de eigenschap referentie ontvangen:CLE-81546. Een van onze agenten neemt zo snel mogelijk contact met u op.
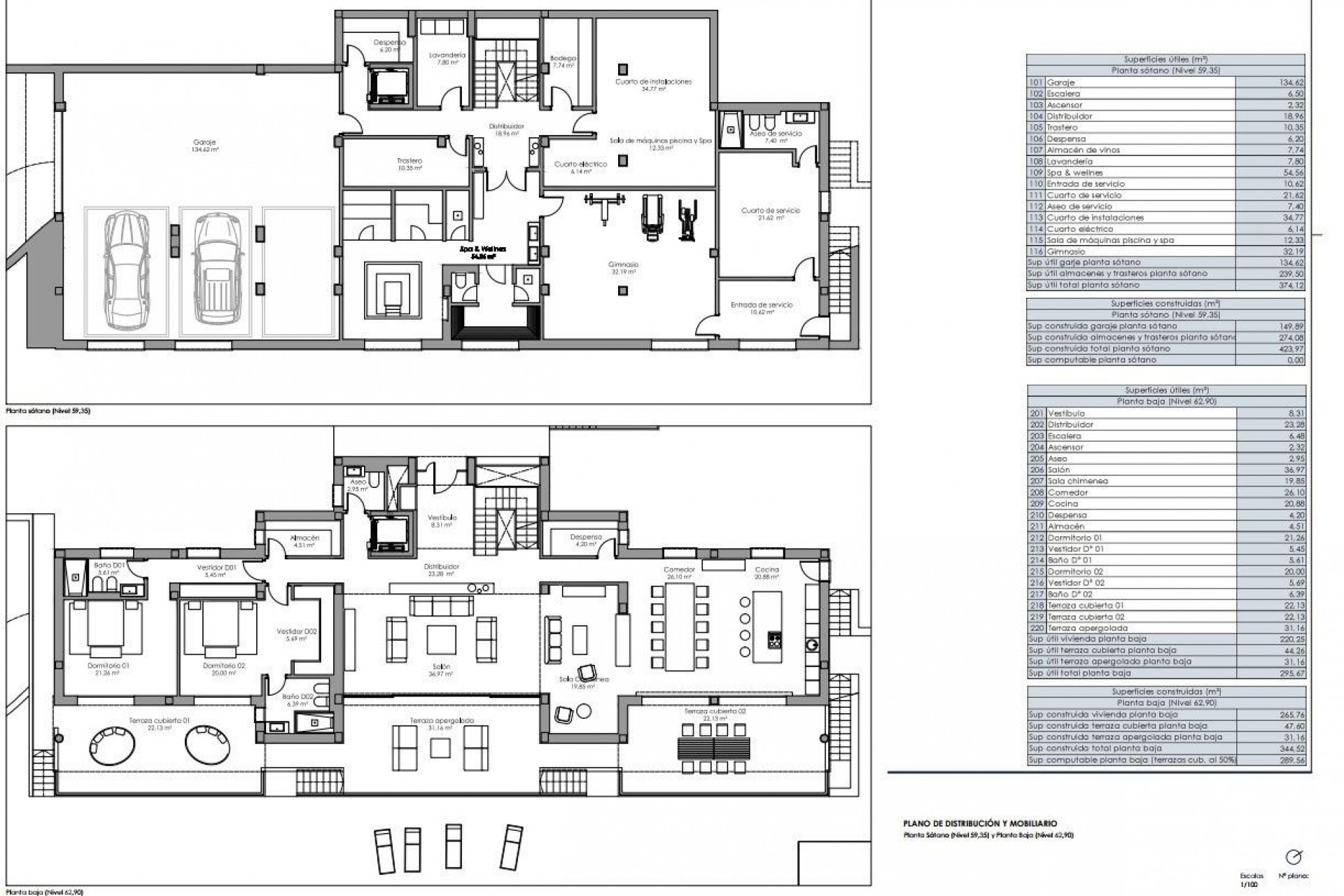
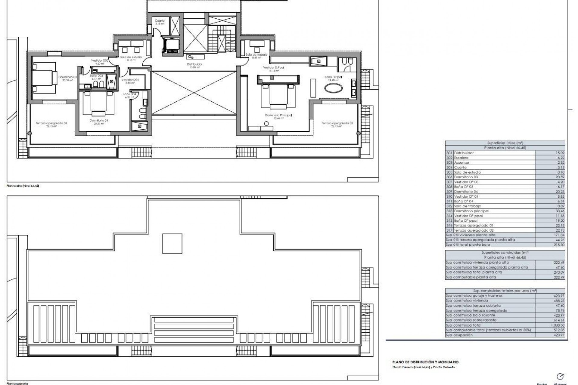
LUXE NIEUWBOUW VILLA MET ZEEZICHT IN EL PARAISO GOLF, VLAKBIJ ESTEPONA Gebouwd met materialen van de hoogste kwaliteit, zorgen we voor elk detail van het project vanaf het begin van de uitvoering tot aan de oplevering aan de klant. De binnenruimtes zijn uniek en exclusief ontworpen voor elke woning en combineren een moderne en eigentijdse stijl met de hoogste prestaties. 6 Slaapkamers 7 badkamers Bebouwde oppervlakte 1038 m2 Perceelgrootte 1915 m2 Als je afdaalt naar de benedenverdieping wacht je een wereld van ontspanning en vrije tijd. Je vindt er een wijnkelder, een volledig uitgeruste fitnessruimte en een ontspannende spa met sauna. Met de lift kun je moeiteloos van het ene naar het andere niveau. De logeerkamer, wasruimte, bijkeuken en kleedkamer zijn ontworpen om aan al je wensen te voldoen. De privégarage heeft capaciteit voor 3 voertuigen, wat veiligheid en een gemakkelijke en comfortabele toegang garandeert. Luxe kwaliteiten: ECO constructie met zeer laag energieverbruik. Modern en eigentijds ontwerp, ruim, licht en open. Topkwaliteit PORCELAIN STEENWERK vloeren, afmetingen 120x120cm, imitatie marmer. Slaapkamers, badkamer en bovenverdelers zijn van eerste kwaliteit gelamineerd hout, witte eikenkleur. Glas met luchtkamer aan de binnenkant voor betere thermische en akoestische isolatie. Keuken van topkwaliteit, volgens projectontwerp. Met CENTRAAL EILAND, SILESTONE aanrechtblad, topmerk apparatuur. Vloerverwarming door het hele huis. Gemeenschappelijke aerothermische apparatuur met het warmwatersysteem. Warmtepompsysteem van het merk DAIKIN of vergelijkbaar, dat verwarming, koeling en sanitair warm water mogelijk maakt. Buitenunit op het dak of in een niet zichtbare buitenruimte. Ruime privé parkeerplaats op de eerste verdieping voor 3 voertuigen. Grote opslagruimte en berging in de kelder. Elektrische poort bij de ingang van het huis met afstandsbediening voor toegang voor voertuigen. Aangelegde privétuin met privézwembad. Automatisch irrigatiesysteem. Huisautomatiseringssysteem: pre-installatie voor CONTROL 4 systeem en 10″ ingebouwd scherm.