Zunächst einmal, vielen Dank für Ihre Kontaktaufnahme.
Wir haben Ihre Anfrage bezüglich des Eigentumsverweises erhalten:GEE-93157. Einer unserer Mitarbeiter wird sich so schnell wie möglich mit Ihnen in Verbindung setzen.
Email info@gold-estates.be
Büro in Belgien: Moeistraat 20G, 9830 St-Martens-Latem
Büro in Spanien: Av. Marina Baixa 11, 03570 La Villa Joyosa, Alicante
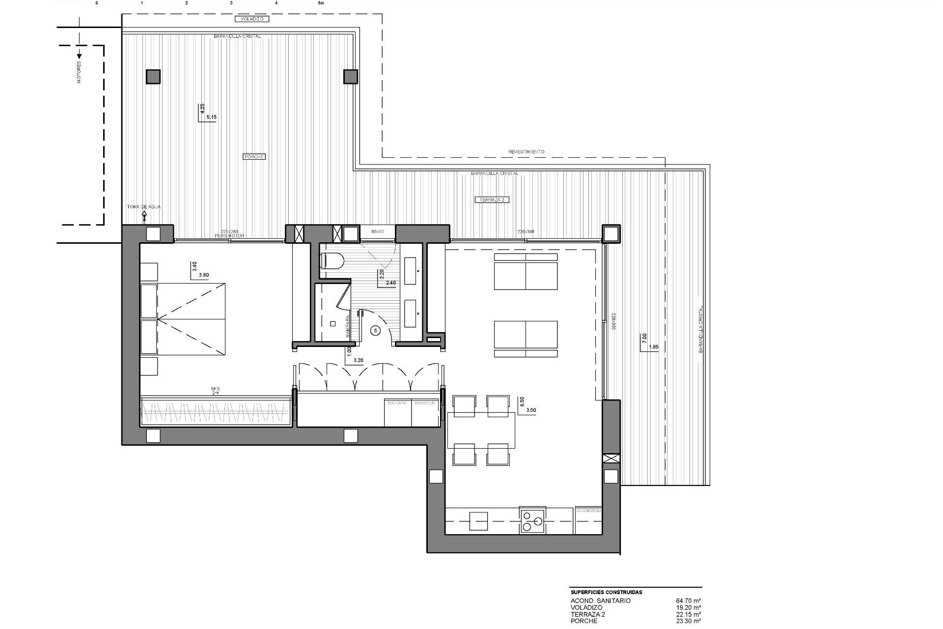
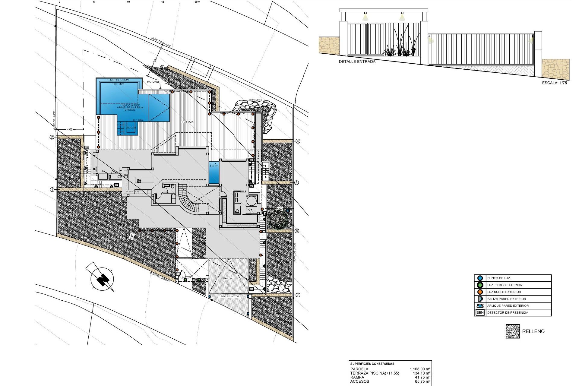
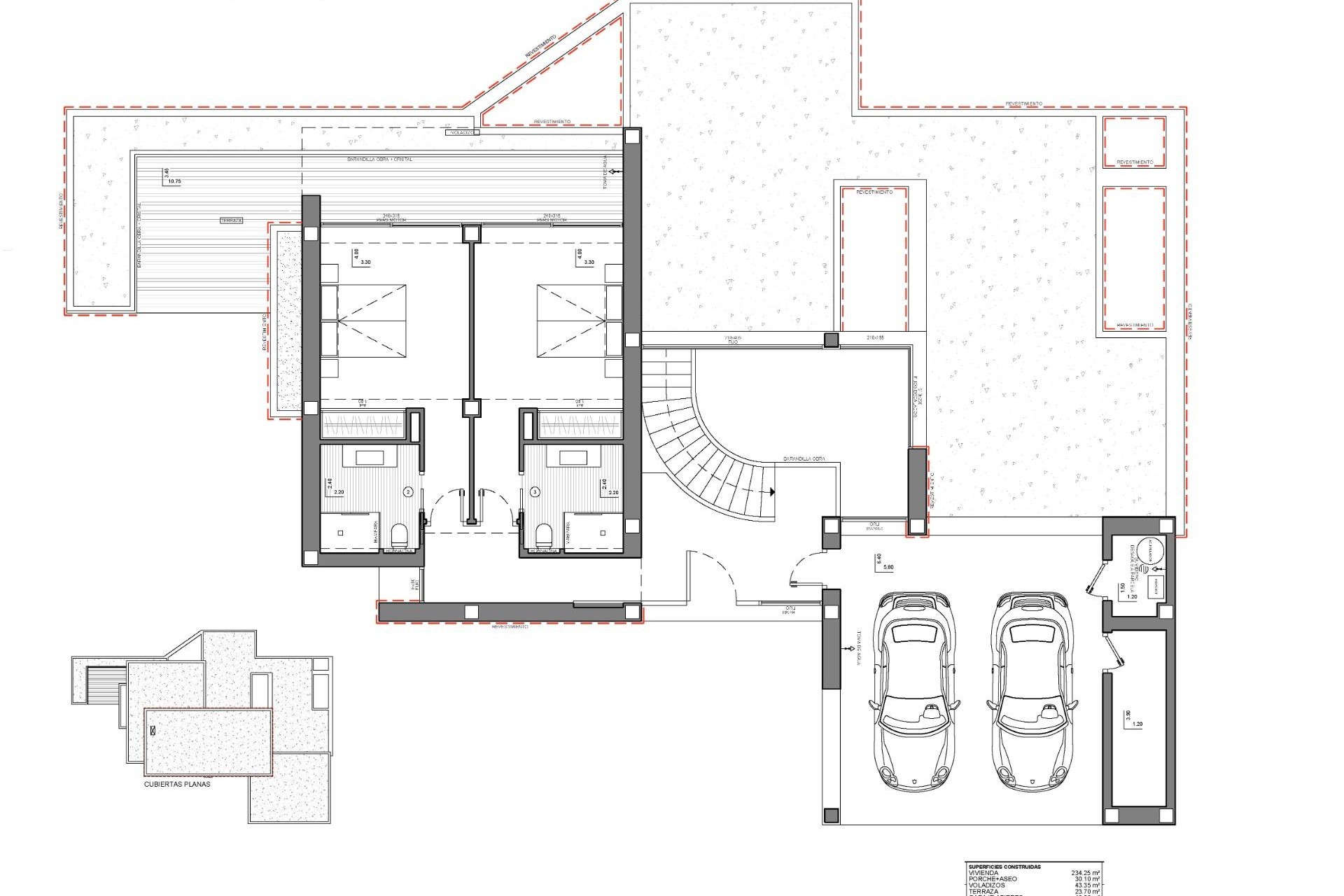
NEU GEBAUTE LUXUSVILLA IN CUMBRE DEL SOL Neubau einer kultigen Villa in Benitachell. Ihr Design aus dem 21. Jahrhundert fügt sich perfekt in die exklusive Umgebung des Residencial Cumbre del Sol ein. Es ist auf einem 1168m2 Grundstück gebaut, wo, wie die Villa nach Südwesten können Sie sehen und genießen Sie erstaunliche Sonnenuntergänge. Alles an dieser Villa strahlt Qualität und Stil aus, mit einem intelligenten Design, das eine praktische Aufteilung der Villa bietet, die den außergewöhnlichen Blick auf das Mittelmeer noch mehr optimiert. Ein Haus mit vielen Räumen, um das Leben am Meer und das Familienleben zu genießen. Es gibt mehrere Räume, die alle miteinander verbunden sind, um die verschiedenen Momente des Tages in verschiedenen Umgebungen zu erleben. Ein Esszimmer und ein Wohnzimmer, eine Küche mit einer zentralen Insel, wo Sie ein perfektes Frühstück genießen können, und eine große Sommerterrasse mit einem Grill. All diese Räume sind so angelegt, dass Sie gute Gespräche führen, wichtige Familienereignisse feiern oder einfach nur entspannen und das Meer betrachten können. Das Hauptschlafzimmer wurde mit dem Gedanken an Komfort und Entspannung entworfen. Es ist ein privater Bereich mit einem großen Bad mit Badewanne und Dusche mit Blick auf das Meer. Es hat auch einen großen begehbaren Kleiderschrank und Zugang zu einer privaten Terrasse. Cumbre del Sol befindet sich in Benitachell, im Herzen des Gebirges von La Llorenca, im Norden der Costa Blanca. Es liegt zwischen den beiden Küstenstädten Javea und Moraira und ist von außergewöhnlichen Schutzgebieten wie dem Naturpark La Granadella umgeben. Es ist ganz in der Nähe von wunderschönen Stränden und Buchten und Städten wie Denia, Calpe und Altea. Ob Sie nun ein paar Tage, einen Urlaub, eine Saison oder das ganze Jahr in unserem Luxusresort in Benitachell verbringen, Sie werden feststellen, dass Cumbre del Sol alle Ihre Erwartungen erfüllt. Golfer, Taucher, Naturliebhaber und Sonnenanbeter sind nur wenige Minuten von den Dutzenden von paradiesischen Zielen an der Costa Blanca entfernt, die unsere Anlage umgeben.
Diese hier angegebenen Informationen unterliegen Fehlern und sind nicht Bestandteil eines Vertrages. Das Angebot kann ohne vorherige Ankündigung geändert oder zurückgezogen werden. Die Preise beinhalten keine Einkaufskosten.
Ihr Traumleben in Spanien beginnt mit unserem praktischen Reiseführer! In 4 Schritten ermöglichen wir Ihnen den Start unter der spanischen Sonne.
E-Mail info@gold-estates.be
Büro in Belgien: Moeistraat 20G, 9830 St-Martens-Latem
Büro in Spanien: Av. Marina Baixa 11, 03570 La Villa Joyosa, Alicante
© 2026 Gold Estates · Rechtlicher Hinweis · Privatsphäre · Cookies · BIV Legale Informatie · Web-Karte
Entwurf & CRM: Mediaelx
Finden Sie Ihr Traumhaus, indem Sie Ihre Immobilien speichern und Benachrichtigungen zu neuen verfügbaren Immobilien erhalten
Neuen Benutzer registrierenZunächst einmal, vielen Dank für Ihre Kontaktaufnahme.
Wir haben Ihre Anfrage bezüglich des Eigentumsverweises erhalten:GEE-93157. Einer unserer Mitarbeiter wird sich so schnell wie möglich mit Ihnen in Verbindung setzen.
Zunächst einmal, vielen Dank für Ihre Kontaktaufnahme.
Wir haben eine Anfrage für einen Bericht erhalten, wenn Sie den Preis der Immobilie mit der Referenz senken: GEE-93157
In der Zwischenzeit sehen Sie sich bitte diese Auswahl ähnlicher Objekte an, die für Sie von Interesse sein könnten: