Zunächst einmal, vielen Dank für Ihre Kontaktaufnahme.
Wir haben Ihre Anfrage bezüglich des Eigentumsverweises erhalten:GE-16048. Einer unserer Mitarbeiter wird sich so schnell wie möglich mit Ihnen in Verbindung setzen.
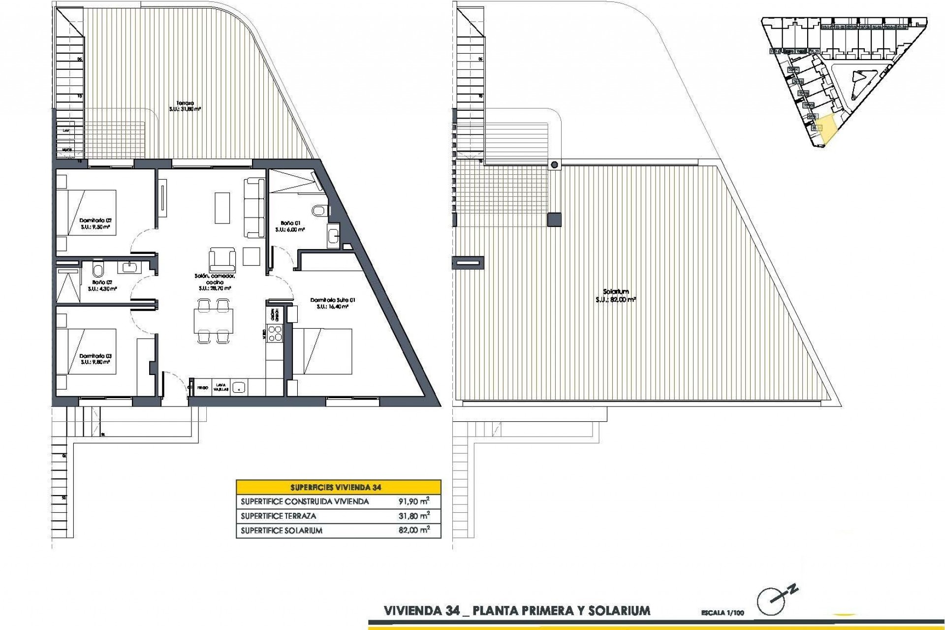
Neubau-Wohnanlage in San Fulgencio Zeitgemäße Wohnungen mit außergewöhnlichen Eigenschaften Entdecken Sie diese neue Wohnanlage in San Fulgencio mit 2- und 3-Schlafzimmer-Wohnungen, die auf Komfort, Stil und Bequemlichkeit ausgelegt sind. Der Komplex bietet: Wohnungen im Erdgeschoss mit privatem Garten Penthouse-Wohnungen mit privater Sonnenterrasse, Pergola, Steckdosen und Wasseranschlüssen Zu jeder Wohnung gehört ein privater Parkplatz, und die Anlage verfügt über einen Gemeinschaftspool im mediterranen Stil mit einer 85 m² großen Wasserfläche, umgeben von wunderschön angelegten Gärten. Hochwertige Verarbeitung und modernes Design Die Häuser sind mit hochwertigen Materialien und modernen Ausstattungsmerkmalen gebaut, um Energieeffizienz und einen hohen Lebensstandard zu gewährleisten: Elektrische Jalousien in den Schlafzimmern Doppelt verglaste Außenwände mit thermischer Trennung Voll ausgestattete Bäder mit Waschtischen, Spiegeln und Duschabtrennungen LED-Beleuchtung in der gesamten Wohnung Vorinstallierte Kanal-Klimaanlage zur Klimakontrolle Erstklassige Lage in der Nähe von Stränden, Golf und Annehmlichkeiten San Fulgencio ist eine charmante spanische Stadt mit einer Auswahl an Restaurants, Geschäften und wichtigen Dienstleistungen, die zu Fuß erreichbar sind. Seine strategische Lage bietet schnellen Zugang zu einigen der besten Attraktionen der Costa Blanca: Internationaler Flughafen Alicante-Elche - 30 km (30 min) Strand La Marina - 7 km (10 min) Guardamar del Segura - 10 km (12 min) La Marquesa Golfplatz (Ciudad Quesada) - 6 km (8 min) Torrevieja Stadtzentrum - 18 km (20 min) Einkaufszentren, Restaurants und Freizeitmöglichkeiten - nur eine kurze Autofahrt entfernt Das ideale Zuhause für das Leben an der Küste Diese neue Wohnanlage in San Fulgencio ist ideal für alle, die ein modernes Ferienhaus, eine Anlageimmobilie oder einen dauerhaften Wohnsitz an der Costa Blanca suchen. Mit seiner hervorragenden Lage in der Nähe des Strandes, der Golfplätze und der wichtigsten Dienstleistungen bietet es einen ruhigen und dennoch gut angebundenen Lebensstil. Verpassen Sie nicht die Gelegenheit, ein brandneues Haus in San Fulgencio zu besitzen. Kontaktieren Sie uns noch heute für weitere Informationen oder einen Besichtigungstermin!