Allereerst bedankt dat je contact met ons hebt opgenomen.
We hebben uw verzoek met betrekking tot de eigenschap referentie ontvangen:GE-16048. Een van onze agenten neemt zo snel mogelijk contact met u op.
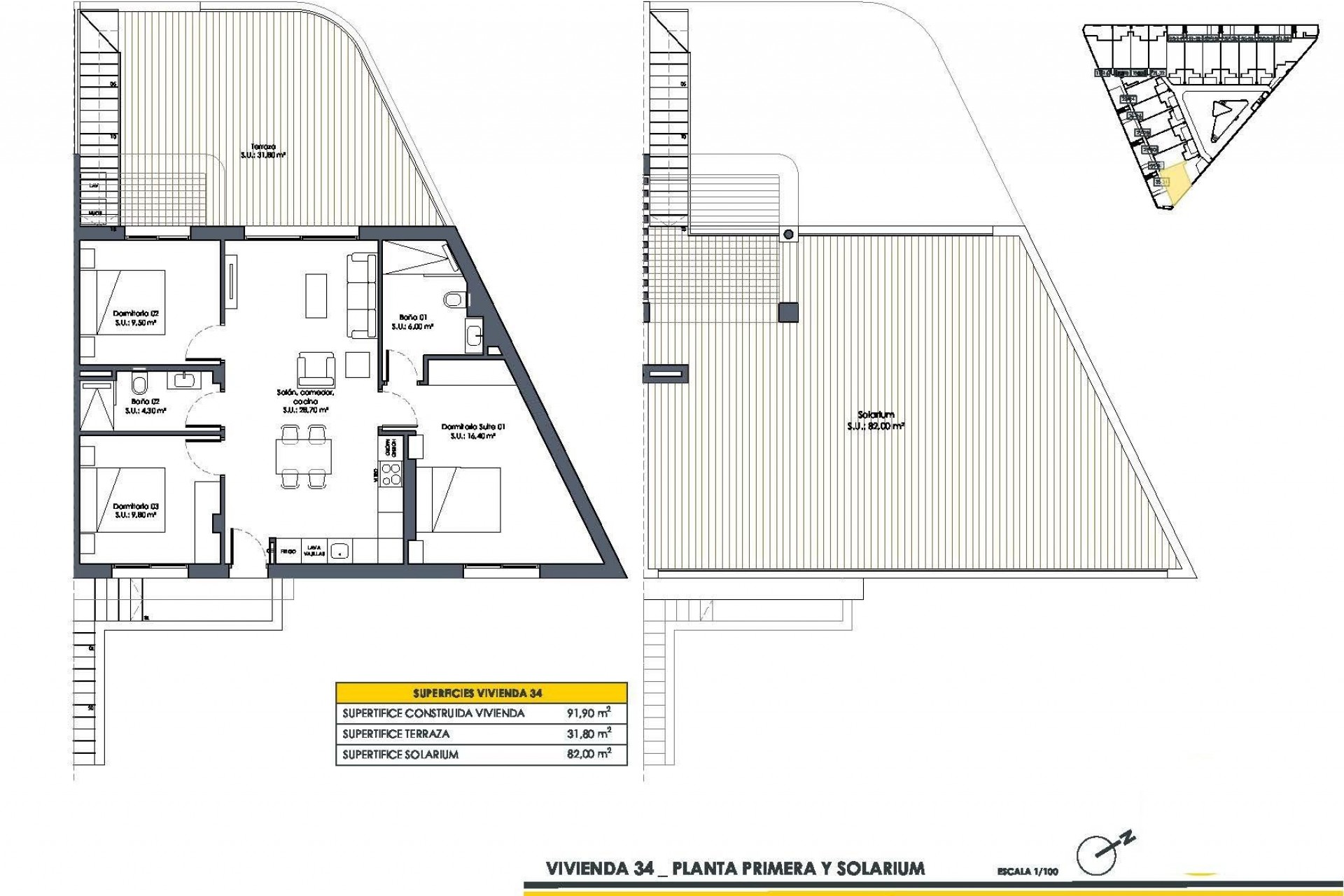
Nieuwbouw wooncomplex in San Fulgencio Eigentijdse appartementen met uitzonderlijke kenmerken Ontdek dit nieuwe wooncomplex in San Fulgencio, met appartementen met 2 en 3 slaapkamers die zijn ontworpen voor comfort, stijl en gemak. Het complex beschikt over: Appartementen op de begane grond met privétuinen Penthouses met privé solariums, pergola's, stopcontacten en waterpunten Elke woning heeft een eigen parkeerplaats en het complex beschikt over een gemeenschappelijk zwembad in mediterrane stijl met een watervlakte van 85 m², omgeven door prachtig aangelegde tuinen. Hoogwaardige afwerking en modern design Deze woningen zijn gebouwd met eersteklas materialen en moderne kenmerken om energie-efficiëntie en een hoge levensstandaard te garanderen: Elektrische rolluiken in slaapkamers Dubbelbeglaasd buitenschrijnwerk met thermische onderbrekingstechnologie Volledig uitgeruste badkamers met badmeubels, spiegels en doucheschermen LED-verlichting in het hele pand Vooraf geïnstalleerde airconditioning voor klimaatbeheersing Toplocatie dicht bij stranden, golf en voorzieningen San Fulgencio is een charmant Spaans stadje met een keur aan restaurants, winkels en essentiële voorzieningen op loopafstand. De strategische ligging biedt snelle toegang tot enkele van de beste attracties aan de Costa Blanca: Internationale luchthaven Alicante-Elche - 30 km (30 min) La Marina strand - 7 km (10 min) Guardamar del Segura - 10 km (12 min) La Marquesa Golfbaan (Ciudad Quesada) - 6 km (8 min) Torrevieja centrum - 18 km (20 min) Winkelcentra, restaurants en vrijetijdsopties - op korte rijafstand Het ideale huis voor de kust Dit nieuwe project in San Fulgencio is perfect voor wie op zoek is naar een moderne vakantiewoning, een vastgoedbelegging of een permanente verblijfplaats aan de Costa Blanca. Met zijn uitstekende locatie in de buurt van het strand, golfbanen en essentiële diensten biedt het een rustige maar goed verbonden levensstijl. Mis de kans niet om een gloednieuw huis te bezitten in San Fulgencio. Neem vandaag nog contact met ons op voor meer informatie of om een bezichtiging te plannen!