First of all, thanks for contacting us.
We have received your request regarding the property reference: GEE-30520. One of our agents will contact you as soon as possible.
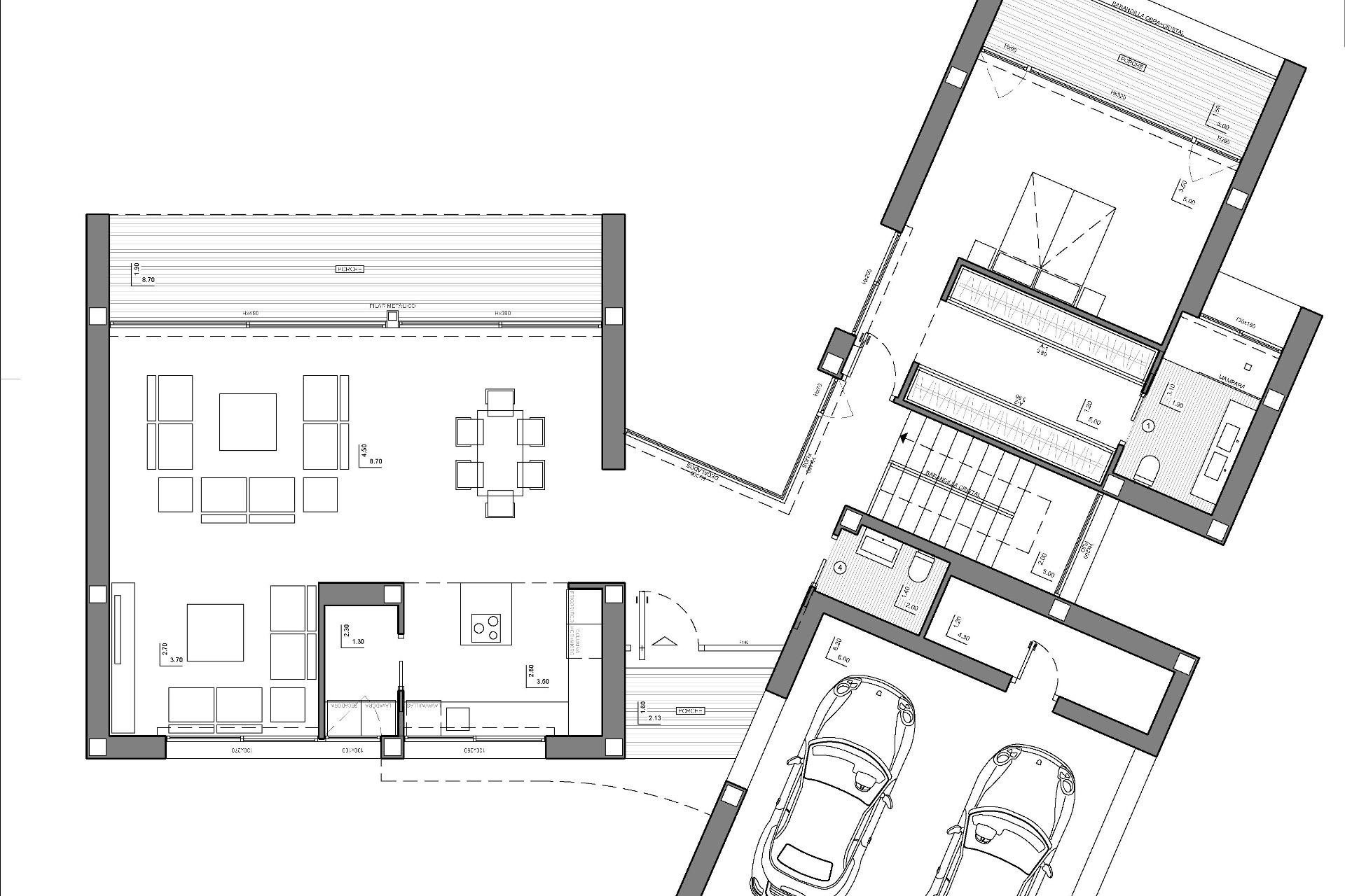
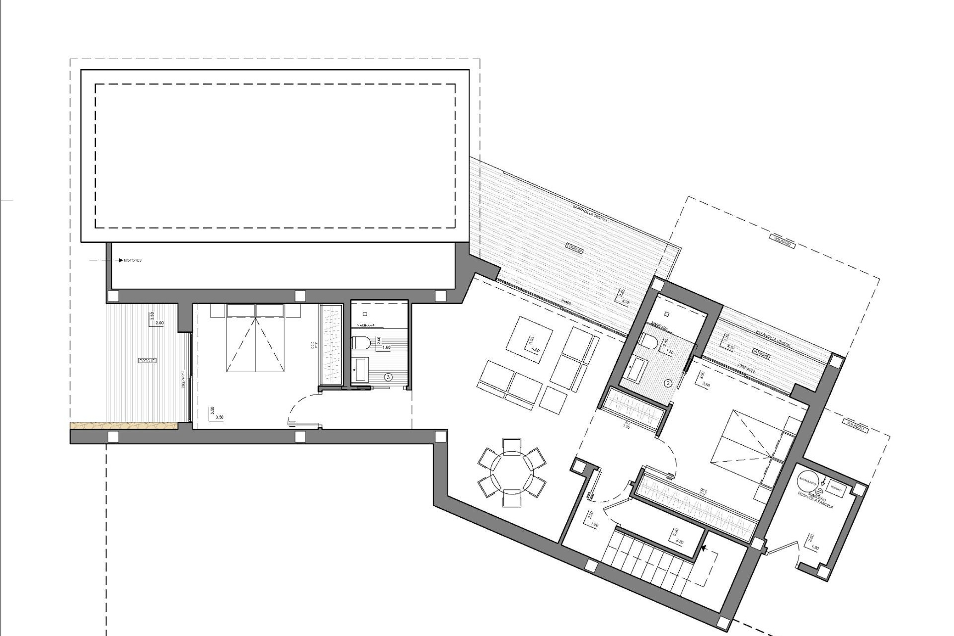
NEW BUILD LUXURY VILLA IN CUMBRE DEL SOL Cumbre del Sol is a place where you can enjoy both nature as well as the sun and sea. This luxury villa offers peace and comfort so the owner can relax peacefully with an incredible sea view. Could this be your future home? New Build villa design combines in a stylish and functional way a truly modern architecture. On its façade, characterized by large geometric figures created based on straight lines and the shape of cubes, the colour white dominates, giving the villa an elegant design as well as minimalistic. It´s garden, 100% mediterranean in style, has stone walls which help to integrate the villa with its surroundings. The living area is on the same floor. A spacious kitchen with a centre island equipped with top brand electrical appliances, a large living room and terrace with an amazing view of the Mediterranean sea. The living room has a very warm and cosy design. It consists of a large room, which could be divided into two rooms for more privacy. On the same floor, we can find the main suite with its own bathroom and private terrace, where you can enjoy the lovely weather and the sea views from the privacy you have from being in your own room. On the bottom floor there are two large bedrooms, each with their own bathroom and terrace, where you can enjoy the outdoors. There is also a small living room on this floor, where you could read, meditate, or just relax. The terrace area is crowned by an infinity pool, where you will be able to make the most of the sun and the spectacular views. An ideal place to have an aperitif, enjoy a barbecue with friends and family or simply have a siesta in the sun.