First of all, thanks for contacting us.
We have received your request regarding the property reference: GE2-39870. One of our agents will contact you as soon as possible.
Email info@gold-estates.be
Belgium office: Moeistraat 20G, 9830 St-Martens-Latem
Spain office: Av. Marina Baixa 11, 03570 La Villa Joyosa, Alicante
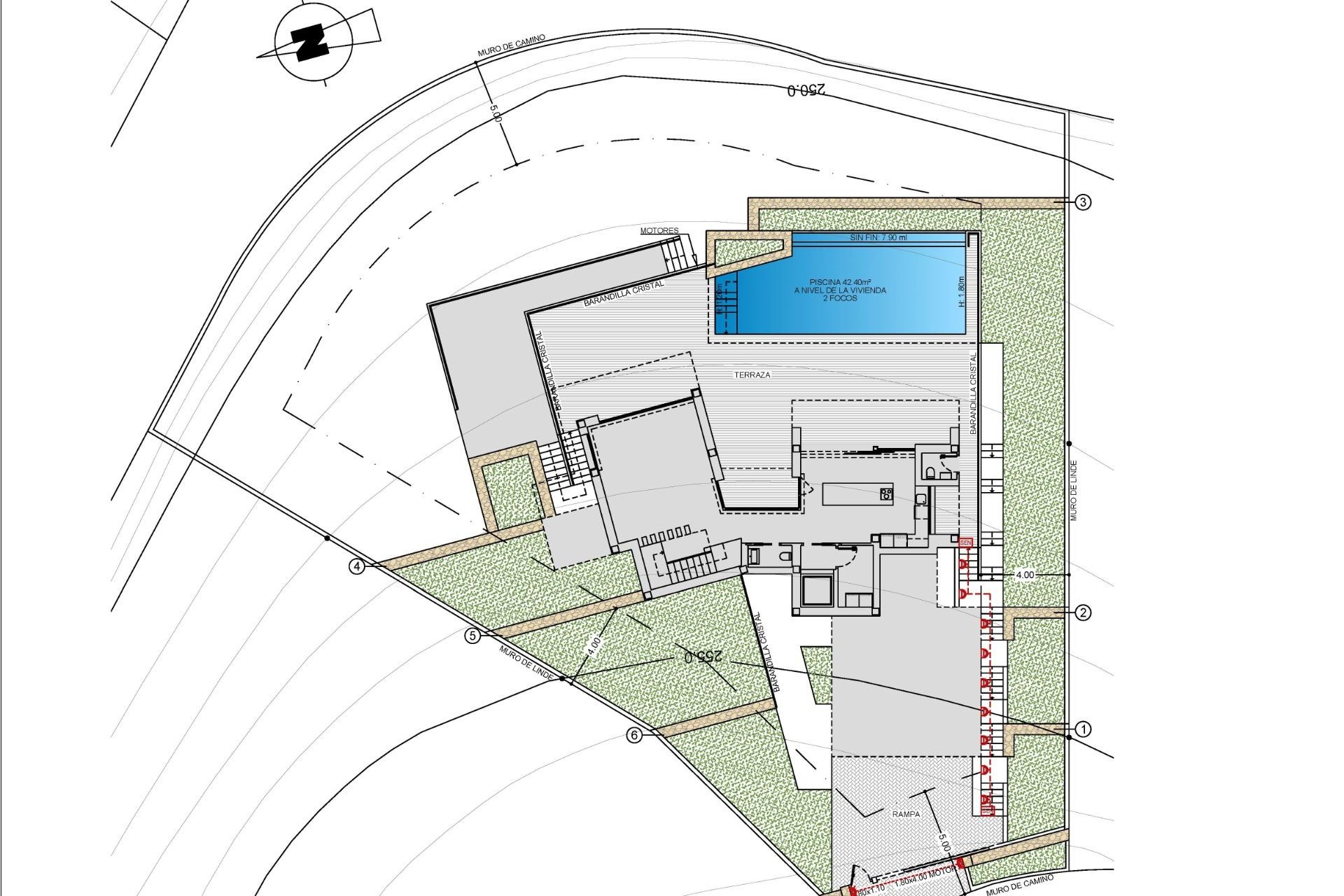
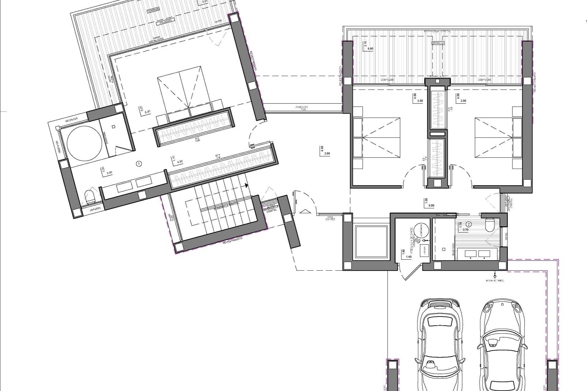
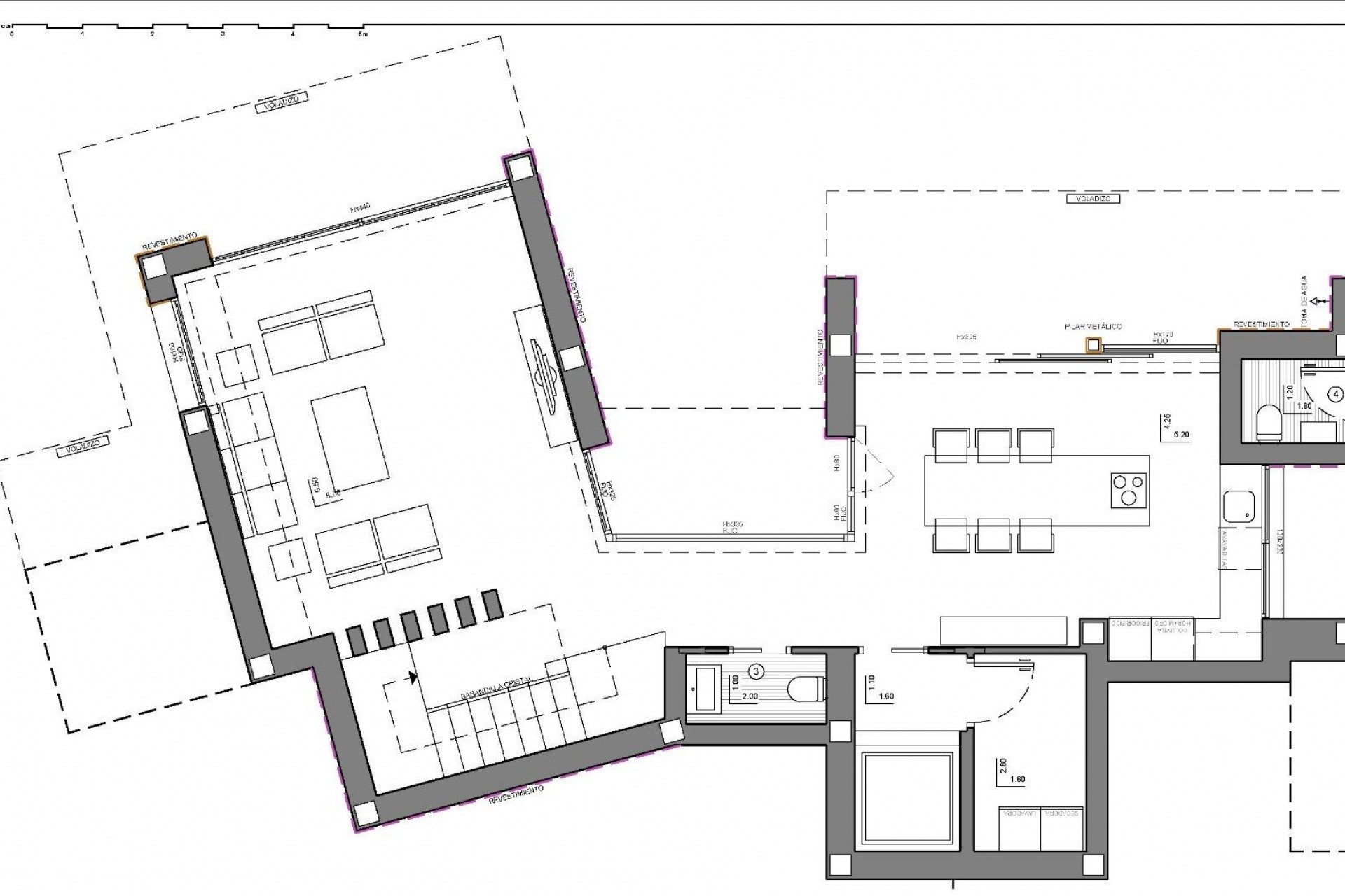
NEW BUILD LUXURY VILLA IN CUMBRE DEL SOL In the heart of the Residential Cumbre del Sol, you can find this luxury villa with its private pool. New Build modern villa design combines in an elegant and functional way, modern and Mediterranean architecture. On the façade, characterized by large geometrical shapes based on diagonal lines, the colour white dominates and the use of natural stone allows it to blend in with its environment. Its huge Mediterranean-style garden, crowned with an infinity-effect pool that blends into the blue of the sea, added to the mild climate of the North Costa Blanca, invites you to enjoy long days in the fresh outdoors nearly all year round. Its location will allow you to enjoy a peaceful and comfortable environment. The villa is distributed over 3 floors. You access the villa on through top floor, with covered parking for two vehicles and a lift that connects the entire house. The “night area”, made up of two bedrooms, a suite with bathroom, walk-in wardrobe and a private terrace and a shared bathroom are on this floor. All the bedrooms have access to a terrace from where you can enjoy one of the best sea views on the Costa Blanca. Waking up while watching the sun rising on the horizon of the Mediterranean is one of the many luxuries this villa has to offer you. On the lower floor we can find the living area, where the wide open spaces and the natural light are the main attractions, and where the frontier between the inside and the outside blend together thanks to its large panelled glass walls that allow access to the garden and pool area. Its kitchen equipped with modern top brand electrical appliances, has a central island, as well as a spacious bench area that provides you with plenty of storage space. The outdoor area has a covered area where you can hold the best social events while protected from the sun. The basement of this villa allows us to convert it into a 4 bedroom, or to personalise this space however you prefer (gymnasium, an office area, a games room…) The villa has underfloor heating, as well as hot/cold air-conditioning, home automation system, ECODAN… The residential has its own supermarket, bars and restaurants, sports areas and even a fiber optic service, which makes Cumbre del Sol an ideal place to work from home. All these characteristics make Villa perfect option to enjoy with friends and family during long periods of time or even as a main residence.
This info given here is subject to errors and do not form part of any contract. The offer can be changed or withdrawn without notice. Prices do not include purchase costs.
Your dream life in Spain starts with our handy guide! In 4 steps, we’ll get you started under the Spanish sun.
E-Mail info@gold-estates.be
Belgium office: Moeistraat 20G, 9830 St-Martens-Latem
Spain office: Av. Marina Baixa 11, 03570 La Villa Joyosa, Alicante
Find your dream home by saving your properties and receiving alerts about new properties available.
Register new userFirst of all, thanks for contacting us.
We have received your request regarding the property reference: GE2-39870. One of our agents will contact you as soon as possible.
First of all, thanks for contacting us.
We have received a request for a report if you lower the price of the property with the reference: GE2-39870
In the meantime, please have a look at this selection of similar properties, that might be of interest to you: