First of all, thanks for contacting us.
We have received your request regarding the property reference: GE2-25086. One of our agents will contact you as soon as possible.
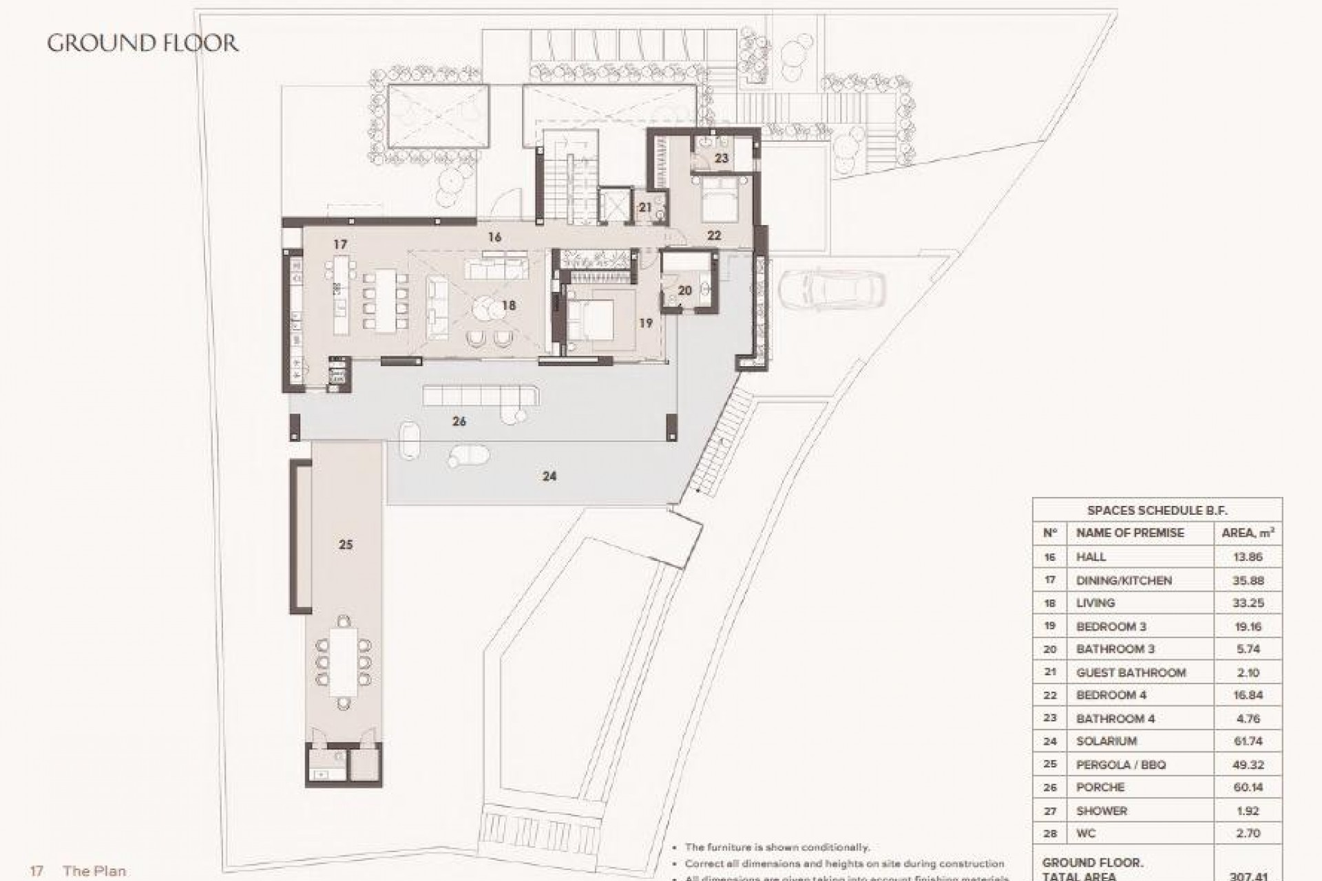
Luxurious Living in Cascada de Camoján, Marbella: A Haven of Privacy and Elegance. Exclusive Location on Marbella's Golden Mile. Nestled within the renowned Golden Mile of Marbella, Cascada de Camoján is an elite residential enclave celebrated for its luxurious ambiance, lush natural landscapes, and sense of serenity. Known for its breathtaking mountain and sea views, Cascada de Camoján offers residents a private and tranquil lifestyle away from the city’s bustling energy while remaining close to key amenities. This exclusive area combines natural beauty with sophisticated living, making it one of the most prestigious areas of Marbella. Proximity to Marbella's Main Attractions. This mansion in Cascada de Camoján is conveniently located just 5 km from Marbella’s charming city center, where upscale boutiques, fine dining, and vibrant nightlife await. The pristine beaches of Marbella are within 4 km, allowing for quick access to sun-soaked shores and seaside activities. The area is also close to several world-renowned golf courses, including the Marbella Golf Country Club, approximately 10 km away, making it a paradise for golf enthusiasts. For travelers, Málaga International Airport is only 55 km from the residence, ensuring ease of access for international visitors. An Architectural Marvel Blending Luxury with Nature. This stunning mansion is a masterpiece of architecture, designed to integrate seamlessly with its natural surroundings. Offering six bedrooms and seven bathrooms, the property includes ample space for both intimate gatherings and larger entertaining. The mansion boasts expansive indoor and outdoor areas, from covered terraces to an inviting solarium and a large poolside terrace perfect for sunbathing. The master bedroom features direct access to a private terrace, providing sweeping views of the Mediterranean. Ideal for Entertaining and Relaxation. This residence is crafted for luxurious comfort, with unique design elements, high-end materials, and a spacious layout perfect for family gatherings and entertaining. A well-appointed barbecue area allows for alfresco dining, while the vast solarium and poolside terrace offer spaces to unwind and soak up the Marbella sunshine. Cascada de Camoján offers an unmatched living experience, combining elegance, privacy, and access to Marbella’s finest amenities.