Dziękujemy za kontakt z naszym biurem
We have received your request regarding the property reference: GE2-25086. One of our agents will contact you as soon as possible.
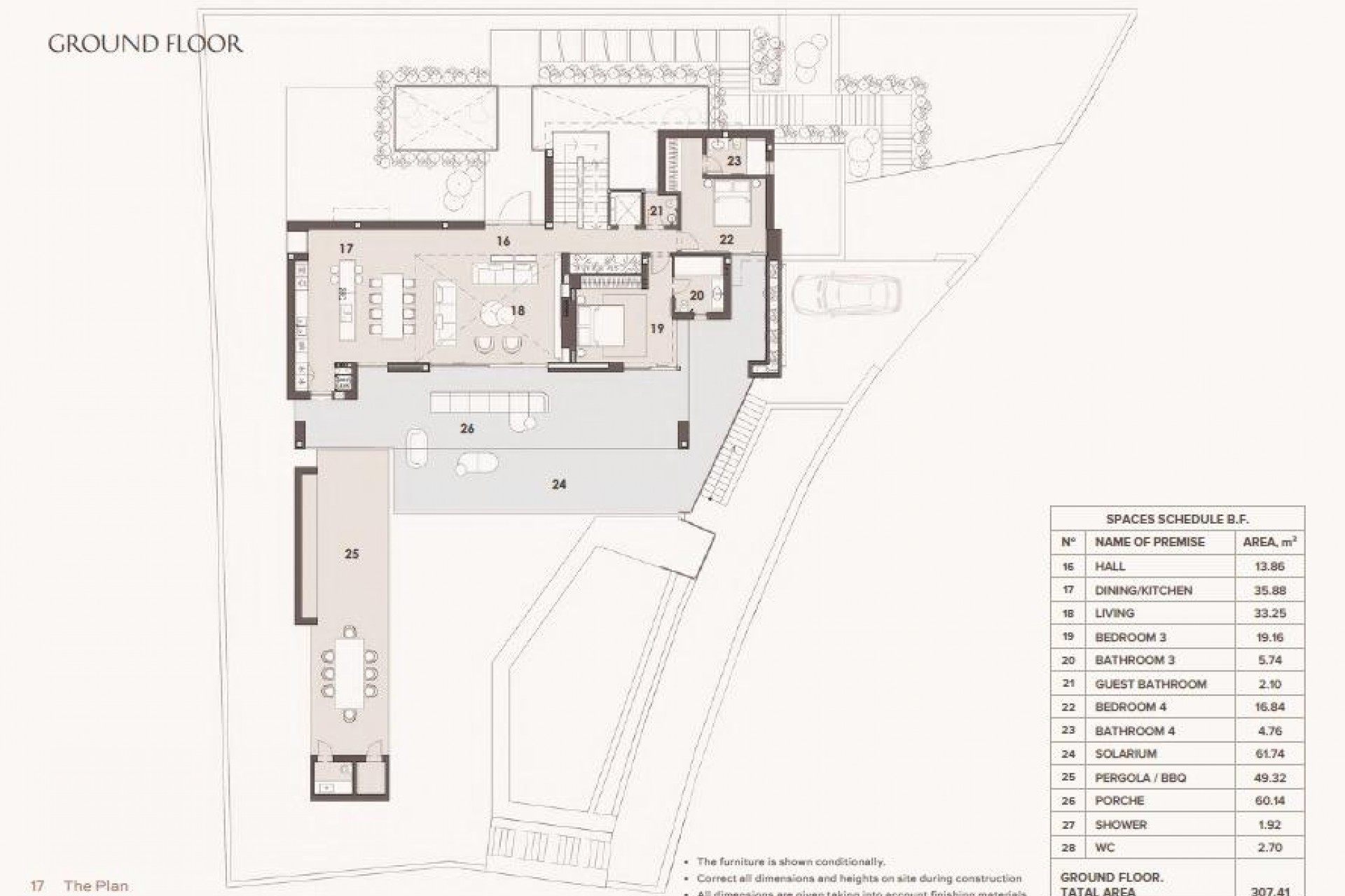
Luksusowe życie w Cascada de Camoján, Marbella: Oaza prywatności i elegancji. Ekskluzywna lokalizacja na Złotej Mili w Marbelli. Położona w słynnej Golden Mile w Marbelli, Cascada de Camoján to elitarna enklawa mieszkalna słynąca z luksusowej atmosfery, bujnych naturalnych krajobrazów i poczucia spokoju. Znana z zapierających dech w piersiach widoków na góry i morze, Cascada de Camoján oferuje mieszkańcom prywatny i spokojny styl życia z dala od tętniącego życiem miasta, pozostając jednocześnie blisko kluczowych udogodnień. Ten ekskluzywny obszar łączy w sobie naturalne piękno z wyrafinowanym życiem, co czyni go jednym z najbardziej prestiżowych obszarów Marbelli. Bliskość głównych atrakcji Marbelli. Ta rezydencja w Cascada de Camoján jest dogodnie zlokalizowana zaledwie 5 km od uroczego centrum Marbelli, gdzie czekają ekskluzywne butiki, wyśmienite restauracje i tętniące życiem życie nocne. Nieskazitelne plaże Marbelli znajdują się w odległości 4 km, co pozwala na szybki dostęp do skąpanych w słońcu wybrzeży i nadmorskich atrakcji. W okolicy znajduje się również kilka znanych na całym świecie pól golfowych, w tym Marbella Golf Country Club, oddalony o około 10 km, co czyni go rajem dla miłośników golfa. Dla podróżnych, międzynarodowe lotnisko w Maladze znajduje się zaledwie 55 km od rezydencji, zapewniając łatwy dostęp dla gości z zagranicy. Architektoniczny cud łączący luksus z naturą. Ta oszałamiająca rezydencja jest arcydziełem architektury, zaprojektowanym tak, aby płynnie integrować się z naturalnym otoczeniem. Oferując sześć sypialni i siedem łazienek, nieruchomość zapewnia dużo miejsca zarówno na kameralne spotkania, jak i większe rozrywki. Rezydencja oferuje rozległe obszary wewnętrzne i zewnętrzne, od zadaszonych tarasów po zachęcające solarium i duży taras przy basenie, idealny do opalania. Główna sypialnia ma bezpośredni dostęp do prywatnego tarasu, z którego roztacza się wspaniały widok na Morze Śródziemne. Idealny do rozrywki i relaksu. Ta rezydencja została stworzona z myślą o luksusowym komforcie, z unikalnymi elementami projektu, wysokiej klasy materiałami i przestronnym układem idealnym na rodzinne spotkania i rozrywkę. Dobrze wyposażone miejsce do grillowania pozwala na spożywanie posiłków na świeżym powietrzu, a rozległe solarium i taras przy basenie oferują miejsca do relaksu i rozkoszowania się słońcem Marbelli. Cascada de Camoján oferuje niezrównane wrażenia z życia, łącząc elegancję, prywatność i dostęp do najlepszych udogodnień Marbelli.