First of all, thanks for contacting us.
We have received your request regarding the property reference: CLE-11372. One of our agents will contact you as soon as possible.
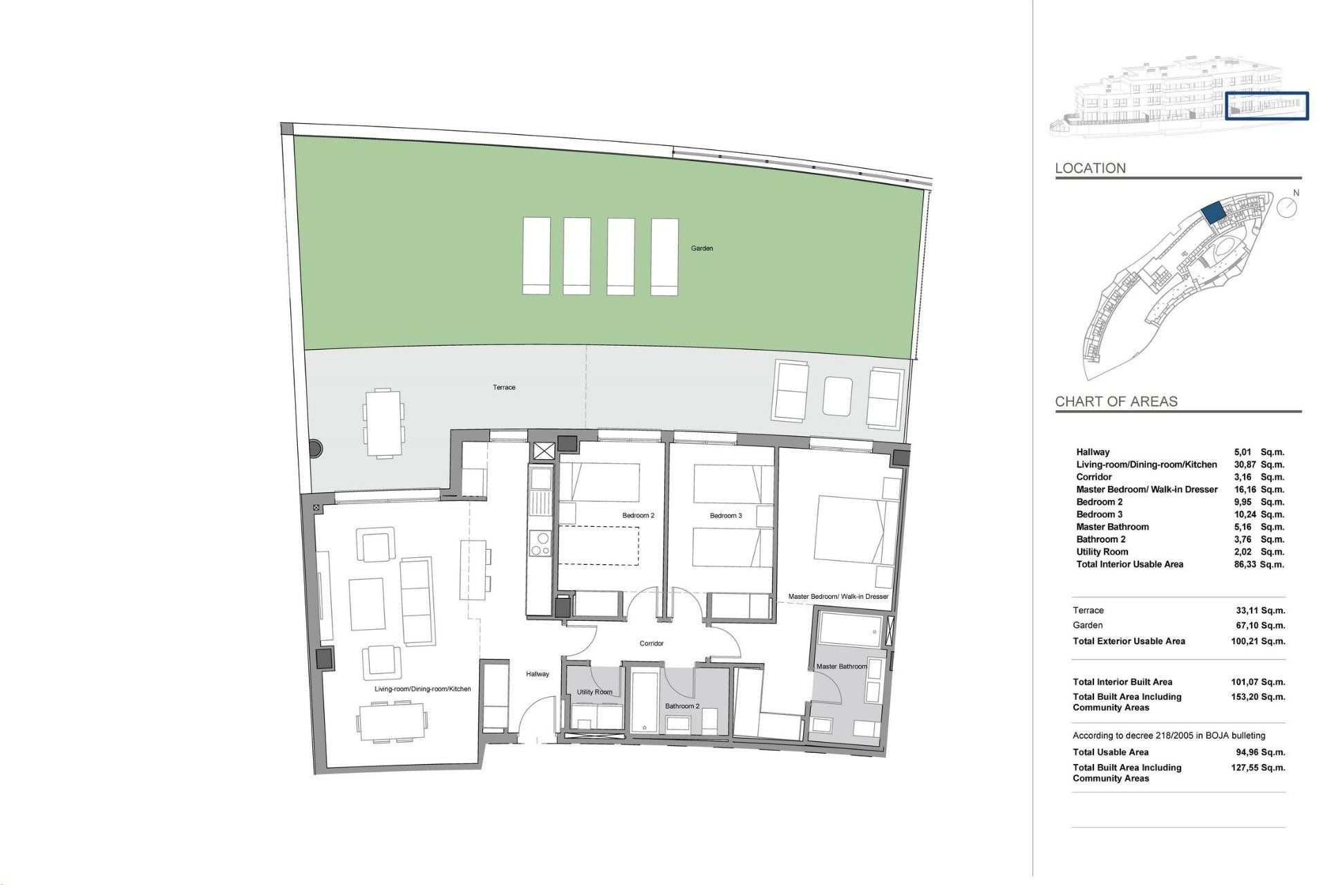
NEW BUILD RESIDENTIAL IN ESTEPONA New Build residential complex of 121 apartments and penthouses with 1, 2, 3 and 4 bedrooms in Estepona. Each property comes with garage and storage room. New Build development has exclusive garden common areas, which include two saline chlorination swimming pools, a gym with a sauna where you can enjoy a healthy life, a coworking room so that your work office is more closer than ever and a social club where you can enjoy the company of family and friends. This residential is choosing to live in a resort without leaving your home. All homes have been designed to have spatial fluidity between the living room and the open kitchen, with direct access to the terrace, where the views and light will be the protagonists of your best setting. The complex is located just a few minutes from the Estepona promenade and the beach, in the area of the Teatro Auditorio Felipe VI, a new area of expansion, within the urban area. Its privileged location means you can fully enjoy unobstructed views of the sea, the mountains or the city center. Residential has direct access from the road and is close to all the services you may need such as educational, health, sports and commercial centers. Estepona is only thirty minutes from the centre of Marbella and one hour from Malaga airport, with a wide range of sports and gastronomy, as well as a wide range of cultural and leisure activities, with world-renowned golf courses, and water sports such as scuba diving, sailing and surfing.