En primer lugar, gracias por contactarnos.
Hemos recibido su solicitud con respecto a la referencia de propiedad:CLE-11372. Uno de nuestros agentes se pondrá en contacto con usted lo antes posible.
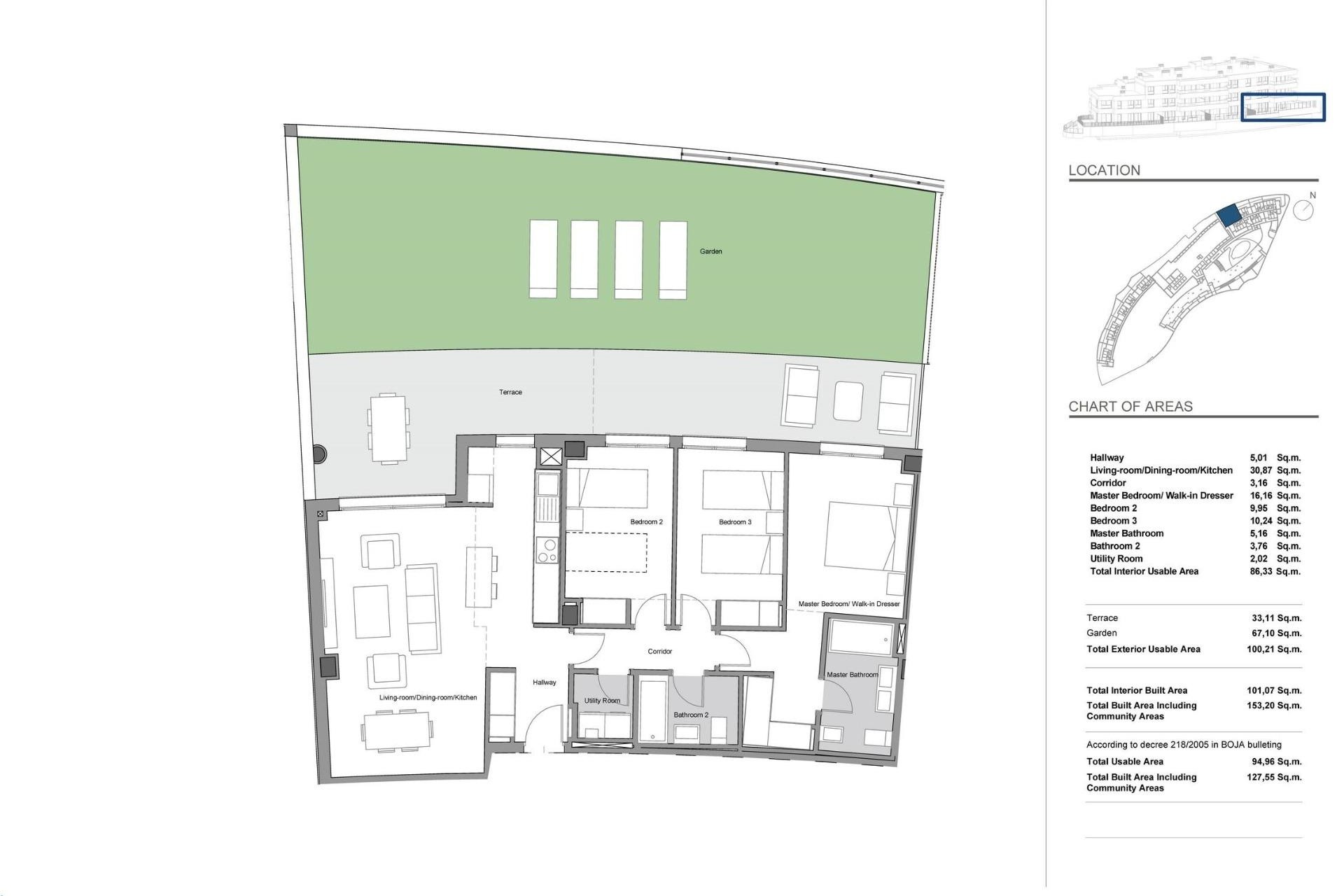
RESIDENCIAL DE OBRA NUEVA EN ESTEPONA Complejo residencial de obra nueva de 121 apartamentos y áticos de 1, 2, 3 y 4 dormitorios en Estepona. Cada vivienda dispone de garaje y trastero. La promoción de Obra Nueva cuenta con exclusivas zonas comunes ajardinadas, que incluyen dos piscinas de cloración salina, un gimnasio con sauna donde disfrutar de una vida saludable, una sala de coworking para que tu oficina de trabajo esté más cerca que nunca y un club social donde disfrutar de la compañía de familiares y amigos. Este residencial es elegir vivir en un resort sin salir de casa. Todas las viviendas han sido diseñadas para que exista fluidez espacial entre el salón y la cocina abierta, con acceso directo a la terraza, donde las vistas y la luz serán los protagonistas de tu mejor ambiente. El complejo se encuentra a pocos minutos del paseo marítimo de Estepona y de la playa, en la zona del Teatro Auditorio Felipe VI, una nueva área de expansión, dentro del casco urbano. Su privilegiada ubicación permite disfrutar plenamente de vistas despejadas al mar, a la montaña o al centro de la ciudad. El residencial tiene acceso directo desde la carretera y está cerca de todos los servicios que pueda necesitar como centros educativos, sanitarios, deportivos y comerciales. Estepona se encuentra a tan sólo treinta minutos del centro de Marbella y a una hora del aeropuerto de Málaga, con una amplia oferta deportiva y gastronómica, así como una amplia oferta cultural y de ocio, con campos de golf de renombre mundial, y deportes náuticos como submarinismo, vela y surf.