First of all, thanks for contacting us.
We have received your request regarding the property reference: GE2-66616. One of our agents will contact you as soon as possible.
Email info@gold-estates.be
Belgium office: Moeistraat 20G, 9830 St-Martens-Latem
Spain office: Av. Marina Baixa 11, 03570 La Villa Joyosa, Alicante
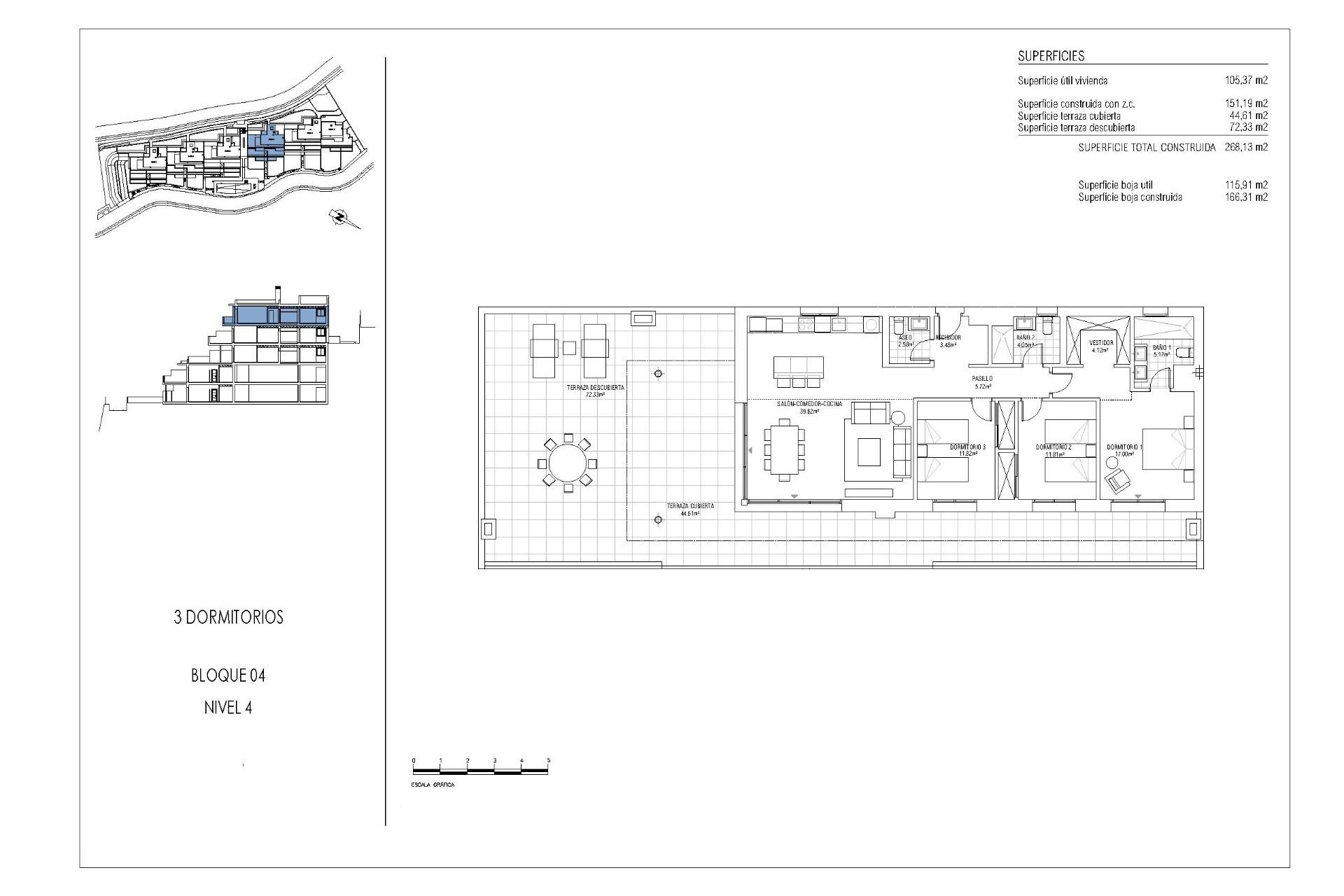
NEW BUILD RESIDENTIAL COMPLEX IN CASARES New Build residential complex of 51 apartments and penthouses with 2 and 3 bedrooms, spread over 6 modern-style blocks in Casares, on the Costa del Sol. It is worth highlighting that one of the main features of the construction of development is its low density. A small number of units in a large area; thanks to this exclusivity, the development has units with large bedrooms and terraces, with a contemporary architectural design, visually highly attractive, stylish, relaxing and with meticulous finishes, with ample space and designed to be enjoyed all of the time, with a careful orientation with impressive views. All apartments include a parking space and storeroom. Communal areas have an adult pool of almost 160m2, SPA, gym and co-working area. Enjoy the peaceful surroundings and experience the privilege of living in this place. Casares, on the Costa del Sol, Malaga. Puerto Banus is 30 minutes away, 35 minutes from Marbella, 10 minutes from the marina of Sotogrande. Located close to the magnificent beaches of Tarifa in the province of Cadiz. Some of the best Golf Courses are located just 10 minutes from the development. Road communication is excellent, connecting with the N340 at km 145 and also well connected to the toll road. The international airport at Malaga and AVE train station is just 1 hour away and Gibraltar airport 25 minutes.
This info given here is subject to errors and do not form part of any contract. The offer can be changed or withdrawn without notice. Prices do not include purchase costs.
Your dream life in Spain starts with our handy guide! In 4 steps, we’ll get you started under the Spanish sun.
E-Mail info@gold-estates.be
Belgium office: Moeistraat 20G, 9830 St-Martens-Latem
Spain office: Av. Marina Baixa 11, 03570 La Villa Joyosa, Alicante
Find your dream home by saving your properties and receiving alerts about new properties available.
Register new userFirst of all, thanks for contacting us.
We have received your request regarding the property reference: GE2-66616. One of our agents will contact you as soon as possible.
First of all, thanks for contacting us.
We have received a request for a report if you lower the price of the property with the reference: GE2-66616
In the meantime, please have a look at this selection of similar properties, that might be of interest to you: