Allereerst bedankt dat je contact met ons hebt opgenomen.
We hebben uw verzoek met betrekking tot de eigenschap referentie ontvangen:GE2-66616. Een van onze agenten neemt zo snel mogelijk contact met u op.
Email info@gold-estates.be
Kantoor België: Moeistraat 20G, 9830 St-Martens-Latem
Kantoor Spanje: Av. Marina Baixa 11, 03570 La Villa Joyosa, Alicante
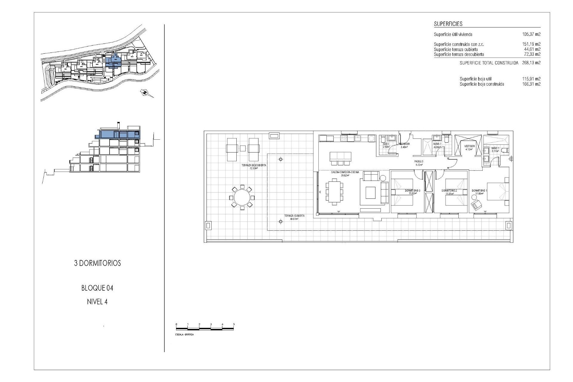
NIEUWBOUW WOONCOMPLEX IN CASARES Nieuwbouwcomplex met 51 appartementen en penthouses met 2 en 3 slaapkamers, verdeeld over 6 blokken in moderne stijl in Casares, aan de Costa del Sol. Het is de moeite waard om te benadrukken dat een van de belangrijkste kenmerken van de bouw van de ontwikkeling is de lage dichtheid. Een klein aantal eenheden in een groot gebied; dankzij deze exclusiviteit heeft de ontwikkeling eenheden met grote slaapkamers en terrassen, met een eigentijds architectonisch ontwerp, visueel zeer aantrekkelijk, stijlvol, ontspannend en met zorgvuldige afwerking, met veel ruimte en ontworpen om de hele tijd van te genieten, met een zorgvuldige oriëntatie met een indrukwekkend uitzicht. Alle appartementen hebben een parkeerplaats en berging. Gemeenschappelijke ruimtes hebben een zwembad voor volwassenen van bijna 160m2, SPA, fitnessruimte en een co-working ruimte. Geniet van de rustige omgeving en ervaar het voorrecht om op deze plek te wonen. Casares, aan de Costa del Sol, Malaga. Puerto Banus ligt op 30 minuten afstand, 35 minuten van Marbella en 10 minuten van de jachthaven van Sotogrande. Dichtbij de prachtige stranden van Tarifa in de provincie Cádiz. Enkele van de beste golfbanen liggen op slechts 10 minuten van het project. De wegverbindingen zijn uitstekend, met aansluiting op de N340 bij km 145 en ook een goede verbinding met de tolweg. Het internationale vliegveld van Malaga en het AVE treinstation liggen op slechts 1 uur rijden en het vliegveld van Gibraltar op 25 minuten.
Deze informatie is hier onderhevig aan fouten en maakt geen deel uit van een contract. De aanbieding kan zonder kennisgeving worden gewijzigd of ingetrokken. Prijzen zijn exclusief aankoopkosten.
Jouw droomleven in Spanje begint met onze handige gids! In 4 stappen maken we jou wegwijs onder de Spaanse zon.
E-Mail info@gold-estates.be
Kantoor België: Moeistraat 20G, 9830 St-Martens-Latem
Kantoor Spanje: Av. Marina Baixa 11, 03570 La Villa Joyosa, Alicante
Vind uw droomhuis door uw panden te bewaren en meldingen te ontvangen over nieuwe beschikbare panden.
Nieuwe gebruiker registrerenAllereerst bedankt dat je contact met ons hebt opgenomen.
We hebben uw verzoek met betrekking tot de eigenschap referentie ontvangen:GE2-66616. Een van onze agenten neemt zo snel mogelijk contact met u op.
Allereerst bedankt dat je contact met ons hebt opgenomen.
We hebben een aanvraag voor een rapport ontvangen als u de prijs van het onroerend goed met de referentie verlaagt: GE2-66616
Bekijk in de tussentijd eens een selectie van vergelijkbare woningen die voor u van belang kunnen zijn: