En primer lugar, gracias por contactarnos.
Hemos recibido su solicitud con respecto a la referencia de propiedad:GEE-76900. Uno de nuestros agentes se pondrá en contacto con usted lo antes posible.
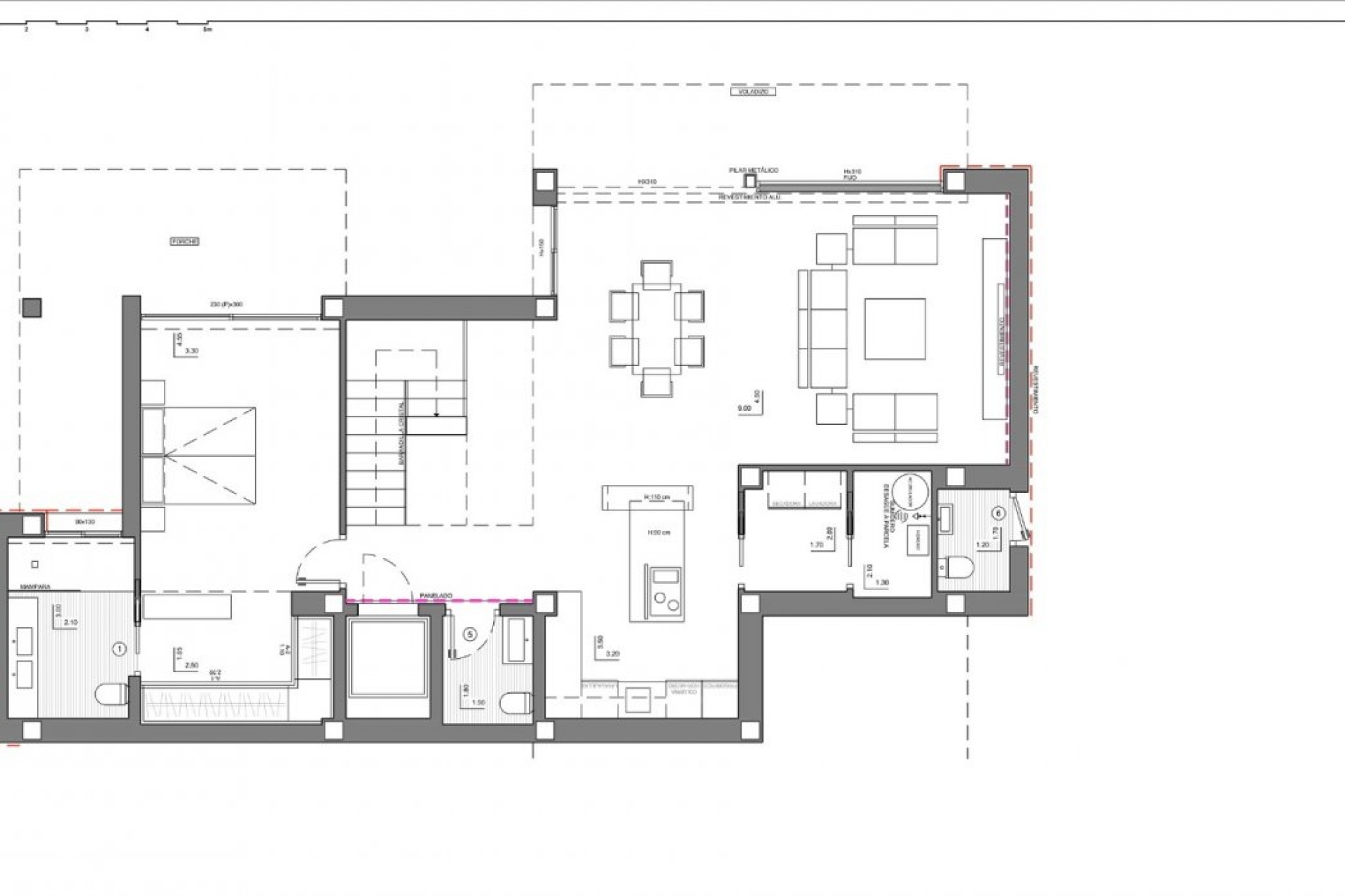
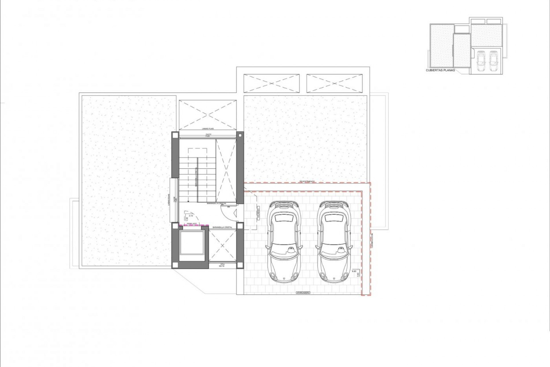
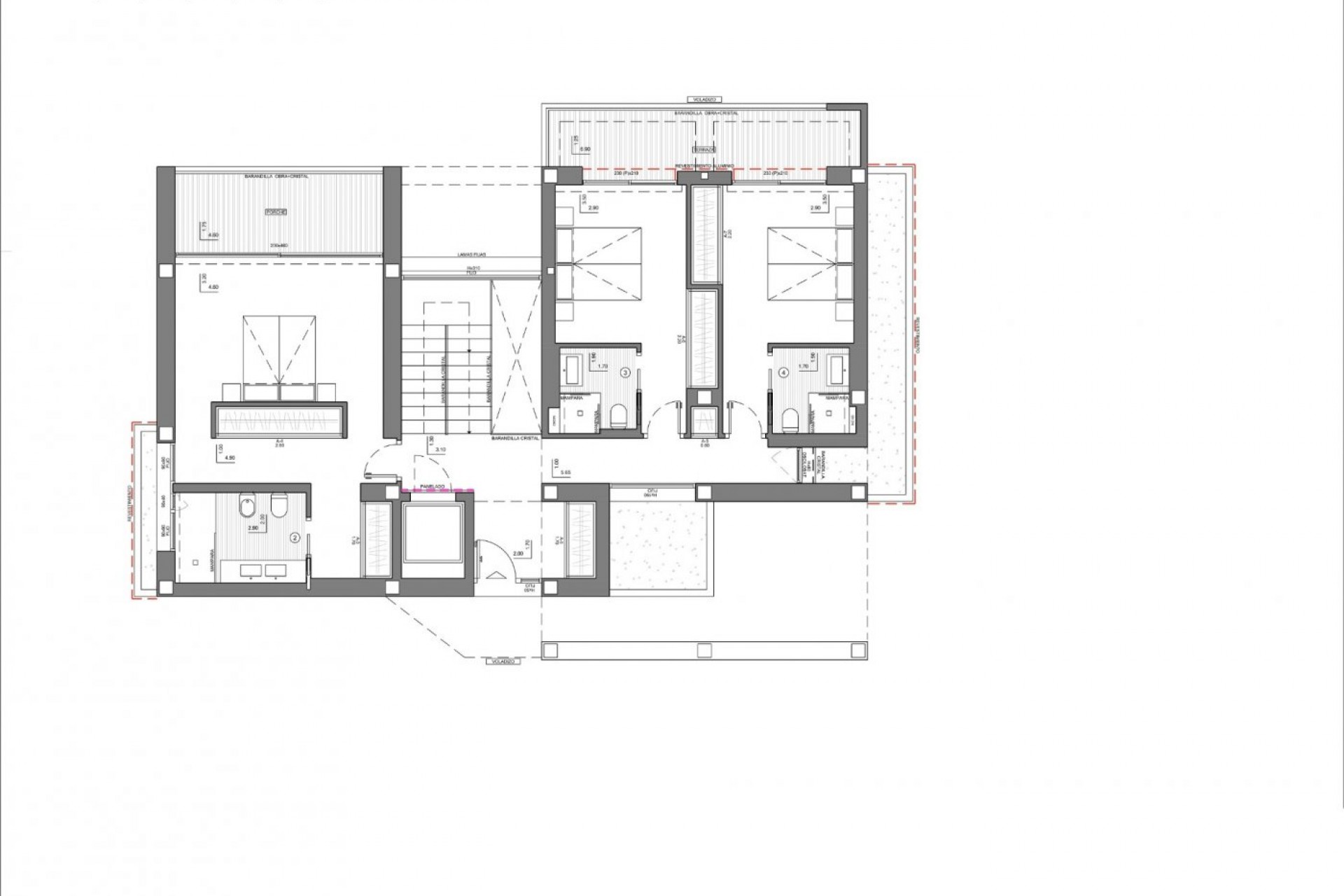
VILLA DE LUJO DE OBRA NUEVA EN ALTEA Villa de lujo de nueva construcción situada en una de las zonas más deseadas de Altea, que combina tecnología punta, interiores confortables, eficiencia energética y materiales que potencian la luz y el espacio. La vivienda, con vistas de 360º al mar y al skyline de Benidorm, se encuentra en una zona privilegiada de Altea la Vella, uno de los enclaves más emblemáticos de la Costa Blanca Norte. La arquitectura, de líneas modernas y funcionales, está diseñada para que los espacios respiren y se abran a la gran terraza y a la piscina. La luz, el aire, el mar y la vegetación dejan claro que el estilo se adapta al paisaje y se integra en él. Está construida en tres niveles, el acceso se realiza por el nivel más alto, que alberga el garaje y el vestíbulo de la casa, dotado de ascensor, para que el desplazamiento entre niveles sea cómodo. La planta intermedia alberga tres dormitorios, todos con baño en suite y acceso a una terraza para disfrutar del mar desde todas las estancias de la casa. En la planta principal se encuentra el cuarto dormitorio de esta villa, también con acceso directo a la terraza y a toda la zona de día, un gran salón de planta abierta conectado con la cocina, la terraza y la piscina. Esta villa es mucho más que una magnífica propiedad junto al Mediterráneo, es una villa eficiente equipada con sistema de calefacción, aire acondicionado y agua caliente por Aerotermia, instalación de paneles fotovoltaicos, punto de carga de coches eléctricos y sistema de domótica para estar siempre conectado a su hogar. Los espacios exteriores, construidos en diferentes niveles, permiten que la piedra y las plantas autóctonas jueguen su papel decorativo, a la vez que se integran perfectamente en el entorno. Altea es uno de los pueblos con más encanto de la Costa Blanca. Además, ostenta el título oficial de Capital Cultural de la Comunidad Valenciana. Altea cuenta con una ubicación privilegiada, tanto con mar y playa, como con montaña y río. Altea tiene más de 8 km de costa, alternando acantilados y pequeñas calas con tramos de playa en terreno llano. El aeropuerto de Alicante se encuentra a 50 minutos en coche y el de Valencias a 1,5 horas.