Allereerst bedankt dat je contact met ons hebt opgenomen.
We hebben uw verzoek met betrekking tot de eigenschap referentie ontvangen:GEE-76900. Een van onze agenten neemt zo snel mogelijk contact met u op.
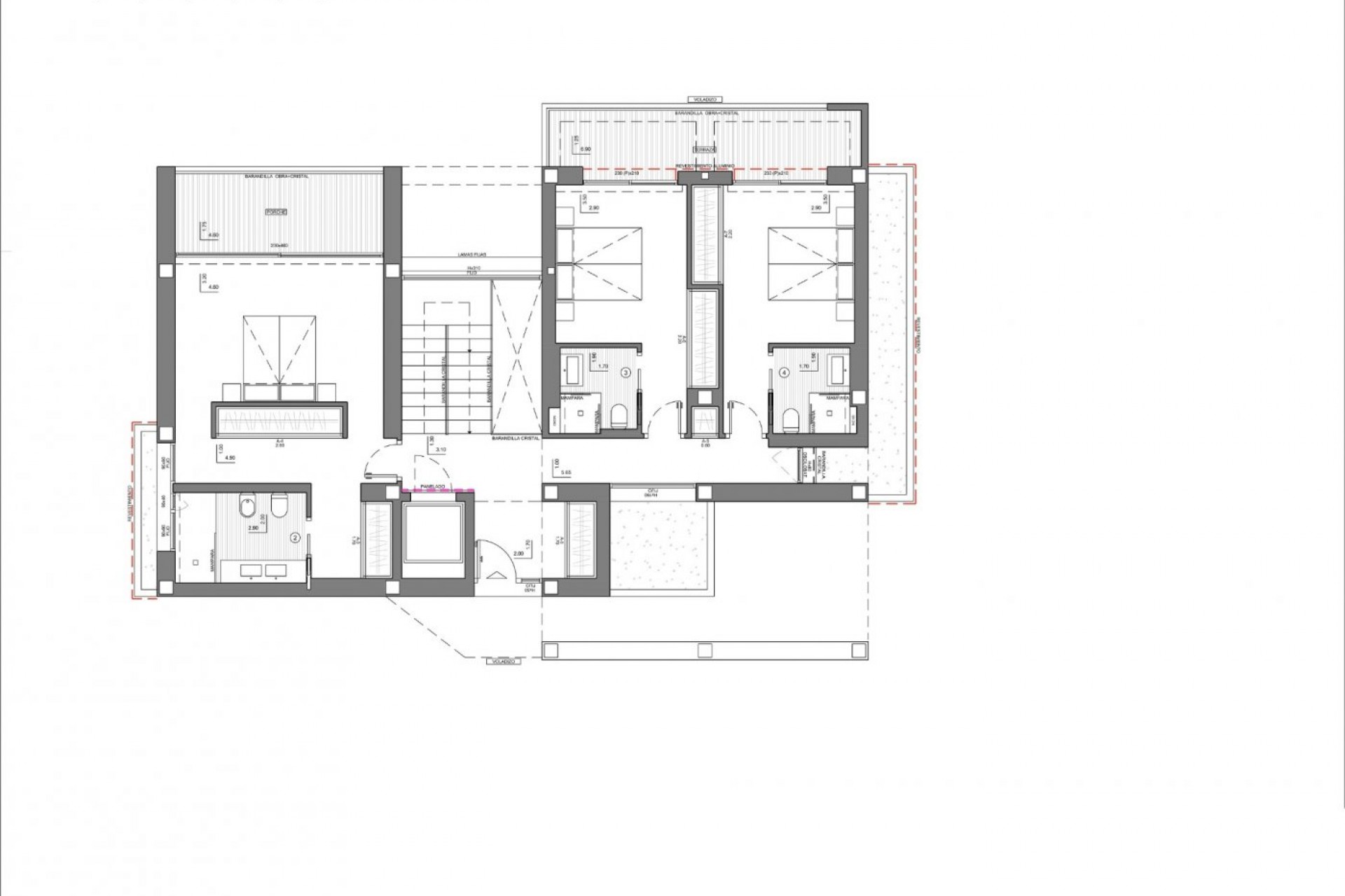
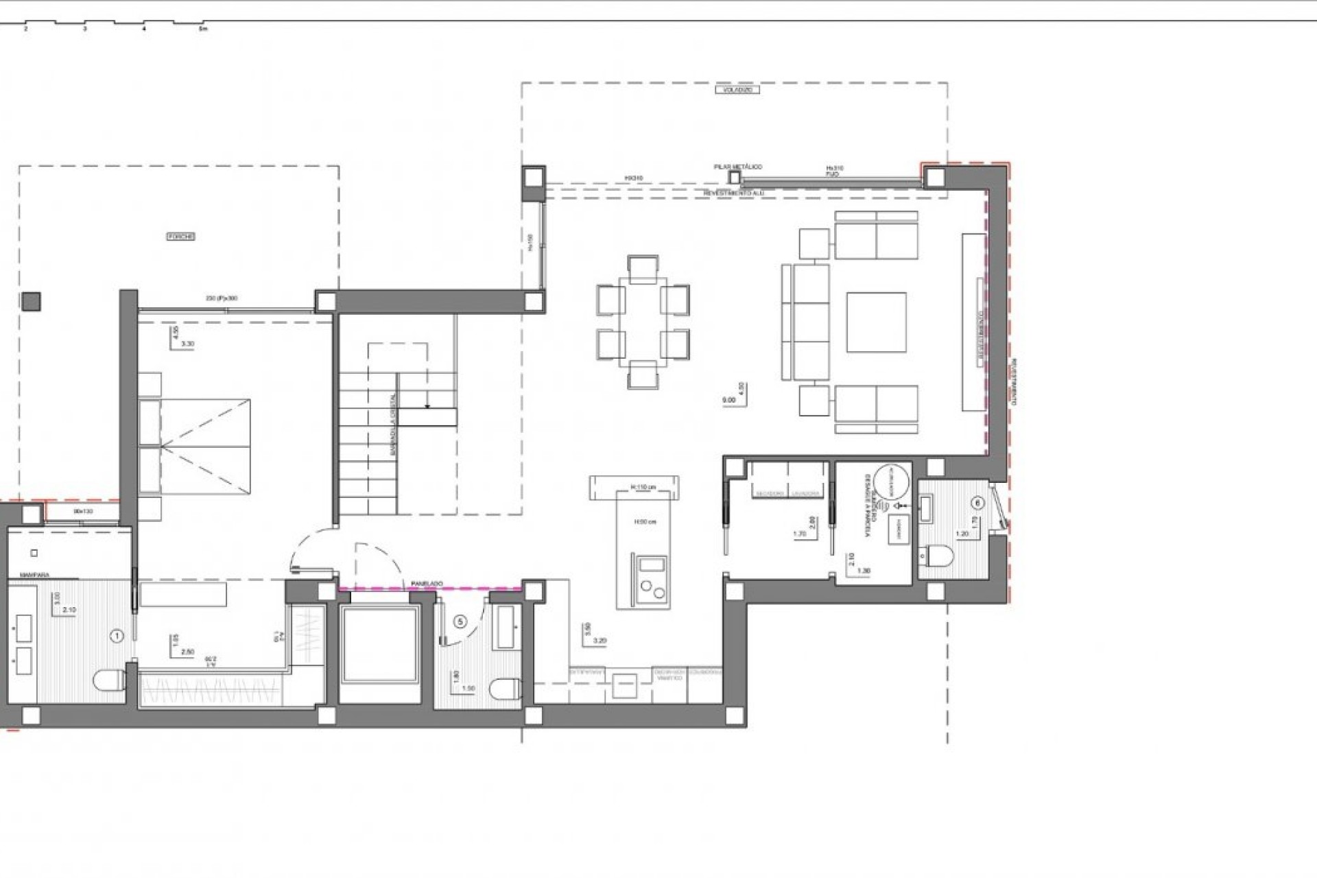
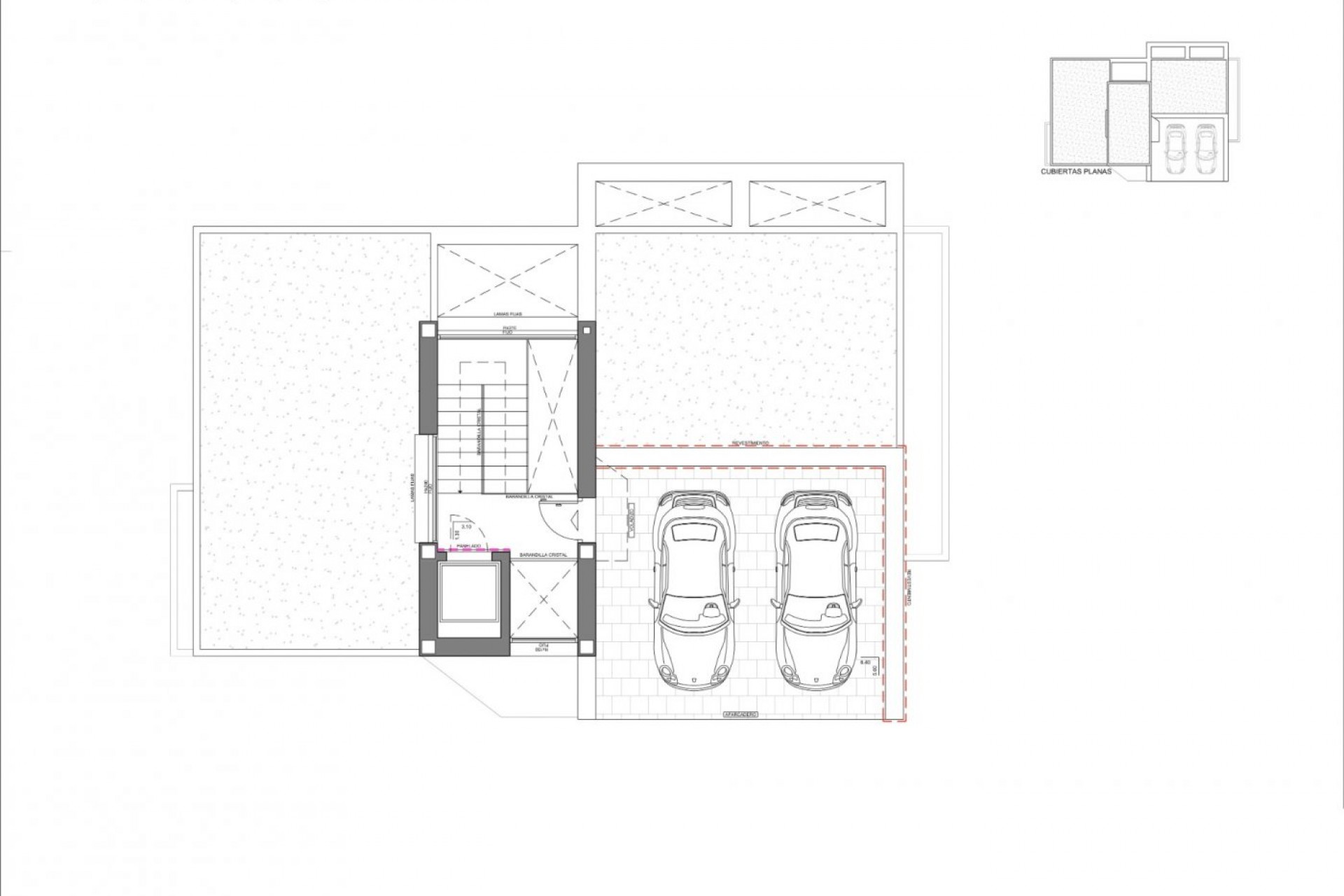
NIEUWBOUW LUXE VILLA IN ALTEA Nieuwbouw luxe villa gelegen in een van de meest gewilde gebieden van Altea, een combinatie van geavanceerde technologie, comfortabele interieurs, energie-efficiëntie en materialen die het licht en de ruimte te verbeteren. De woning, met 360° uitzicht op de zee en de skyline van Benidorm, is gelegen in een bevoorrechte omgeving van Altea la Vella, een van de meest emblematische enclaves van de Costa Blanca Noord. De architectuur, met zijn moderne en functionele lijnen, is ontworpen om de ruimten te laten ademen en zich te openen naar het grote terras en het zwembad. Licht, lucht, zee en vegetatie maken duidelijk dat de stijl zich aanpast aan het landschap en zich ermee integreert. Het is gebouwd op drie niveaus, de toegang is via het hoogste niveau, waar zich de garage en de hal van het huis bevinden, uitgerust met een lift, zodat verplaatsing tussen de niveaus comfortabel is. De middelste verdieping herbergt drie slaapkamers, allen met en-suite badkamers en toegang tot een terras om van de zee te genieten vanuit elke kamer van het huis. Op de hoofdverdieping bevindt zich de vierde slaapkamer van deze villa, ook met directe toegang tot het terras en het hele daggedeelte, een grote open woonkamer verbonden met de keuken, het terras en het zwembad. Deze villa is veel meer dan een prachtige woning naast de Middellandse Zee, het is een efficiënte villa uitgerust met verwarming, airconditioning en warm water systeem door Aerotermia, installatie van fotovoltaïsche panelen, elektrische auto oplaadpunt en domotica systeem om altijd verbonden te zijn met uw huis. De buitenruimtes, gebouwd op verschillende niveaus, laten steen en inheemse planten toe hun decoratieve rol te spelen, terwijl ze perfect integreren met de omgeving. Altea is één van de meest charmante dorpen aan de Costa Blanca. Het heeft ook de officiële titel van culturele hoofdstad van de Valenciaanse Gemeenschap. Altea heeft een bevoorrechte ligging met zowel zee en strand, als berg en rivier. Altea heeft meer dan 8 km kustlijn, afwisselend kliffen en kleine baaien met stukken strand op vlak terrein. De luchthaven van Alicante ligt op 50 minuten rijden en de luchthaven van Valencias ligt op 1,5 uur rijden.