En primer lugar, gracias por contactarnos.
Hemos recibido su solicitud con respecto a la referencia de propiedad:CL-78747. Uno de nuestros agentes se pondrá en contacto con usted lo antes posible.
Email info@gold-estates.be
Oficina en Bélgica: Moeistraat 20G, 9830 St-Martens-Latem
Oficina en España: Av. Marina Baixa 11, 03570 La Villa Joyosa, Alicante
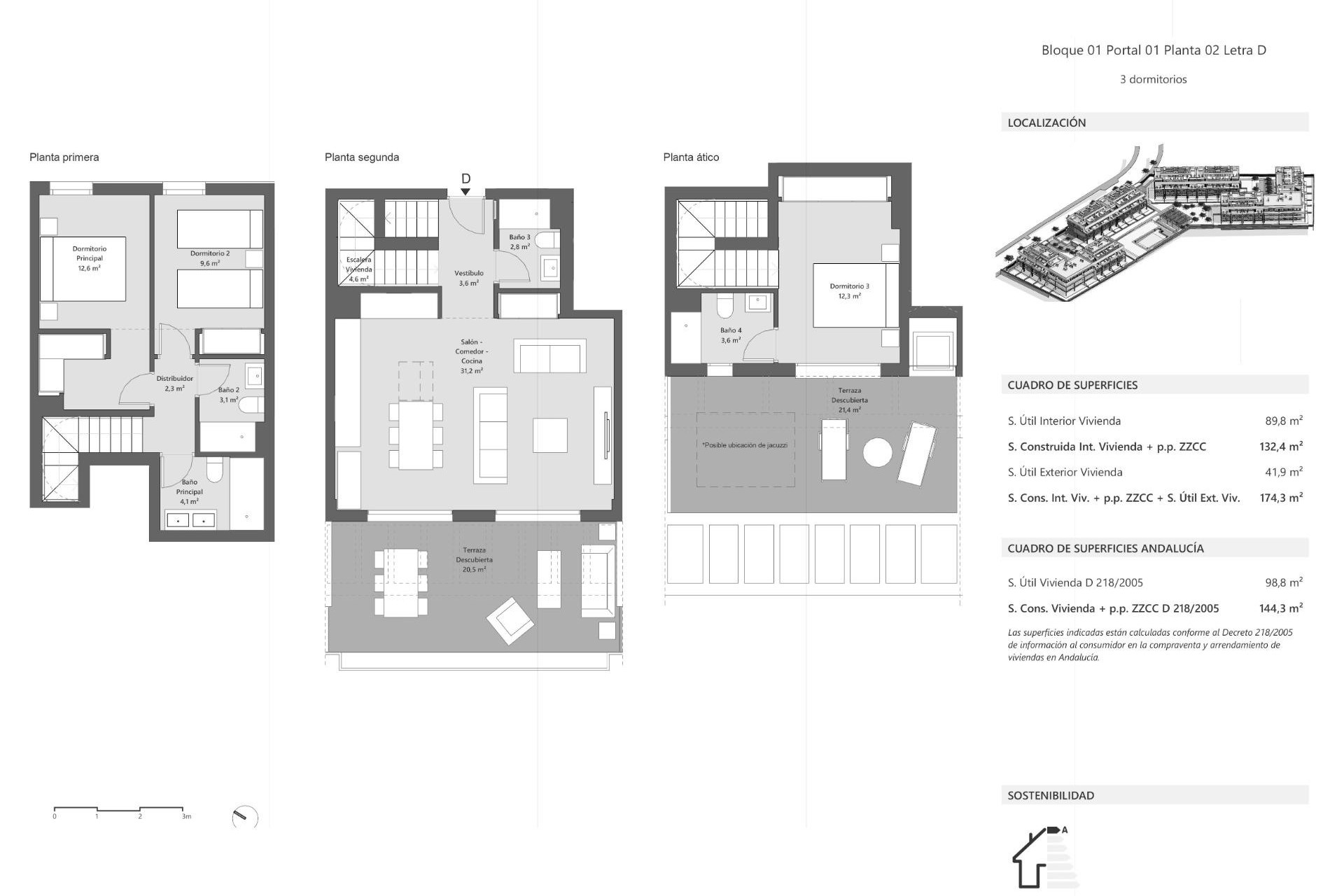
COMPLEJO RESIDENCIAL DE OBRA NUEVA CERCA DE ESTEPONA Obra Nueva una exclusiva promoción situada en Cancelada, una de las mejores zonas de la Nueva Milla de Oro de Estepona. El complejo residencial cuenta con 82 viviendas distribuidas en 4 plantas, en su mayoría dúplex, de 2 y 3 dormitorios con terrazas y/o jardines, así como áticos con solarium. Todas las viviendas dispondrán de trastero y garaje, y en la mayoría de ellas se podrá disfrutar de maravillosas vistas al Mar Mediterráneo. La urbanización cuenta con piscina, ideal para disfrutar de los más de 320 días de sol y buen tiempo que ofrece la Costa del Sol, tanto solo como en familia. También tendrá acceso a un equipado gimnasio cubierto, zona deportiva exterior, 2 pistas de petanca y la exclusiva Casa Club de Cancelada. Situado en una ubicación privilegiada, junto a Estepona, a pocos minutos de la playa y cerca de campos de golf. A tan sólo 10 minutos de Marbella, y a 45 minutos del Aeropuerto Internacional de Málaga. Podrá disfrutar de una verdadera calidad de vida, con una temperatura media anual de 20º y más de 320 días de sol al año. Disfrutará de una gran variedad de campos de golf, kilómetros de costa tranquila, sol, naturaleza y la gastronomía de la zona, desde sus restaurantes internacionales hasta su acogedora cocina local. Combina a la perfección la tradición de sus calles empedradas de casas encaladas y patios con macetas de flores de colores, con la modernidad y la mejor oferta de ocio de la Costa del Sol. Su privilegiada situación entre el mar y la montaña la convierten en uno de los destinos turísticos más atractivos de la provincia.
Esta información que se proporciona aquí está sujeta a errores y no forma parte de ningún contrato. La oferta se puede cambiar o retirar sin previo aviso. Los precios no incluyen los costes de compra
¡La vida de tus sueños en España comienza con nuestra práctica guía! En 4 pasos, te ayudaremos a empezar bajo el sol español.
E-Mail info@gold-estates.be
Oficina en Bélgica: Moeistraat 20G, 9830 St-Martens-Latem
Oficina en España: Av. Marina Baixa 11, 03570 La Villa Joyosa, Alicante
© 2026 Gold Estates · Nota legal · Privacidad · Cookies · BIV Legale Informatie · Mapa Web
Diseño & CRM: Mediaelx
Encuentra tu hogar ideal guardando tus propiedades y recibiendo alertas sobre nuevas propiedades disponibles
Registrar nuevo usuarioEn primer lugar, gracias por contactarnos.
Hemos recibido su solicitud con respecto a la referencia de propiedad:CL-78747. Uno de nuestros agentes se pondrá en contacto con usted lo antes posible.
En primer lugar, gracias por contactarnos.
Hemos recibido una solicitud de informe si baja el precio de la propiedad con la referencia: CL-78747
Mientras tanto, eche un vistazo a esta selección de propiedades similares que podrían ser de su interés: