Dziękujemy za kontakt z naszym biurem
We have received your request regarding the property reference: CL-78747. One of our agents will contact you as soon as possible.
Email info@gold-estates.be
Biuro w Belgii: Moeistraat 20G, 9830 St-Martens-Latem
Biuro w Hiszpanii: Av. Marina Baixa 11, 03570 La Villa Joyosa, Alicante
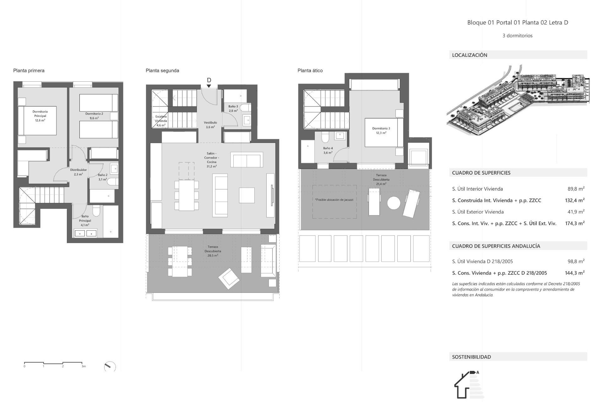
RYNEK PIERWOTNY KOMPLEKS MIESZKANIOWY W POBLIŻU ESTEPONY Rynek Pierwotny ekskluzywna inwestycja położona w Cancelada, jednym z najlepszych obszarów New Golden Mile w Esteponie. Kompleks mieszkaniowy obejmuje 82 nieruchomości rozmieszczone na 4 piętrach, głównie dwupoziomowe, z 2 i 3 sypialniami z tarasami i/lub ogrodami, a także penthouse'y z solarium. Wszystkie nieruchomości posiadają komórkę lokatorską i garaż, a z większości z nich można podziwiać wspaniałe widoki na Morze Śródziemne. Osiedle posiada basen, idealny do korzystania z ponad 320 dni słońca i dobrej pogody, które Costa del Sol ma do zaoferowania, zarówno w pojedynkę, jak i z rodziną. Będziesz mieć również dostęp do wyposażonej krytej siłowni, terenów sportowych na świeżym powietrzu, 2 kortów do petanque i ekskluzywnego klubu Cancelada. Położony w uprzywilejowanej lokalizacji, obok Estepony, zaledwie kilka minut od plaży i w pobliżu pól golfowych. Tylko 10 minut od Marbelli i 45 minut od międzynarodowego lotniska w Maladze. Możesz cieszyć się prawdziwą jakością życia, ze średnią roczną temperaturą 20º i ponad 320 słonecznymi dniami w roku. Będziesz cieszyć się szeroką gamą pól golfowych, kilometrami spokojnego wybrzeża, słońcem, przyrodą i gastronomią okolicy, od międzynarodowych restauracji po przyjazną kuchnię lokalną. Doskonale łączy tradycję brukowanych uliczek z bielonymi domami i patio z doniczkami kolorowych kwiatów z nowoczesnością i najlepszymi obiektami rekreacyjnymi na Costa del Sol. Szczyci się uprzywilejowaną lokalizacją między morzem a górami, co czyni go jednym z najbardziej atrakcyjnych miejsc turystycznych w prowincji.
Informacja podana tutaj jest orientacyjna i nie stanowi części żadnej umowy. Oferta może zostać zmieniona lub wycofana bez uprzedniego powiadomienia. Ceny nie obejmują kosztów zakupu
Twoje wymarzone życie w Hiszpanii zaczyna się od naszego podręcznego przewodnika! W 4 krokach pomożemy Ci rozpocząć pracę pod hiszpańskim słońcem.
E-Mail info@gold-estates.be
Biuro w Belgii: Moeistraat 20G, 9830 St-Martens-Latem
Biuro w Hiszpanii: Av. Marina Baixa 11, 03570 La Villa Joyosa, Alicante
© 2026 Gold Estates · Nota prawna · Prywatność · Cookies · BIV Legale Informatie · Mapa strony
Projekt & CRM: Mediaelx
Znajdź swój wymarzony dom, zapisując swoje nieruchomości i otrzymując powiadomienia o nowych dostępnych nieruchomościach
Zarejestruj nowego użytkownikaDziękujemy za kontakt z naszym biurem
We have received your request regarding the property reference: CL-78747. One of our agents will contact you as soon as possible.
Dziękujemy za kontakt z naszym biurem
We have received your request regarding the property reference: %s. One of our agents will contact you as soon as possible.: CL-78747
In the meantime, please have a look at this selection of similar properties, that might be of interest to you: