Tout d’abord, merci de nous contacter.
Nous avons reçu votre demande concernant la référence du bien:GE-12270. Un de nos agents vous contactera dans les meilleurs délais.
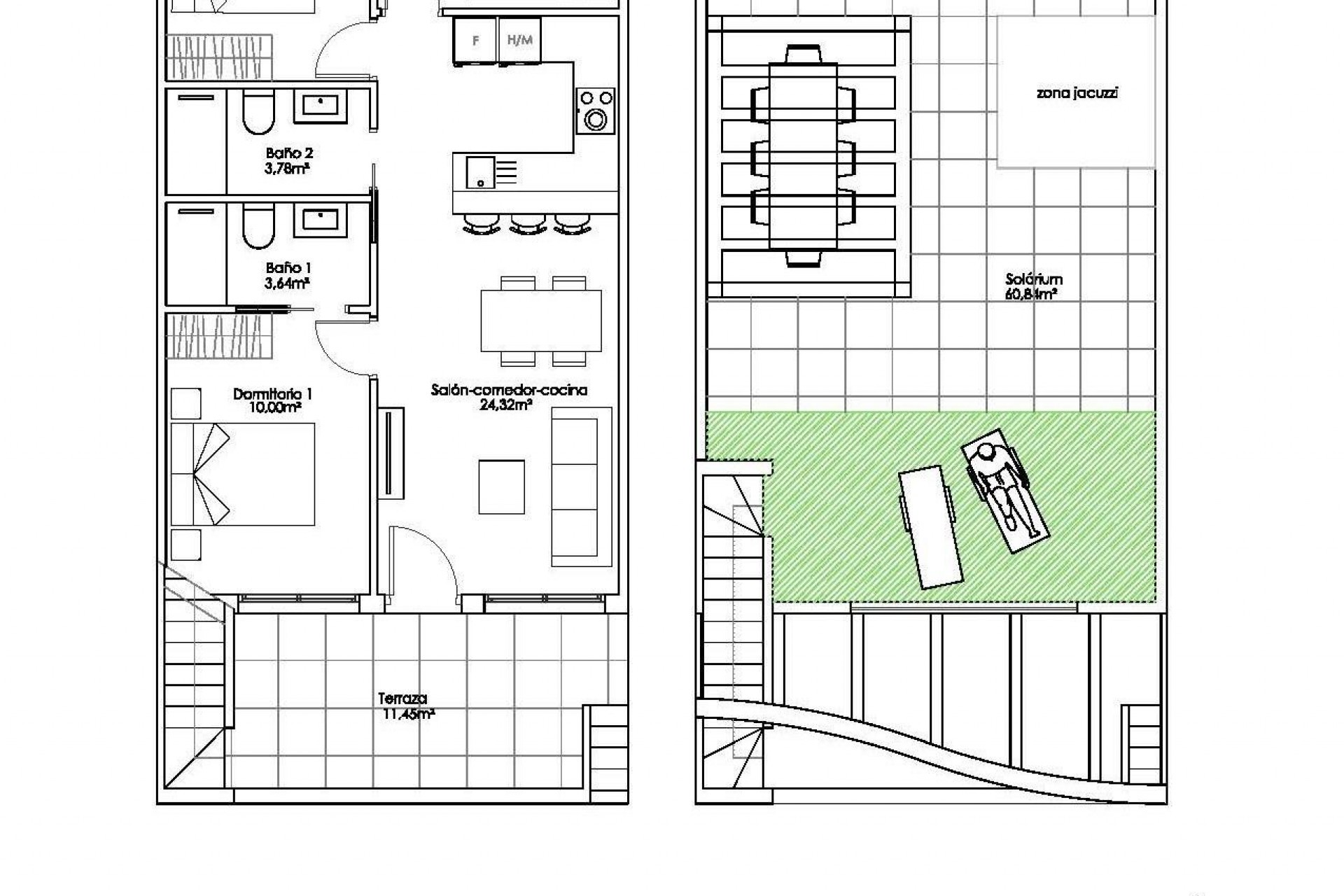
Bungalows exclusifs nouvellement construits à Pilar de la Horadada - Style unique et emplacement privilégié Un style unique qui définit votre nouvelle maison Cette nouvelle promotion de bungalows de 2 et 3 chambres à Pilar de la Horadada se distingue par son design moderne et sa structure ondulée, qui confère à chaque maison une personnalité unique. Vous pourrez choisir entre rez-de-chaussée avec jardin avant et patio arrière. Dernier étage avec solarium privé. Le complexe résidentiel dispose d'une piscine commune et de vastes espaces communs conçus pour la détente et le plaisir de toute la famille. En outre, le projet propose une salle de sport extérieure, un jacuzzi commun et un parking pour les vélos, ainsi qu'une place de parking attribuée à chaque propriété avec la possibilité de recharger les véhicules électriques, conçus pour vous offrir un maximum de confort et de qualité de vie. Des intérieurs lumineux et de grande qualité Chaque maison a été conçue pour offrir une expérience de confort et de fonctionnalité. Les espaces ouverts maximisent la sensation d'espace et de lumière, tandis que les finitions neutres et en bois créent une ambiance élégante et accueillante. Des chambres spacieuses et lumineuses, la chambre principale offrant un accès à une terrasse privée. Cuisine ouverte, intégrée au salon pour plus de commodité. Salles de bains modernes avec des matériaux de première qualité. Pilar de la Horadada - Qualité de vie sur la Costa Blanca Située dans la province d'Alicante, Pilar de la Horadada est une ville côtière qui allie tradition et atmosphère détendue. Elle est connue pour ses belles plages, comme la Playa de las Higuericas, au sable doré et aux eaux méditerranéennes cristallines. Outre son littoral, la ville possède une rue principale animée, bordée de boutiques, de supermarchés, de restaurants et de places pittoresques. Son excellente infrastructure comprend des pistes cyclables, des sentiers de randonnée et une grande variété d'activités sportives. Proximité des principaux centres d'intérêt Ce complexe résidentiel offre un accès pratique aux destinations les plus importantes de la région : Plage de Torre de la Horadada - 3 km (5 minutes en voiture). Terrain de golf Lo Romero - 5 km (10 minutes en voiture). Centre commercial La Zenia Boulevard - 15 km (15 minutes en voiture). Aéroport de Corvera (Murcie) - 40 km (40 min en voiture). Aéroport d'Alicante - 55 km (55 min en voiture). Réservez dès aujourd'hui votre propriété sur la Costa Blanca Ne manquez pas l'occasion d'acheter une toute nouvelle propriété dans un endroit exceptionnel. Contactez-nous dès aujourd'hui pour plus d'informations et pour organiser une visite.