Dziękujemy za kontakt z naszym biurem
We have received your request regarding the property reference: GE-12270. One of our agents will contact you as soon as possible.
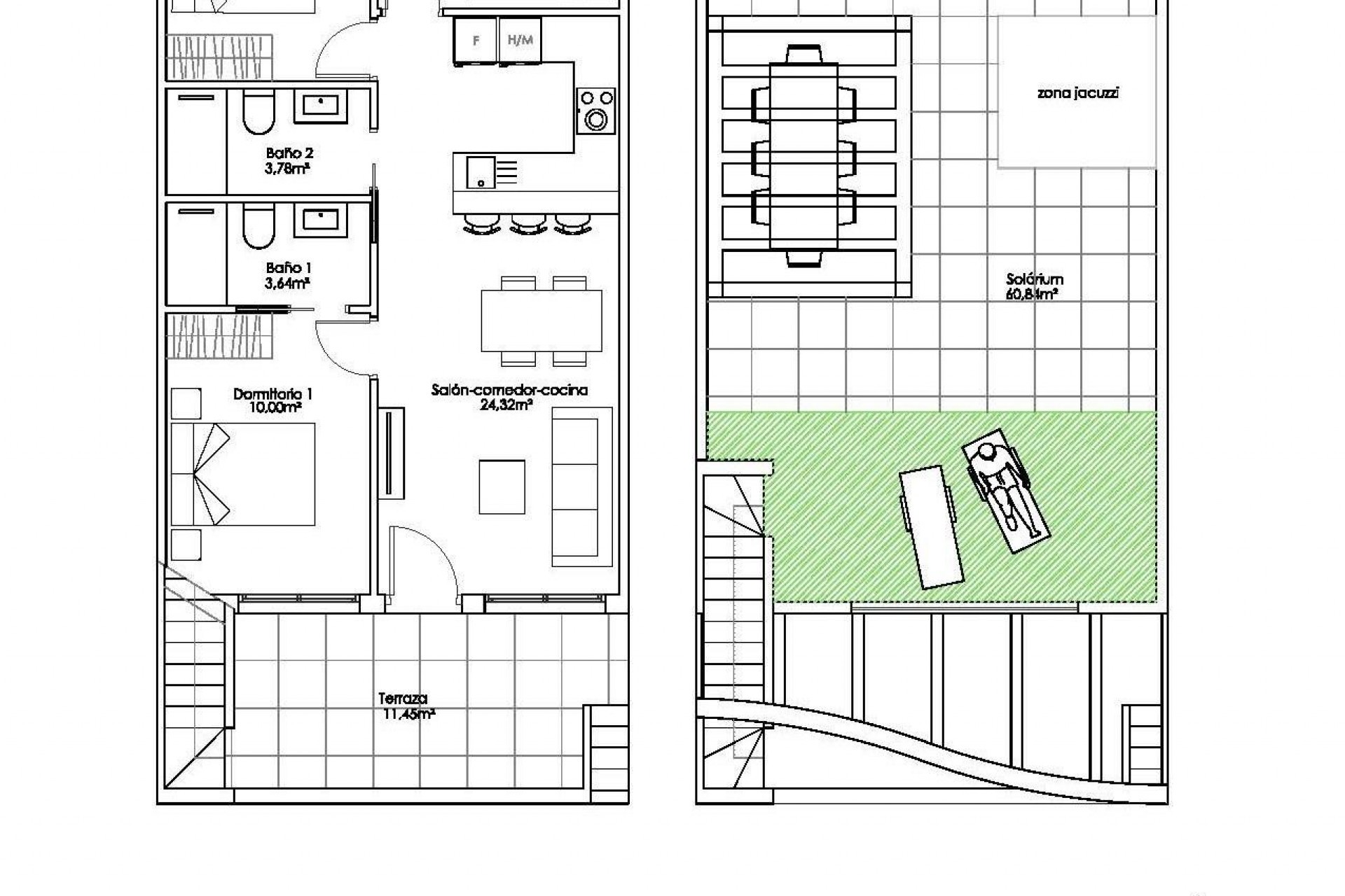
Ekskluzywne nowe bungalowy w Pilar de la Horadada - wyjątkowy styl i uprzywilejowana lokalizacja Unikalny styl, który definiuje Twój nowy dom Ten nowy projekt bungalowów z 2 i 3 sypialniami w Pilar de la Horadada wyróżnia się nowoczesnym designem i falistą strukturą, która nadaje każdemu domowi wyjątkową osobowość. Będziesz mógł wybierać pomiędzy: Parterami z frontowym ogrodem i tylnym patio. Najwyższe piętra z prywatnym solarium. Kompleks mieszkalny posiada wspólny basen i przestronne pomieszczenia ogólnodostępne zaprojektowane z myślą o relaksie i przyjemności dla całej rodziny. Ponadto inwestycja oferuje siłownię na świeżym powietrzu, wspólne jacuzzi i parking dla rowerów, a także miejsce parkingowe przypisane do każdej nieruchomości z opcją ładowania pojazdów elektrycznych, zaprojektowane tak, aby zapewnić maksymalny komfort i jakość życia. Jasne i wysokiej jakości wnętrza Każdy dom został zaprojektowany z myślą o komforcie i funkcjonalności. Otwarte przestrzenie maksymalizują poczucie przestronności i światła, a neutralne odcienie i drewniane wykończenia tworzą elegancką i przyjazną atmosferę. Przestronne i jasne sypialnie, z główną sypialnią oferującą dostęp do prywatnego tarasu. Otwarta kuchnia zintegrowana z salonem dla wygody. Nowoczesne łazienki z najwyższej jakości materiałów. Pilar de la Horadada - jakość życia na Costa Blanca Położone w prowincji Alicante, Pilar de la Horadada to nadmorskie miasteczko, które łączy tradycję z relaksującą atmosferą. Słynie z pięknych plaż, takich jak Playa de las Higuericas, ze złotym piaskiem i krystalicznie czystymi wodami Morza Śródziemnego. Oprócz wybrzeża, miasto ma tętniącą życiem główną ulicę ze sklepami, supermarketami, restauracjami i malowniczymi placami. Doskonała infrastruktura obejmuje ścieżki rowerowe, szlaki turystyczne i szeroką gamę zajęć sportowych. Bliskość głównych atrakcji turystycznych Osiedle mieszkaniowe oferuje dogodny dostęp do najważniejszych miejsc w okolicy: Plaża Torre de la Horadada - 3 km (5 minut jazdy samochodem). Pole golfowe Lo Romero - 5 km (10 minut jazdy). Centrum handlowe La Zenia Boulevard - 15 km (15 min jazdy samochodem). Lotnisko Corvera (Murcja) - 40 km (40 min jazdy samochodem). Lotnisko Alicante - 55 km (55 minut jazdy). Zabezpiecz swoją nieruchomość na Costa Blanca już dziś Nie przegap okazji zakupu zupełnie nowej nieruchomości w wyjątkowej lokalizacji. Skontaktuj się z nami już dziś, aby uzyskać więcej informacji i umówić się na oglądanie.