Allereerst bedankt dat je contact met ons hebt opgenomen.
We hebben uw verzoek met betrekking tot de eigenschap referentie ontvangen:GEE-61255. Een van onze agenten neemt zo snel mogelijk contact met u op.
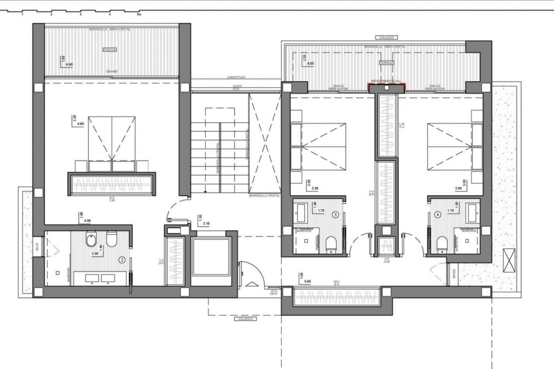
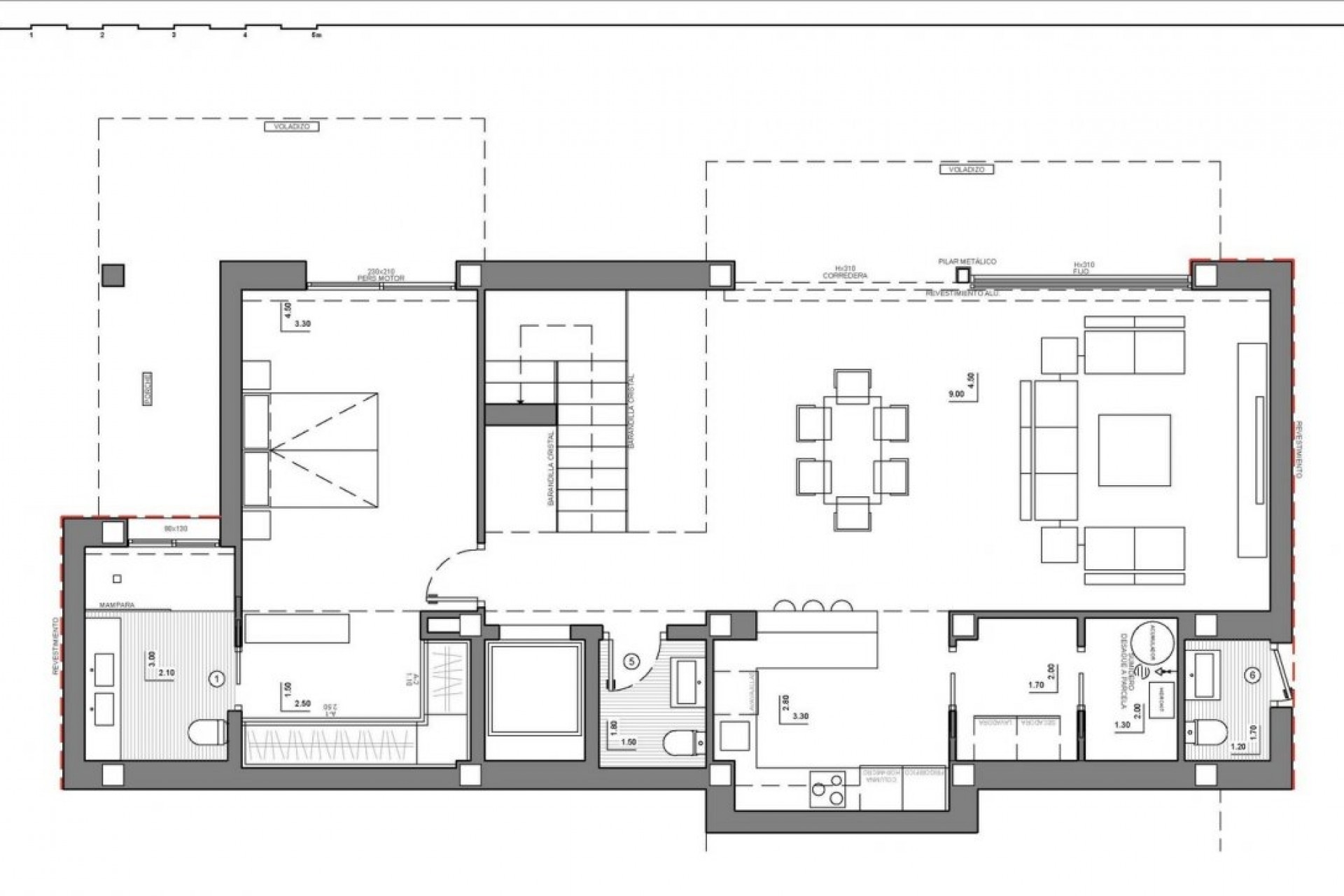
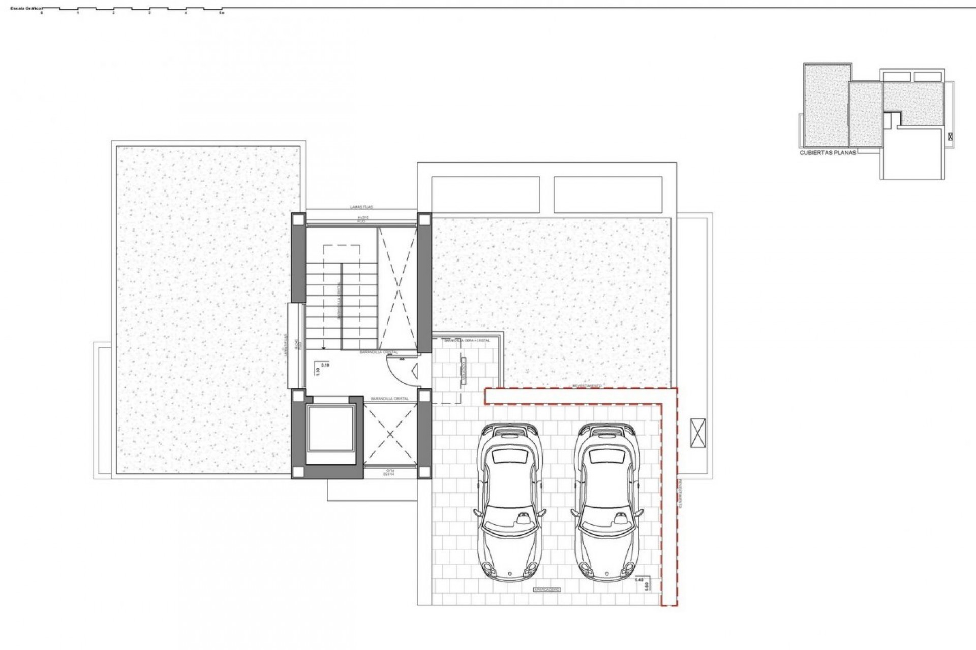
LUXE VILLA MET PRACHTIG UITZICHT OP ZEE Op Sierra de Altea, met indrukwekkend uitzicht op zee, komen we deze splinternieuwe villa in minimalistische stijl tegen, met de beste kwaliteit en een perfect ontwerp. Villa is verdeeld over 3 verdiepingen, de bovenste verdieping heeft een garage voor twee auto's en een inkomhal die ons toegang geeft tot de rest van het pand. Op de middelste verdieping bevinden zich drie van de vier slaapkamers van dit huis, twee hoofdslaapkamers en twee extra slaapkamers. De hoofdslaapkamer op deze verdieping heeft de perfecte positie om te genieten van het prachtige uitzicht op zee, heeft toegang tot een privéterras en heeft een en-suite badkamer en een inloopkast. De andere twee slaapkamers hebben ook elk hun eigen en-suite badkamers, ruime kledingkasten en delen een terras. Er zijn ook extra kasten in de gang die naar de slaapkamers leidt. De begane grond is verdeeld in twee ruimtes, gescheiden door een hal en het trappenhuis. Aan de ene kant bevindt zich de vierde slaapkamer met een en-suite badkamer, inloopkast en toegang tot het hoofdterras met veranda. De andere kant is waar u een gastentoilet vindt, een keuken die open is naar de eetkamer, met een kookeiland, op dit middelste eiland is het kookgedeelte en een heerlijke plek om te ontbijten, de eetkamer met directe toegang tot de veranda en een lichte woonkamer. Drie open ruimtes, schitterend met natuurlijk licht van de Middellandse Zee en, nog belangrijker, verbonden met de buitenkant van het pand, met verschillende veranda's, een buiten gastentoilet, een groot terras en een zwembad. Het zwembad heeft een eindeloze zijkant waardoor je geen seconde het uitzicht op zee mist. Villa is uitgerust met een lift, een beveiligingssysteem, vloerverwarming, airconditioning, technische verlichting en tuinen. Ontwerp, inrichting, kwaliteit en prachtig uitzicht op zee vormen samen deze villa die op u wacht in Altea, Costa Blanca Noord.