Dziękujemy za kontakt z naszym biurem
We have received your request regarding the property reference: GE2-79668. One of our agents will contact you as soon as possible.
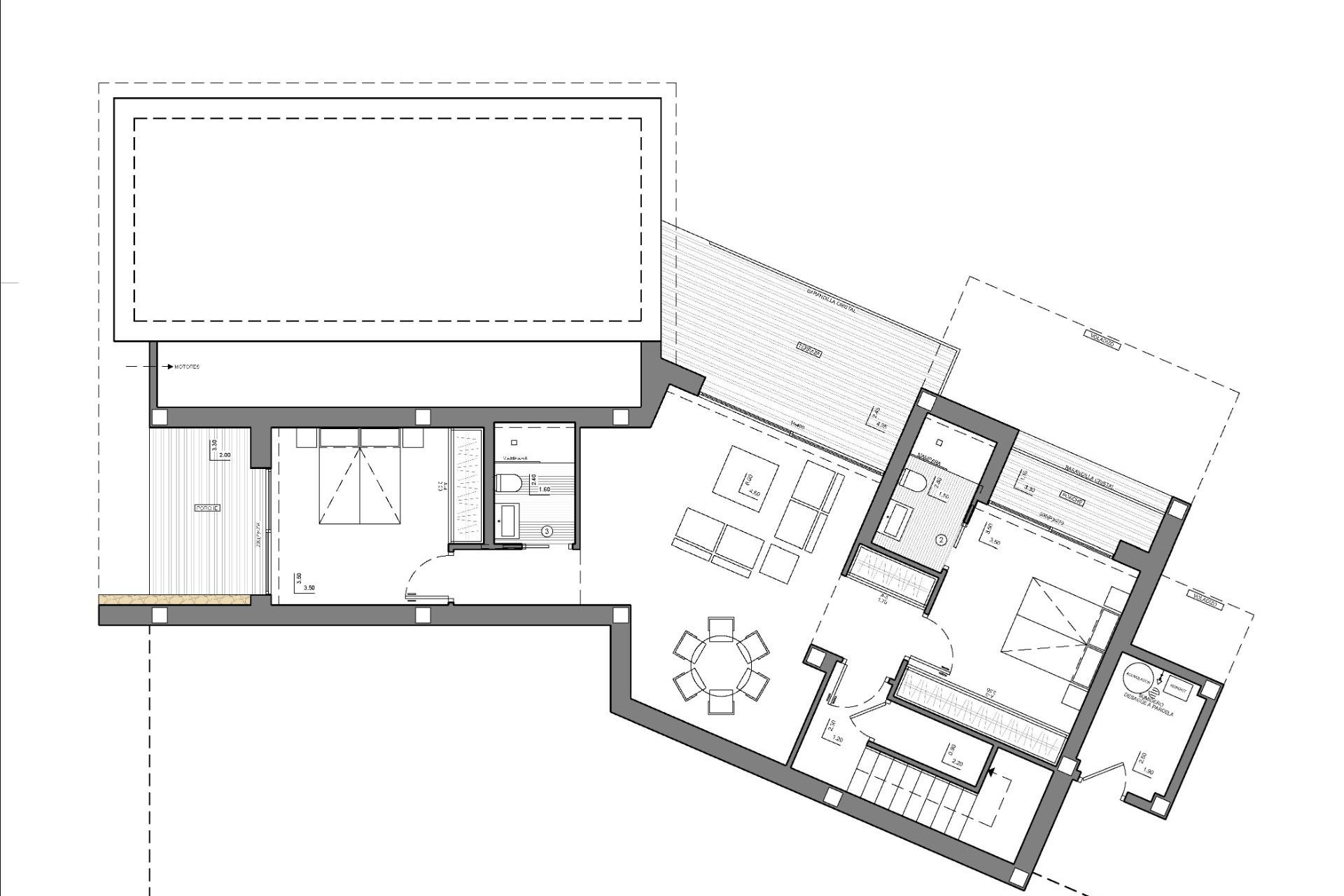
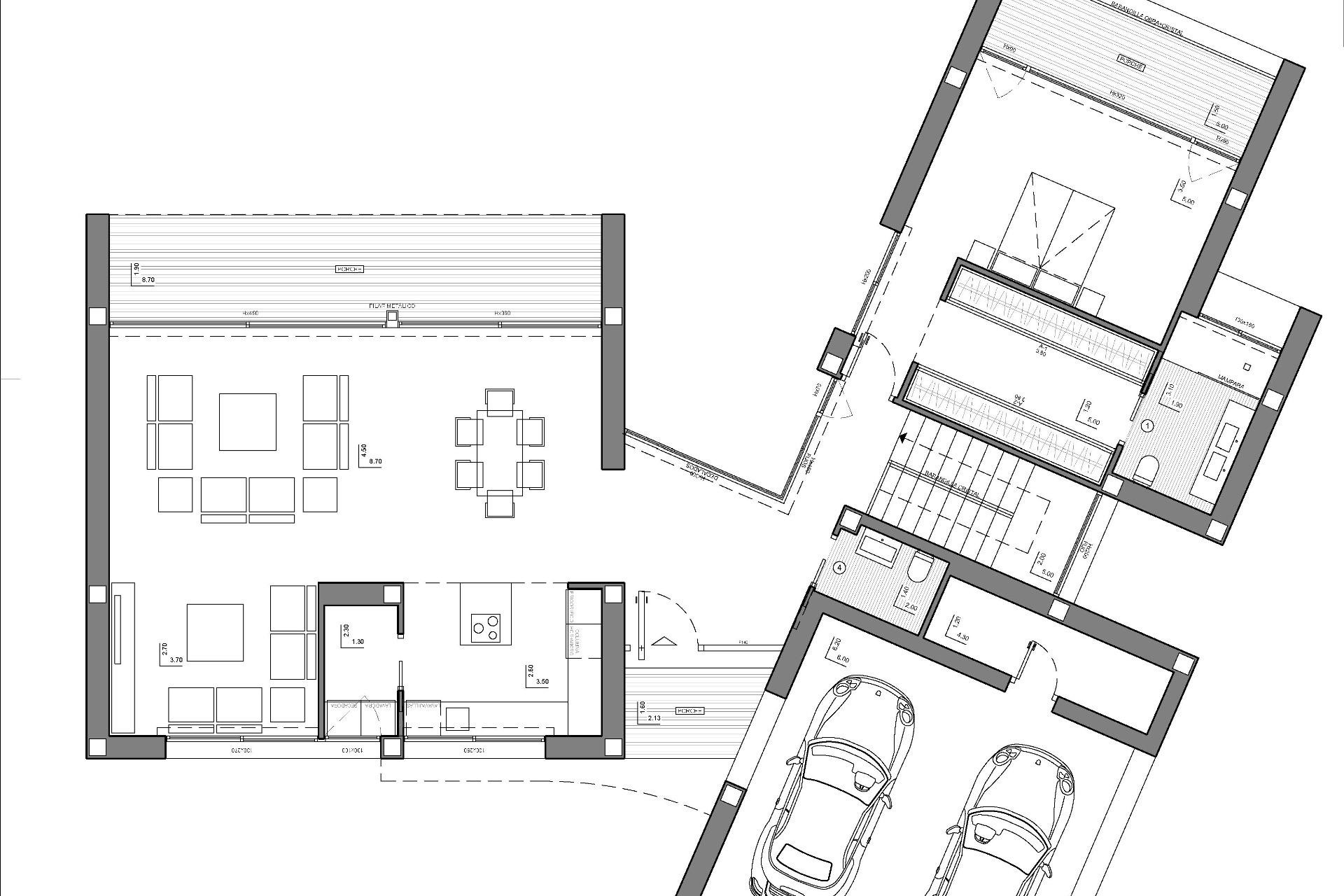
RYNEK PIERWOTNY LUKSUSOWA WILLA W CUMBRE DEL SOL Cumbre del Sol to miejsce, w którym można cieszyć się zarówno przyrodą, jak i słońcem i morzem. Ta luksusowa willa oferuje spokój i komfort, dzięki czemu właściciel może spokojnie odpocząć z niesamowitym widokiem na morze. Czy to może być Twój przyszły dom? Projekt willi Rynek Pierwotny łączy w stylowy i funkcjonalny sposób prawdziwie nowoczesną architekturę. Na elewacji, charakteryzującej się dużymi figurami geometrycznymi stworzonymi w oparciu o proste linie i kształt sześcianów, dominuje kolor biały, nadając willi elegancki i minimalistyczny design. Jego ogród, w 100% w stylu śródziemnomorskim, ma kamienne ściany, które pomagają zintegrować willę z otoczeniem. Część dzienna znajduje się na tym samym piętrze. Przestronna kuchnia z centralną wyspą i wyposażona w najlepsze markowe urządzenia elektryczne, duży salon i taras z niesamowitym widokiem na Morze Śródziemne. Salon ma bardzo ciepły i przytulny wystrój. Składa się z dużego pokoju, który można podzielić na dwa pokoje dla większej prywatności. Na tym samym piętrze znajduje się główny apartament z własną łazienką i prywatnym tarasem, na którym można cieszyć się piękną pogodą i widokiem na morze, zachowując prywatność wynikającą z przebywania we własnym pokoju. Na dolnym piętrze znajdują się dwie duże sypialnie, każda z własną łazienką i tarasem, na którym można cieszyć się świeżym powietrzem. Na tym piętrze znajduje się również mały salon, w którym można poczytać, medytować lub po prostu odpocząć. Zwieńczeniem tarasu jest basen bez krawędzi, w którym można w pełni korzystać ze słońca i spektakularnych widoków. Idealne miejsce na aperitif, grilla z przyjaciółmi i rodziną lub po prostu sjestę w słońcu.