Dziękujemy za kontakt z naszym biurem
We have received your request regarding the property reference: GE2-39870. One of our agents will contact you as soon as possible.
Email info@gold-estates.be
Biuro w Belgii: Moeistraat 20G, 9830 St-Martens-Latem
Biuro w Hiszpanii: Av. Marina Baixa 11, 03570 La Villa Joyosa, Alicante
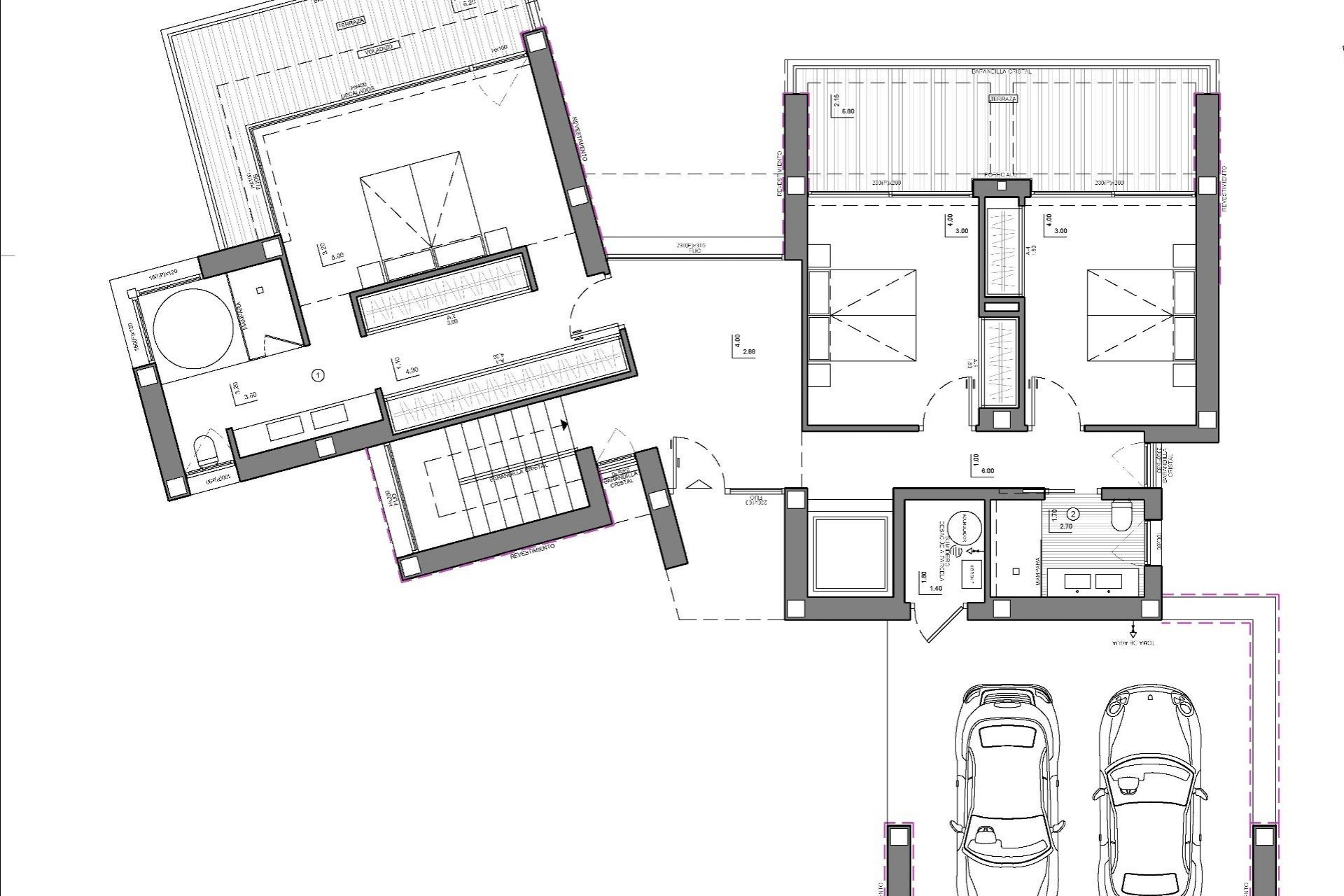
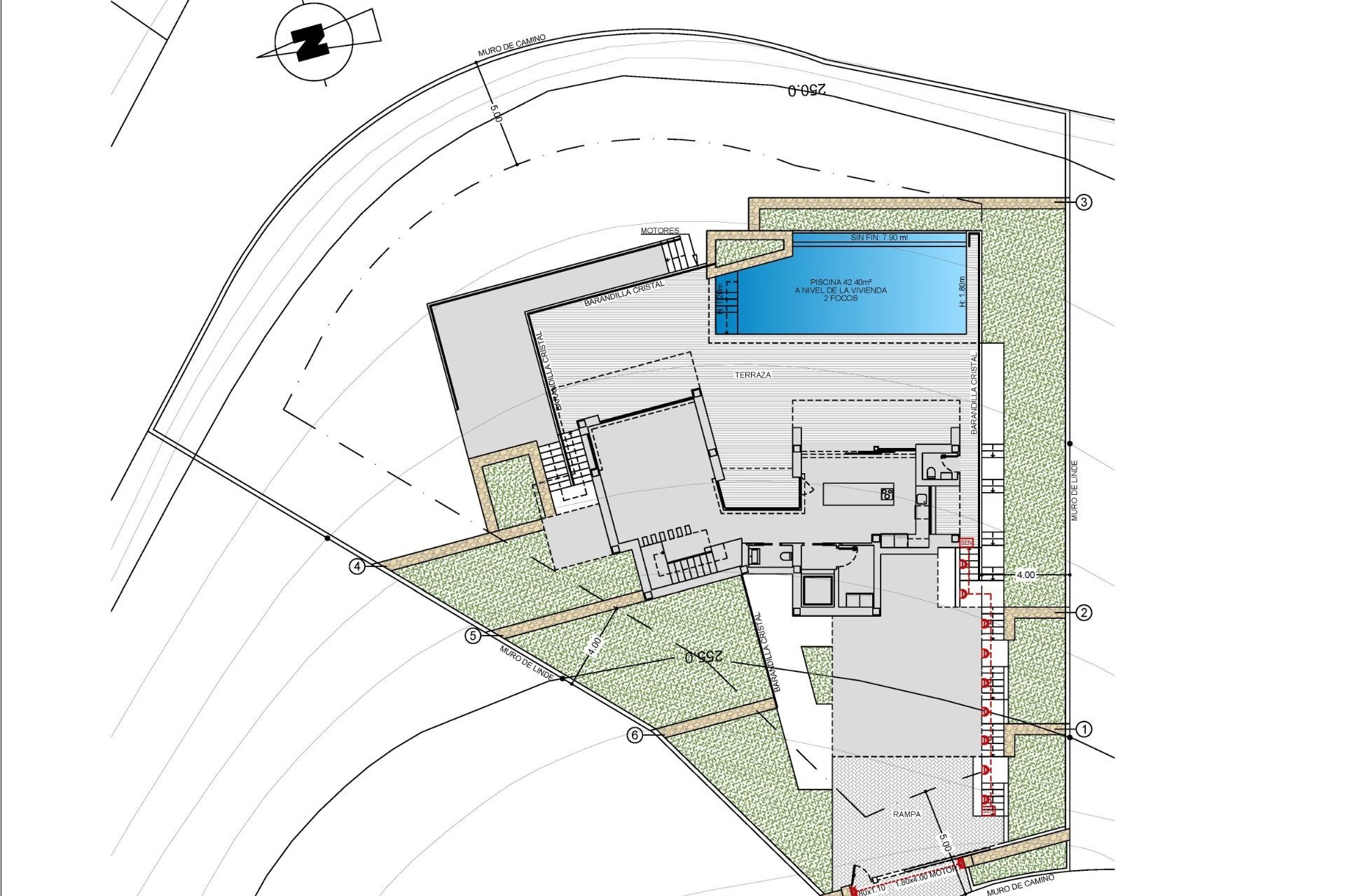
RYNEK PIERWOTNY LUKSUSOWA WILLA W CUMBRE DEL SOL W samym sercu dzielnicy mieszkalnej Cumbre del Sol znajduje się ta luksusowa willa z prywatnym basenem. Nowoczesny projekt willi New Build łączy w elegancki i funkcjonalny sposób nowoczesną i śródziemnomorską architekturę. Na elewacji, charakteryzującej się dużymi geometrycznymi kształtami opartymi na ukośnych liniach, dominuje kolor biały, a zastosowanie naturalnego kamienia pozwala wtopić się w otoczenie. Ogromny ogród w stylu śródziemnomorskim, zwieńczony basenem z efektem nieskończoności, który wtapia się w błękit morza, w połączeniu z łagodnym klimatem północnego wybrzeża Costa Blanca, zachęca do spędzania długich dni na świeżym powietrzu prawie przez cały rok. Jego lokalizacja pozwoli ci cieszyć się spokojnym i komfortowym otoczeniem. Willa jest rozmieszczona na 3 piętrach. Dostęp do willi na najwyższym piętrze, z zadaszonym parkingiem dla dwóch pojazdów i windą, która łączy cały dom. Na tym piętrze znajduje się "część nocna", składająca się z dwóch sypialni, apartamentu z łazienką, garderoby i prywatnego tarasu oraz wspólnej łazienki. Wszystkie sypialnie mają dostęp do tarasu, z którego można podziwiać jeden z najlepszych widoków na morze na Costa Blanca. Budzenie się podczas oglądania słońca wschodzącego na horyzoncie Morza Śródziemnego jest jednym z wielu luksusów, które ta willa ma do zaoferowania. Na niższym piętrze znajduje się część dzienna, w której główną atrakcją są szerokie otwarte przestrzenie i naturalne światło, a granica między wnętrzem a zewnętrzem łączy się dzięki dużym szklanym ścianom, które umożliwiają dostęp do ogrodu i basenu. Kuchnia wyposażona w nowoczesne urządzenia elektryczne najlepszych marek ma centralną wyspę, a także przestronną ławkę, która zapewnia dużo miejsca do przechowywania. Na zewnątrz znajduje się zadaszony obszar, w którym można organizować najlepsze imprezy towarzyskie, chroniąc się przed słońcem. Piwnica tej willi pozwala nam przekształcić ją w 4 sypialnie lub spersonalizować tę przestrzeń w dowolny sposób (siłownia, biuro, pokój gier...). Willa posiada ogrzewanie podłogowe, a także klimatyzację ciepło/zimno, system automatyki domowej, ECODAN ... Osiedle ma własny supermarket, bary i restauracje, tereny sportowe, a nawet usługę światłowodową, co czyni Cumbre del Sol idealnym miejscem do pracy z domu. Wszystkie te cechy sprawiają, że Villa jest idealną opcją do spędzania czasu z przyjaciółmi i rodziną przez długi czas lub nawet jako główna rezydencja.
Informacja podana tutaj jest orientacyjna i nie stanowi części żadnej umowy. Oferta może zostać zmieniona lub wycofana bez uprzedniego powiadomienia. Ceny nie obejmują kosztów zakupu
Twoje wymarzone życie w Hiszpanii zaczyna się od naszego podręcznego przewodnika! W 4 krokach pomożemy Ci rozpocząć pracę pod hiszpańskim słońcem.
E-Mail info@gold-estates.be
Biuro w Belgii: Moeistraat 20G, 9830 St-Martens-Latem
Biuro w Hiszpanii: Av. Marina Baixa 11, 03570 La Villa Joyosa, Alicante
© 2026 Gold Estates · Nota prawna · Prywatność · Cookies · BIV Legale Informatie · Mapa strony
Projekt & CRM: Mediaelx
Znajdź swój wymarzony dom, zapisując swoje nieruchomości i otrzymując powiadomienia o nowych dostępnych nieruchomościach
Zarejestruj nowego użytkownikaDziękujemy za kontakt z naszym biurem
We have received your request regarding the property reference: GE2-39870. One of our agents will contact you as soon as possible.
Dziękujemy za kontakt z naszym biurem
We have received your request regarding the property reference: %s. One of our agents will contact you as soon as possible.: GE2-39870
In the meantime, please have a look at this selection of similar properties, that might be of interest to you: