Dziękujemy za kontakt z naszym biurem
We have received your request regarding the property reference: GE2-62551. One of our agents will contact you as soon as possible.
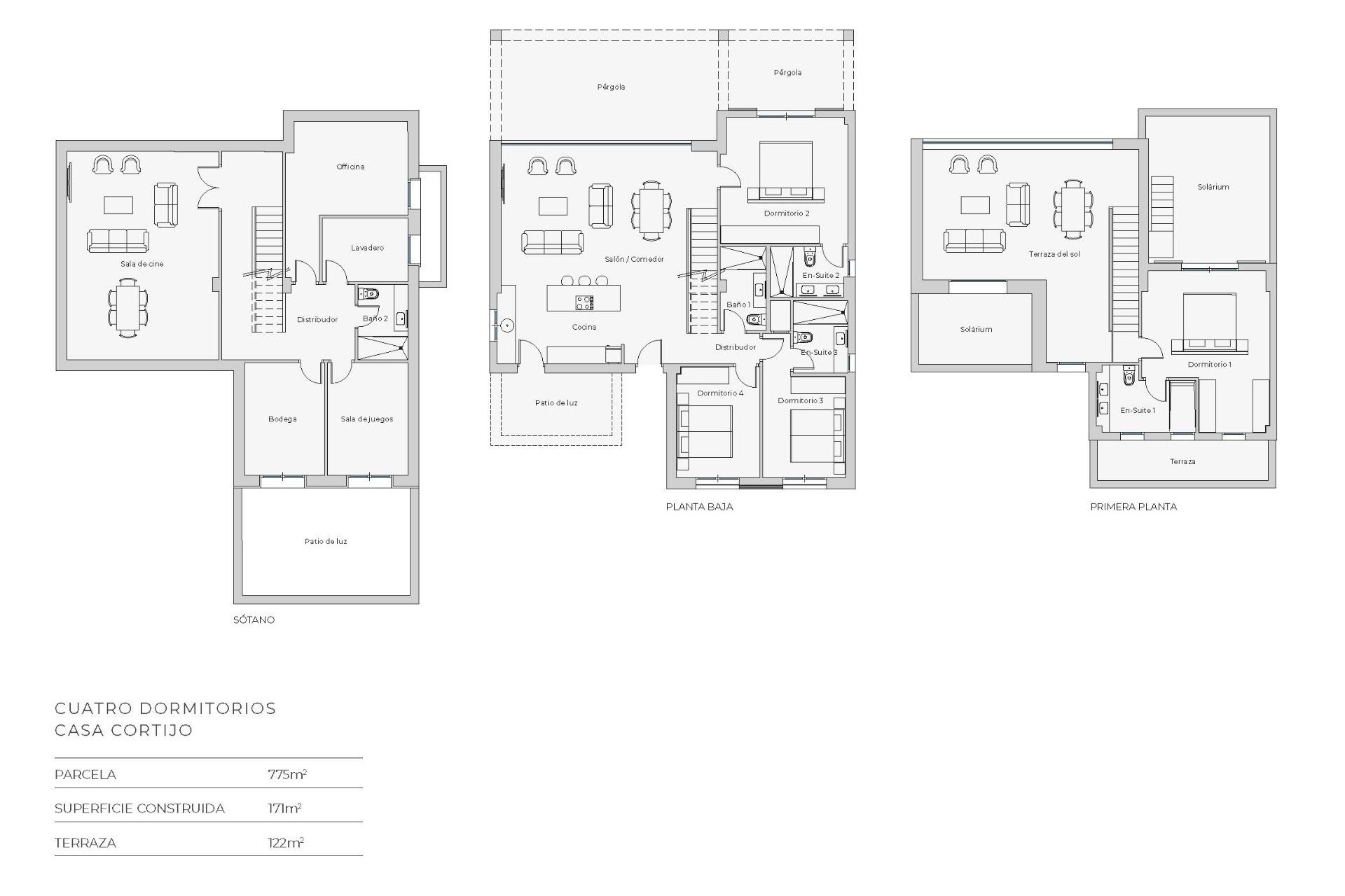
OSZAŁAMIAJĄCE NOWO WYBUDOWANE WILLE W OŚRODKU DESERT SPRINGS Ograniczony wybór luksusowych willi z czterema sypialniami, z których roztacza się wspaniały widok na mistrzowskie pole golfowe Indiana i pasma górskie. Prywatność zapewnia ogrodzony dziedziniec, prywatny parking i ogrodzenie obwodowe. Rozległy salon na dachu i tarasy, głęboko zacienione werandy z wbudowanym grillem, wypielęgnowany prywatny ogród z basenem z widokiem na pole golfowe, zapewniają, że na zewnątrz jest mnóstwo okazji, aby cieszyć się długimi leniwymi letnimi dniami i wspaniałymi wieczorami pełnymi gwiazd. Wewnątrz, współczesny design i naturalne światło, prezentujące ogólne poczucie przestrzeni, są wyjątkowymi cechami wyrafinowanego wnętrza, które oferuje stylowy dom o nowoczesnym wyglądzie. Funkcje obejmują wewnętrzną recepcję, która otwiera się na rozległy salon / jadalnię na otwartym planie i kuchnię z podłogą "na poziomie", na zadaszone werandy, prywatny ogród krajobrazowy i basen, oferując połączoną wewnętrzną / zewnętrzną przestrzeń mieszkalną i jadalną, zaprojektowaną tak, aby była używana jako jedna w szczególnie uprzywilejowanym klimacie regionu. Znajdująca się na pierwszym piętrze główna sypialnia z łazienką ma bezpośredni dostęp do rozległego salonu i tarasu na dachu. Na parterze znajdują się dwie kolejne sypialnie z łazienkami, jedna z bezpośrednim dostępem do rozległej werandy i basenu, a także czwarta sypialnia z oddzielną łazienką. Na parterze znajduje się pokój gier, sala kinowa, piwniczka z winami, biuro, pomieszczenie gospodarcze i piąta łazienka. Luksusowe wykończenia obejmują atrakcyjnie wyłożone kafelkami łazienki, kuchnię na otwartym planie z blatami "Silestone", ze zintegrowanymi urządzeniami, płytą ceramiczną i okapem kuchennym. Podwójne szyby, lustrzane szafy w sypialniach z wysokiej jakości artykułami sanitarnymi i armaturą "Roca" lub "Porcelnosa". Mechaniczny system wentylacji na dolnym, parterze i pierwszym piętrze oraz panele fotowoltaiczne podłączone do zasobnika ciepłej wody z indywidualnie sterowanymi klimatyzatorami ciepło/zimno w salonie i sypialniach, w pełni zaspokajają wszystkie wymagania dotyczące kontroli temperatury. Porty USB we wszystkich pokojach z szybkim łączem internetowym.