First of all, thanks for contacting us.
We have received your request regarding the property reference: GE2-19500. One of our agents will contact you as soon as possible.
Email info@gold-estates.be
Belgium office: Moeistraat 22A, 983 St-Martens-Latem
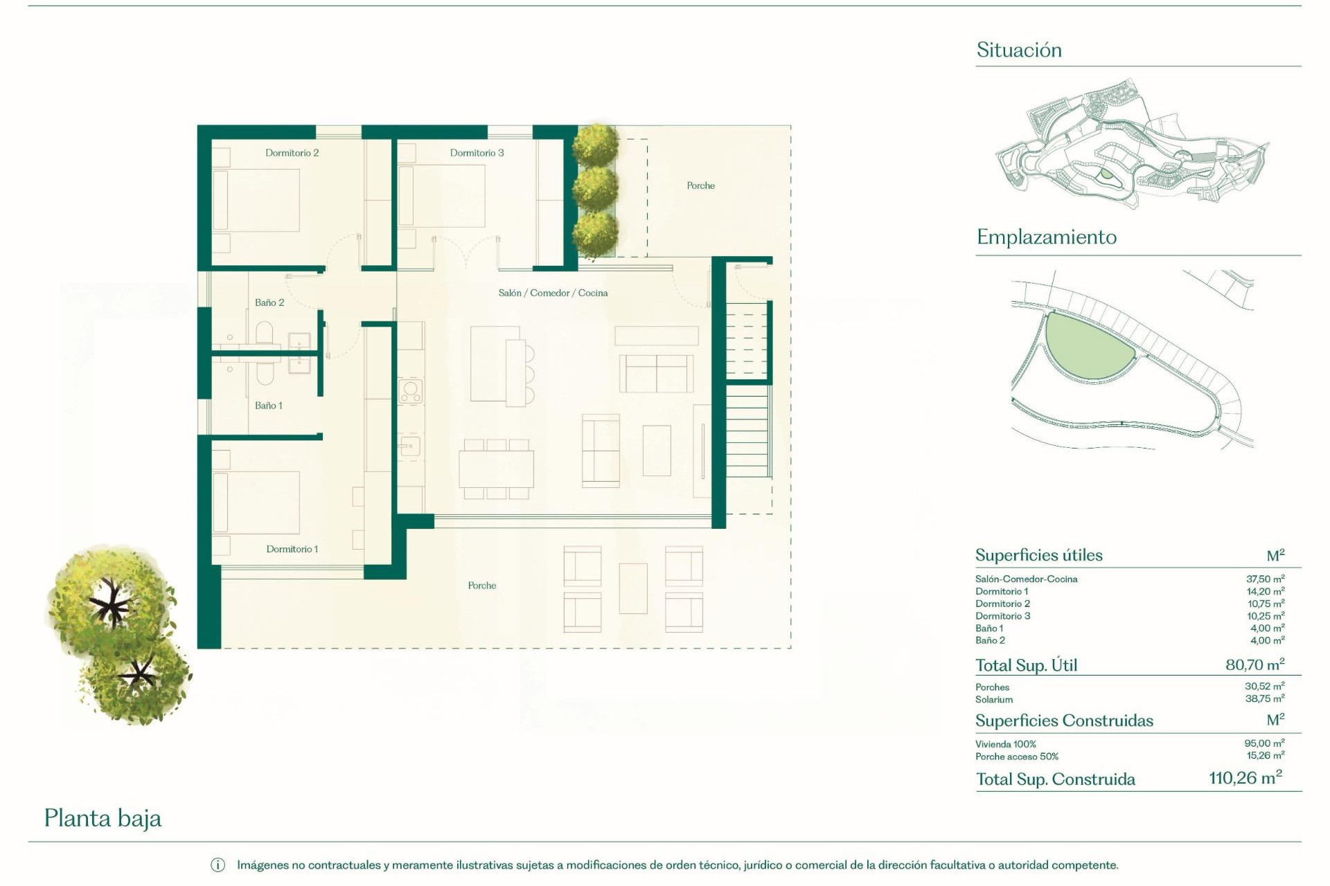
Exclusive villas at Hacienda del Álamo Golf Resort, Costa Cálida Modern villas in one of Spain's finest golf resorts Discover a unique opportunity to purchase a newly built villa at an exceptional price in the Hacienda del Álamo Golf Resort, located between the historic cities of Cartagena and Murcia, in the heart of the Costa Cálida. These contemporary villas are designed to offer comfort, privacy and elegance, and are set in an exceptional environment dedicated to golf and leisure. Each property offers a spacious layout with 3 bedrooms and 2 bathrooms on one floor. Private rooftop solarium. With plots starting at 378 square metres and a built area of 111 square metres, these homes offer ample space for indoor and outdoor living. High-quality features and finishes These villas are equipped with all modern amenities to ensure maximum comfort and style, including: Garden with drip irrigation system Fully equipped kitchen with cupboards and appliances included Pre-installation of ducted air conditioning Bathrooms with furniture, mirrors and shower screens Aluminium windows with thermal break and double glazing Access to a large communal swimming pool with natural grass and children's play area Possibility of adding a private swimming pool at an extra cost Luxury living at Hacienda del Álamo Golf Resort Hacienda del Álamo is renowned as one of Spain's finest golf resorts, offering its residents a relaxed, sporty and comfortable lifestyle. 18-hole golf course and academy Sports facilities including tennis, paddle tennis, gym and fitness classes Main clubhouse with panoramic views, a Mediterranean restaurant and sunny terraces 4-star hotel and spa for relaxation and well-being Spaces for the whole family, with children's play areas, swimming pools and bike lanes. Traditional Spanish village with shops, cafés and new restaurants opening soon. Strategic location with excellent connections Corvera Airport (Murcia): 18 km (approx. 15 minutes) Cartagena: 36 km Murcia city centre: 40 km Mar Menor beaches: 28 km Shopping centres (Dos Mares, Espacio Mediterráneo): less than 30 km Your dream home next to the golf course awaits you Whether you are looking for a permanent residence, a holiday retreat or a smart investment on the Costa Cálida, these golf course villas at Hacienda del Álamo are the perfect choice. Contact us today for more information or to arrange a personalised viewing.
This info given here is subject to errors and do not form part of any contract. The offer can be changed or withdrawn without notice. Prices do not include purchase costs.
Your dream life in Spain starts with our handy guide! In 4 steps, we’ll get you started under the Spanish sun.
E-Mail info@gold-estates.be
Belgium office: Moeistraat 22A, 983 St-Martens-Latem
Spain office: Calle Valentia, 7, 03570 La Vila Joiosa, Alicante
Find your dream home by saving your properties and receiving alerts about new properties available.
Register new userFirst of all, thanks for contacting us.
We have received your request regarding the property reference: GE2-19500. One of our agents will contact you as soon as possible.
First of all, thanks for contacting us.
We have received a request for a report if you lower the price of the property with the reference: GE2-19500
In the meantime, please have a look at this selection of similar properties, that might be of interest to you: