Dziękujemy za kontakt z naszym biurem
We have received your request regarding the property reference: GE2-19500. One of our agents will contact you as soon as possible.
Email info@gold-estates.be
Biuro w Belgii: Moeistraat 20G, 9830 St-Martens-Latem
Biuro w Hiszpanii: Av. Marina Baixa 11, 03570 La Villa Joyosa, Alicante
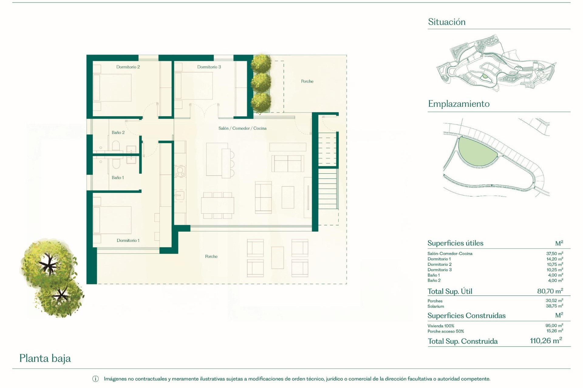
Ekskluzywne wille w Hacienda del Álamo Golf Resort, Costa Cálida Nowoczesne wille w jednym z najlepszych ośrodków golfowych w Hiszpanii Odkryj wyjątkową okazję do nabycia nowo wybudowanej willi w wyjątkowej cenie w kompleksie turystycznym Hacienda del Álamo Golf Resort, położonym pomiędzy historycznymi miastami Kartagena i Murcja, w samym sercu Costa Cálida. Te nowoczesne wille zostały zaprojektowane z myślą o komforcie, prywatności i elegancji i znajdują się w wyjątkowym otoczeniu poświęconym golfowi i rekreacji. Każda nieruchomość oferuje przestronny rozkład z 3 sypialniami i 2 łazienkami na jednym poziomie. Prywatny solarium na dachu. Dzięki działkom o powierzchni od 378 metrów kwadratowych i powierzchni zabudowanej 111 metrów kwadratowych, domy te oferują dużo miejsca do życia wewnątrz i na zewnątrz. Wysokiej jakości wyposażenie i wykończenie Wille te są wyposażone we wszystkie nowoczesne udogodnienia, aby zapewnić maksymalny komfort i styl, w tym: Ogród z systemem nawadniania kropelkowego W pełni wyposażona kuchnia z szafkami i sprzętem AGD Instalacja klimatyzacji kanałowej Łazienki z meblami, lustrami i kabinami prysznicowymi Aluminiowe okna z przegrodą termiczną i podwójnymi szybami Dostęp do dużego wspólnego basenu z naturalną trawą i placem zabaw Możliwość dodania prywatnego basenu za dodatkową opłatą Luksusowe życie w Hacienda del Álamo Golf Resort Hacienda del Álamo jest znana jako jeden z najlepszych kurortów golfowych w Hiszpanii, oferujący swoim mieszkańcom relaksujący, sportowy i komfortowy styl życia. 18-dołkowe pole golfowe i akademia Obiekty sportowe, w tym korty tenisowe, korty do padla, siłownia i zajęcia fitness Główny klub z panoramicznym widokiem, restauracją serwującą dania kuchni śródziemnomorskiej i słonecznymi tarasami 4-gwiazdkowy hotel i spa zapewniające relaks i dobre samopoczucie Przestrzenie dla całej rodziny, z placami zabaw, basenami i ścieżkami rowerowymi. Tradycyjna hiszpańska miejscowość z sklepami, kawiarniami i nowymi restauracjami, które wkrótce zostaną otwarte. Strategiczna lokalizacja z doskonałymi połączeniami Lotnisko Corvera (Murcja): 18 km (ok. 15 minut) Kartagena: 36 km Centrum Murcji: 40 km Plaże Mar Menor: 28 km Centra handlowe (Dos Mares, Espacio Mediterráneo): mniej niż 30 km Dom Twoich marzeń przy polu golfowym czeka na Ciebie Niezależnie od tego, czy szukasz stałego miejsca zamieszkania, zacisznego miejsca na wakacje, czy też mądrej inwestycji na wybrzeżu Costa Cálida, te wille na polu golfowym Hacienda del Álamo są idealnym wyborem. Skontaktuj się z nami już dziś, aby uzyskać więcej informacji lub umówić się na indywidualną wizytę.
Informacja podana tutaj jest orientacyjna i nie stanowi części żadnej umowy. Oferta może zostać zmieniona lub wycofana bez uprzedniego powiadomienia. Ceny nie obejmują kosztów zakupu
Twoje wymarzone życie w Hiszpanii zaczyna się od naszego podręcznego przewodnika! W 4 krokach pomożemy Ci rozpocząć pracę pod hiszpańskim słońcem.
E-Mail info@gold-estates.be
Biuro w Belgii: Moeistraat 20G, 9830 St-Martens-Latem
Biuro w Hiszpanii: Av. Marina Baixa 11, 03570 La Villa Joyosa, Alicante
© 2026 Gold Estates · Nota prawna · Prywatność · Cookies · BIV Legale Informatie · Mapa strony
Projekt & CRM: Mediaelx
Znajdź swój wymarzony dom, zapisując swoje nieruchomości i otrzymując powiadomienia o nowych dostępnych nieruchomościach
Zarejestruj nowego użytkownikaDziękujemy za kontakt z naszym biurem
We have received your request regarding the property reference: GE2-19500. One of our agents will contact you as soon as possible.
Dziękujemy za kontakt z naszym biurem
We have received your request regarding the property reference: %s. One of our agents will contact you as soon as possible.: GE2-19500
In the meantime, please have a look at this selection of similar properties, that might be of interest to you: