Allereerst bedankt dat je contact met ons hebt opgenomen.
We hebben uw verzoek met betrekking tot de eigenschap referentie ontvangen:GE2-19500. Een van onze agenten neemt zo snel mogelijk contact met u op.
Email info@gold-estates.be
Kantoor België: Moeistraat 20G, 9830 St-Martens-Latem
Kantoor Spanje: Av. Marina Baixa 11, 03570 La Villa Joyosa, Alicante
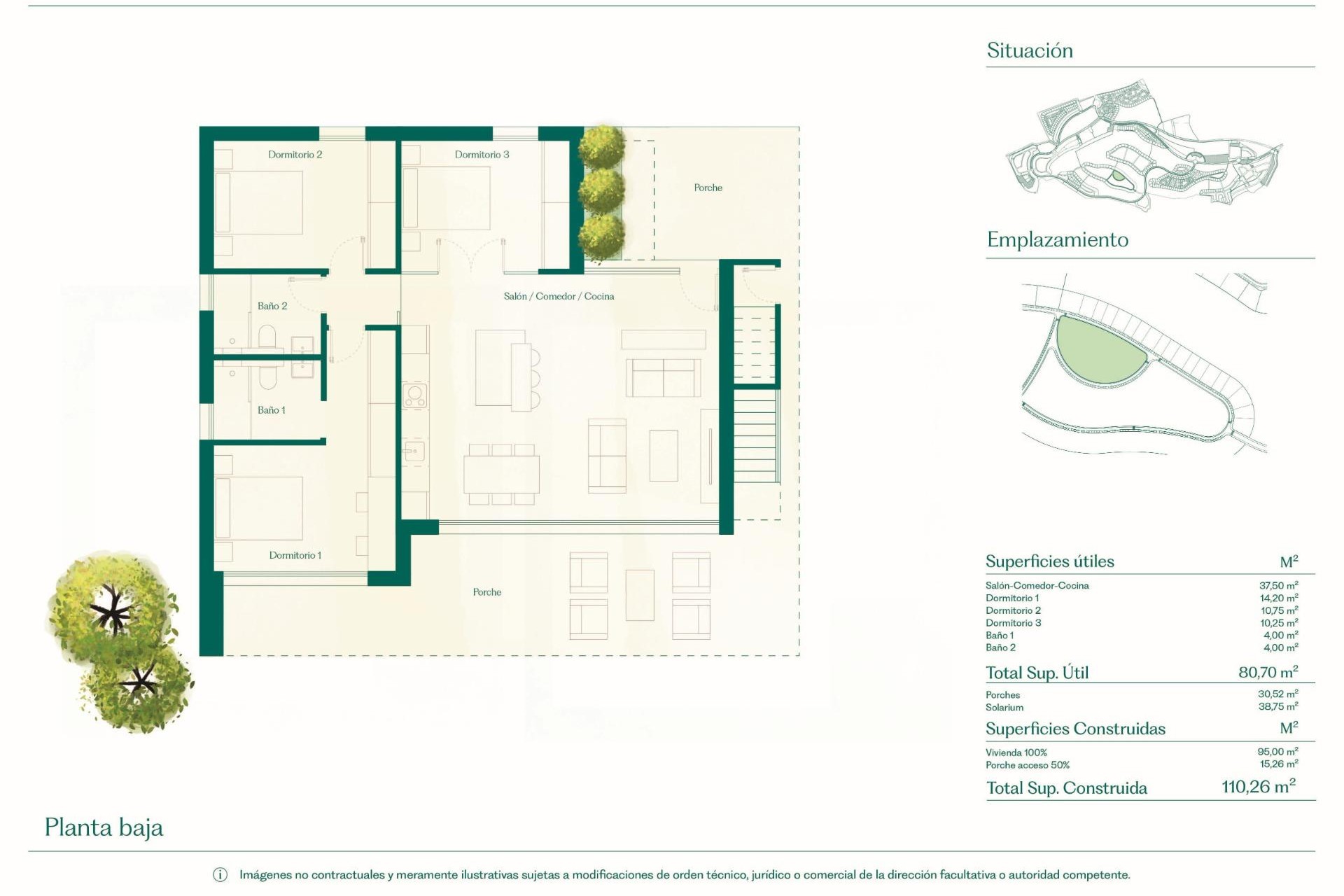
Exklusiva villor i Hacienda del Álamo Golf Resort, Costa Cálida Moderna villor i en av Spaniens bästa golfresorter Upptäck en unik möjlighet att köpa en nybyggd villa till ett exceptionellt pris i semesteranläggningen Hacienda del Álamo Golf Resort, belägen mellan de historiska städerna Cartagena och Murcia, i hjärtat av Costa Cálida. Dessa moderna villor är designade för att erbjuda komfort, avskildhet och elegans, och ligger i en exceptionell miljö dedikerad till golf och fritid. Varje fastighet har en rymlig planlösning med 3 sovrum och 2 badrum på en våning. Privat solterrass på taket. Med tomter från 378 kvadratmeter och en byggnadsyta på 111 kvadratmeter erbjuder dessa bostäder gott om utrymme för både inomhus- och utomhusliv. Högkvalitativa egenskaper och finish Dessa villor är utrustade med alla moderna bekvämligheter för att garantera maximal komfort och stil, inklusive: Trädgård med droppbevattningssystem Fullt utrustat kök med skåp och vitvaror ingår Förinstallation för luftkonditionering Badrum med möbler, speglar och duschväggar Aluminiumfönster med termisk brytning och dubbelglas Tillgång till en stor gemensam pool med naturgräs och lekplats Möjlighet att lägga till en privat pool mot extra kostnad Lyxigt boende på Hacienda del Álamo Golf Resort Hacienda del Álamo är känt för att vara en av Spaniens bästa golfresorter, eftersom det erbjuder sina invånare en avslappnad, sportig och bekväm livsstil. 18-håls golfbana och golfakademi Sportfaciliteter som inkluderar tennis, padel, gym och fitnessklasser Huvudklubbhus med panoramautsikt, en restaurang med medelhavsmat och soliga terrasser 4-stjärnigt hotell och spa för avkoppling och välbefinnande Utrymmen för hela familjen, med lekplatser, pooler och cykelbanor. Traditionell spansk by med butiker, kaféer och nya restauranger som snart öppnar. Strategiskt läge med utmärkta förbindelser Corvera flygplats (Murcia): 18 km (ca 15 minuter) Cartagena: 36 km Murcia centrum: 40 km Mar Menor-stränderna: 28 km Köpcentrum (Dos Mares, Espacio Mediterráneo): mindre än 30 km Ditt drömhus vid golfbanan väntar på dig Oavsett om du letar efter en permanent bostad, en semesterbostad eller en smart investering på Costa Cálida, är dessa villor på golfbanan i Hacienda del Álamo det perfekta valet. Kontakta oss idag för mer information eller för att boka en personlig visning.
Deze informatie is hier onderhevig aan fouten en maakt geen deel uit van een contract. De aanbieding kan zonder kennisgeving worden gewijzigd of ingetrokken. Prijzen zijn exclusief aankoopkosten.
Jouw droomleven in Spanje begint met onze handige gids! In 4 stappen maken we jou wegwijs onder de Spaanse zon.
E-Mail info@gold-estates.be
Kantoor België: Moeistraat 20G, 9830 St-Martens-Latem
Kantoor Spanje: Av. Marina Baixa 11, 03570 La Villa Joyosa, Alicante
Vind uw droomhuis door uw panden te bewaren en meldingen te ontvangen over nieuwe beschikbare panden.
Nieuwe gebruiker registrerenAllereerst bedankt dat je contact met ons hebt opgenomen.
We hebben uw verzoek met betrekking tot de eigenschap referentie ontvangen:GE2-19500. Een van onze agenten neemt zo snel mogelijk contact met u op.
Allereerst bedankt dat je contact met ons hebt opgenomen.
We hebben een aanvraag voor een rapport ontvangen als u de prijs van het onroerend goed met de referentie verlaagt: GE2-19500
Bekijk in de tussentijd eens een selectie van vergelijkbare woningen die voor u van belang kunnen zijn: