First of all, thanks for contacting us.
We have received your request regarding the property reference: GE2-77954. One of our agents will contact you as soon as possible.
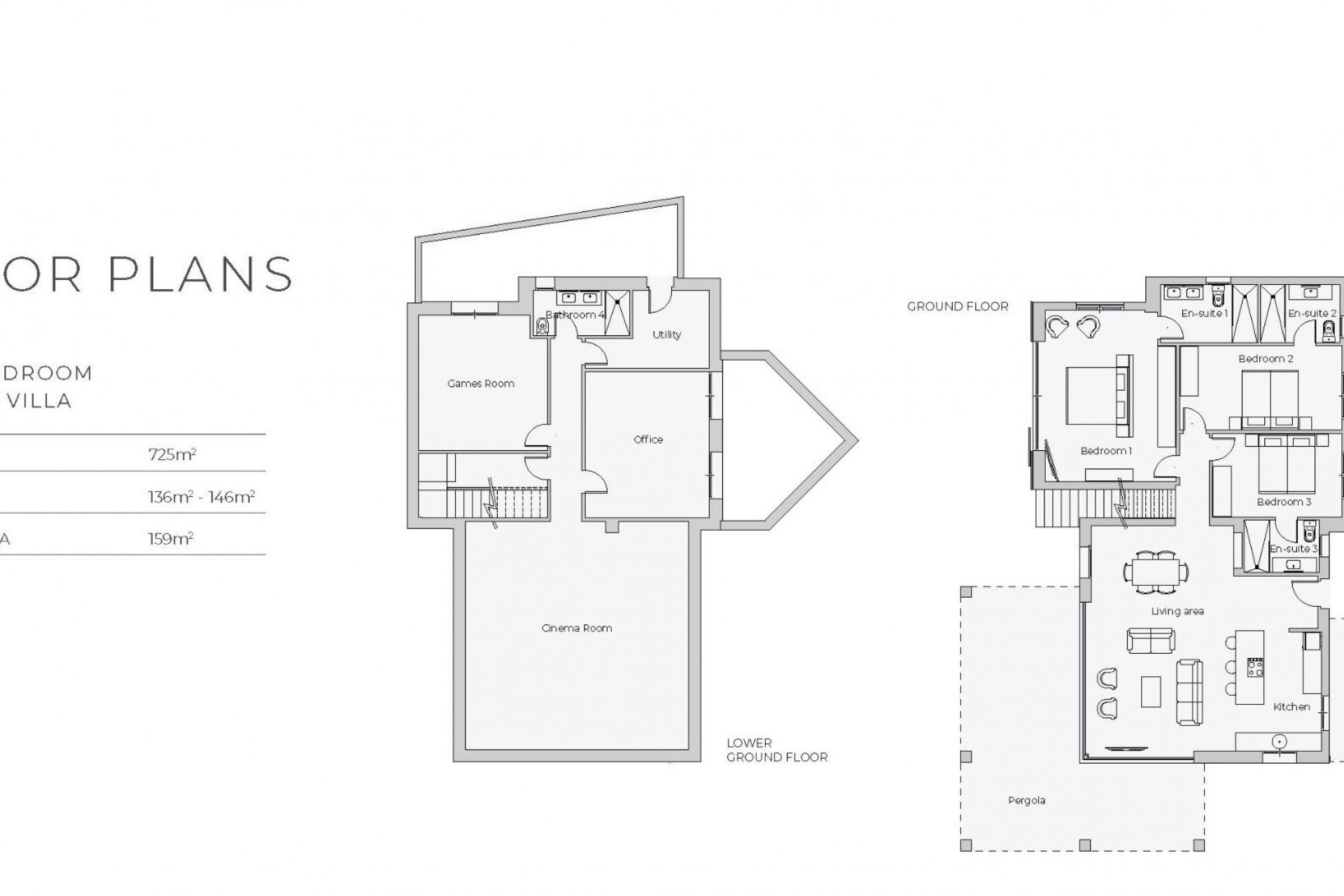
STUNNING NEW BUILD VILLAS IN DESERT SPRINGS RESORT This beautiful modern & stylish development occupies an envious position on the Desert Springs resort, providing a selection of three-bedroom Villas affording stunning views across the championship Indiana course and mountain ranges beyond. A gated front courtyard, deep shady verandas, a private landscaped garden looking directly onto the golf course, individual swimming pool, built-in barbecue and extensive roof terraces are but a few of the properties’ external characteristics. Contemporary design and natural light showcasing an overall feeling of space are the outstanding characteristics of the sophisticated interiors that offer stylish homes with modern appeal. Features include a spacious internal reception area that opens out with a ‘level through’ floor onto the covered verandas and garden to offer over 93m2 of combined interior/exterior living and dining space, designed to be used as one in the region’s specially privileged climate. The master bedroom with en-suite has direct access to the extensive veranda and swimming pool. There are two further bedrooms, both with en-suite bathrooms and cloakroom. Downstairs the vast lower ground floor presents a games room, cinema room, utility room, office and fourth bathroom. Double glazing, high quality fitted kitchen, integrated white goods and bedroom wardrobes, and security fittings are standard throughout. A mechanical ventilation system to lower and ground floor and photovoltaic panels connected to the hot water cylinder with individually controlled hot/cold air-conditioning units to the living room and bedrooms, cater fully for all temperature control requirements.