Tout d’abord, merci de nous contacter.
Nous avons reçu votre demande concernant la référence du bien:GE2-77954. Un de nos agents vous contactera dans les meilleurs délais.
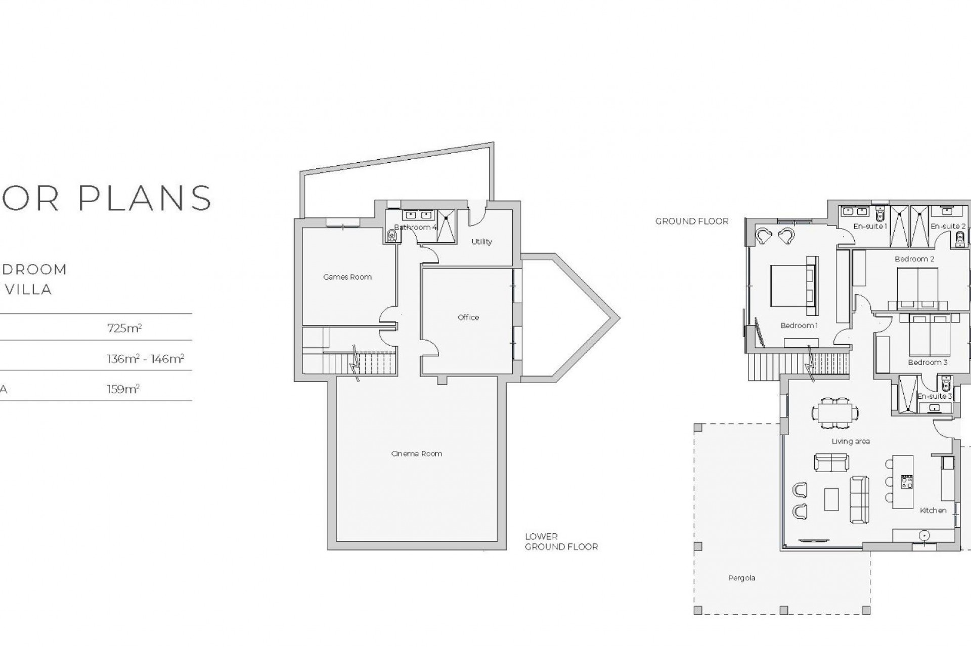
DE SUPERBES VILLAS NEUVES DANS DESERT SPRINGS RESORT Ce magnifique projet moderne et élégant occupe une position enviable sur le site de Desert Springs. Il propose une sélection de villas de trois chambres à coucher offrant une vue imprenable sur le parcours de championnat d'Indiana et les chaînes de montagnes au-delà. Une cour fermée, de profondes vérandas ombragées, un jardin paysager privé donnant directement sur le parcours de golf, une piscine individuelle, un barbecue intégré et de vastes terrasses sur le toit ne sont que quelques-unes des caractéristiques extérieures des propriétés. Le design contemporain et la lumière naturelle donnant une impression générale d'espace sont les caractéristiques exceptionnelles des intérieurs sophistiqués qui offrent des maisons élégantes avec un attrait moderne. Les caractéristiques comprennent une réception intérieure spacieuse qui s'ouvre de plain-pied sur les vérandas couvertes et le jardin pour offrir plus de 93 m2 d'espace combiné intérieur/extérieur pour vivre et manger, conçu pour être utilisé comme un tout dans le climat particulièrement privilégié de la région. La chambre principale, avec salle de bains, a un accès direct à la vaste véranda et à la piscine. Il y a deux autres chambres, toutes deux avec salle de bains en-suite et vestiaire. Le vaste rez-de-chaussée inférieur comprend une salle de jeux, une salle de cinéma, une buanderie, un bureau et une quatrième salle de bains. Le double vitrage, une cuisine équipée de haute qualité, des produits blancs intégrés et des armoires de chambre, ainsi que des équipements de sécurité sont standard dans l'ensemble de la propriété. Un système de ventilation mécanique au rez-de-chaussée et à l'étage inférieur, des panneaux photovoltaïques reliés au ballon d'eau chaude et des unités de climatisation chaudes/froides à commande individuelle dans le salon et les chambres répondent à toutes les exigences en matière de contrôle de la température.