Allereerst bedankt dat je contact met ons hebt opgenomen.
We hebben uw verzoek met betrekking tot de eigenschap referentie ontvangen:GE2-77954. Een van onze agenten neemt zo snel mogelijk contact met u op.
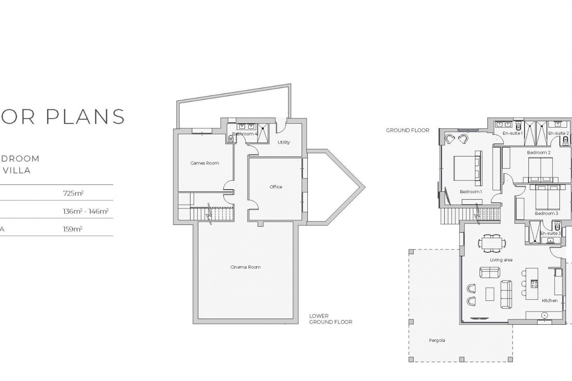
VERBLUFFENDE NIEUWBOUW VILLA'S IN DESERT SPRINGS RESORT Deze prachtige moderne en stijlvolle ontwikkeling heeft een benijdenswaardige positie op het Desert Springs resort en biedt een selectie van drie-slaapkamer villa's met een prachtig uitzicht over de championship Indiana course en de bergketens daarachter. Een omheinde binnenplaats, diepe schaduwrijke veranda's, een eigen aangelegde tuin met uitzicht direct op de golfbaan, individueel zwembad, ingebouwde barbecue en uitgebreide dakterrassen zijn slechts enkele van de externe kenmerken van de woningen. Hedendaags design en natuurlijk licht met een algemeen gevoel van ruimte zijn de opvallende kenmerken van de verfijnde interieurs die stijlvolle woningen met een moderne uitstraling bieden. Kenmerken zijn een ruime interne ontvangstruimte die via een 'gelijkvloerse' vloer uitkomt op de overdekte veranda's en de tuin en meer dan 93 m2 gecombineerde woon- en eetruimte binnen en buiten biedt, ontworpen om als één geheel te worden gebruikt in het bijzonder bevoorrechte klimaat van de regio. De hoofdslaapkamer met en-suite badkamer heeft directe toegang tot de grote veranda en het zwembad. Er zijn nog twee slaapkamers, beide met eigen badkamer en garderobe. Beneden op de grote benedenverdieping bevinden zich een speelkamer, bioscoopzaal, bijkeuken, kantoor en vierde badkamer. Dubbele beglazing, hoge kwaliteit inbouwkeuken, geïntegreerd witgoed en slaapkamerkasten, en veiligheidsvoorzieningen zijn standaard. Een mechanisch ventilatiesysteem op de beneden- en benedenverdieping en fotovoltaïsche panelen aangesloten op de warmwaterboiler met individueel regelbare warm/koud-airconditioning units in de woonkamer en slaapkamers, voorzien volledig in alle vereisten voor temperatuurregeling.