First of all, thanks for contacting us.
We have received your request regarding the property reference: GEE-81322. One of our agents will contact you as soon as possible.
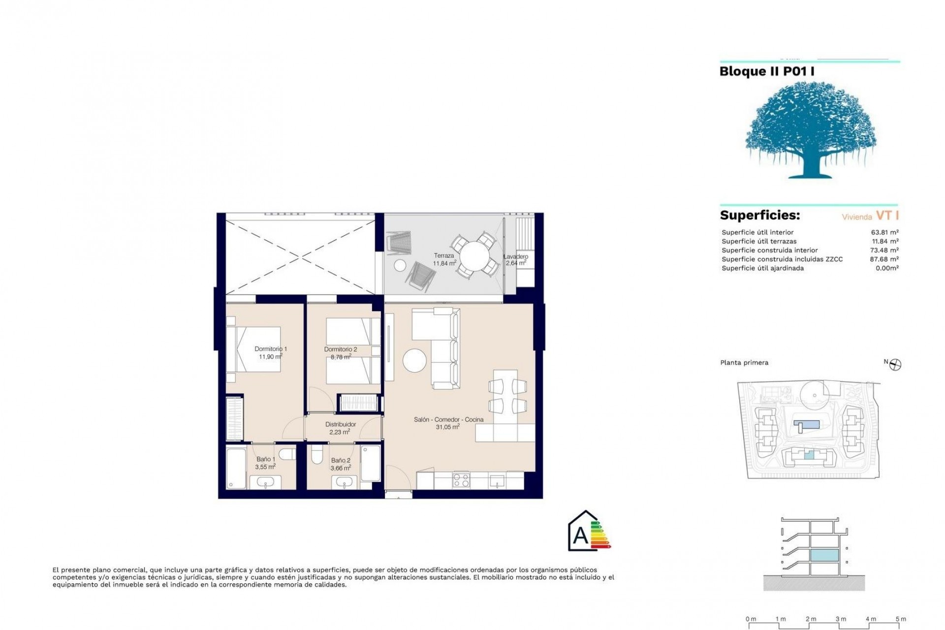
Exclusive New-Build Residential Complex Near the Sea and City Center in Denia Live Between the Mediterranean and the Montgó Natural Park Located in a privileged area of Denia, this new residential complex offers the perfect balance between the Mediterranean Sea and the impressive Montgó Mountain, a protected natural park. Enjoy the best of both worlds: stunning beaches of sand rock, breathtaking landscapes, and a vibrant city full of history and culture. Denia: A Charming Coastal City Denia, with a population of 43,000 residents, is a renowned tourist and gastronomic destination on the Costa Blanca. This port city offers direct ferry connections to the Balearic Islands, excellent infrastructure, and easy access to Alicante and Valencia via major roads and public transportation. The city is famous for: Its historic heritage, including the iconic Denia Castle. Its world-class cuisine, recognized by UNESCO as a Creative City of Gastronomy. Festivals of National Tourist Interest, such as the Bous a la Mar and the Fallas. A warm and pleasant climate year-round, perfect for outdoor activities. A Prime Location with Everything at Your Fingertips This new development is situated in one of Denia’s most sought-after areas, just 10 minutes on foot from the city center and a short walk to the beach. Supermarkets – 2-minute walk. Denia’s main shopping streets – 10-minute walk. Beaches – A few minutes on foot. Denia Port and Marina – 2 km. Alicante and Valencia Airports – 1-hour drive. Access to major highways – Direct connections to AP-7 and N-332. Modern Homes in a Mediterranean-Style Residential Complex This new development features 63 exclusive homes of 2 and 3 bedrooms, distributed across three buildings with a contemporary Mediterranean design. Each residence includes: A private storage room and a parking space. Spacious and bright interiors, designed for comfort. Fully equipped kitchens with top-brand appliances. Energy-efficient features, including aerothermal climate control. High-quality finishes, such as PVC carpentry, Climalit windows, and Stadip security glass. A Unique Living Experience Surrounded by Nature The 10,000 m² of communal green areas have been designed by expert landscapers, respecting the natural beauty of the surroundings. Within the complex, you will find: A protected 19th-century farmhouse and a century-old ficus tree. A swimming pool and solarium, perfect for relaxing. A gym, paddle tennis court, and children’s play area. A social club for residents. Bicycle parking and electric vehicle charging stations. An Ideal Home for Year-Round Living or Investment This residential complex is perfect for permanent living or as a smart investment in one of the most attractive areas of the Costa Blanca. With top-tier amenities, a prime location, and an exceptional design, this is a rare opportunity to own a modern home in Denia. Contact us today for more details or to schedule a visit!