Dziękujemy za kontakt z naszym biurem
We have received your request regarding the property reference: GEE-81322. One of our agents will contact you as soon as possible.
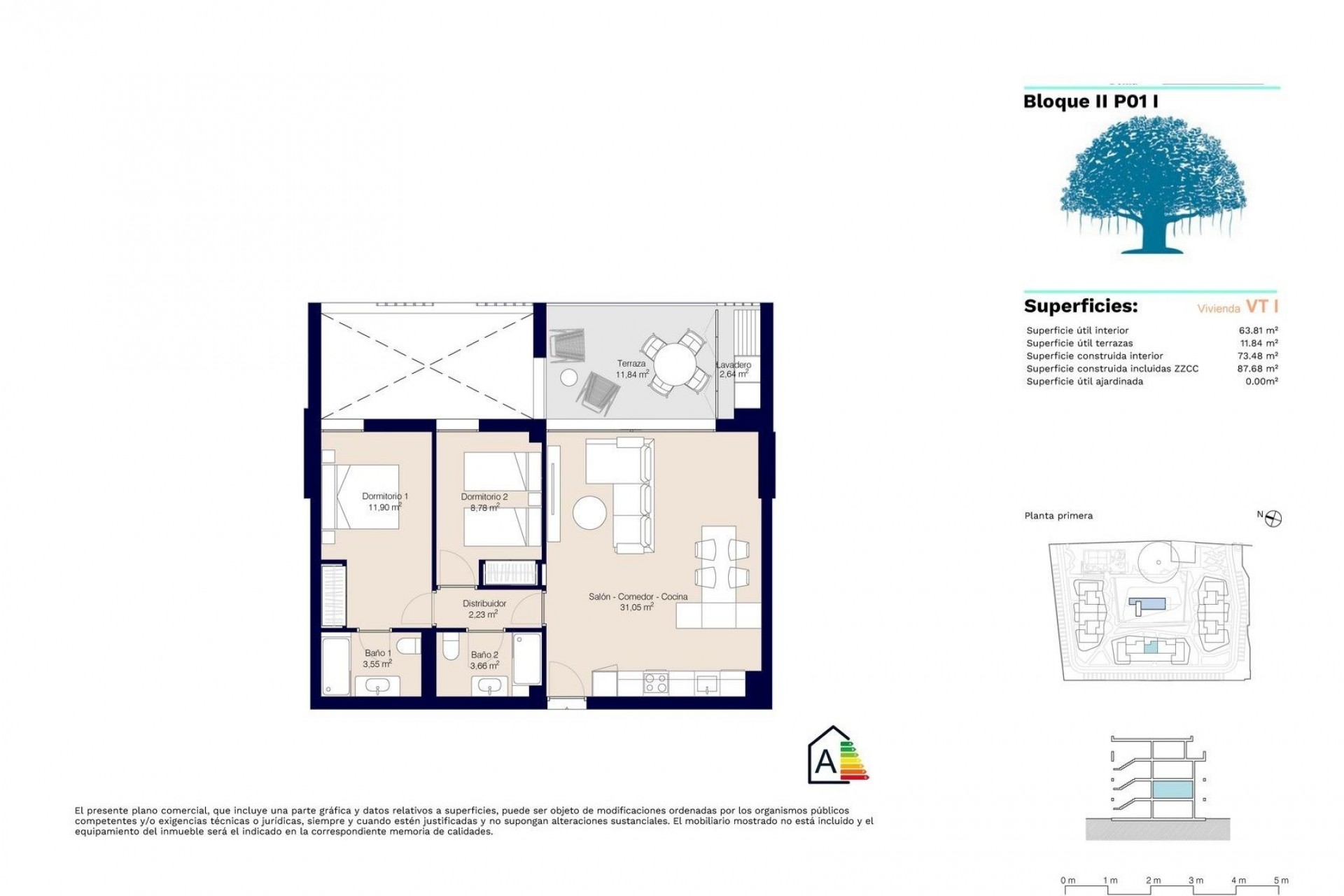
Ekskluzywny nowy kompleks mieszkaniowy w pobliżu morza i centrum miasta w Denii Życie między Morzem Śródziemnym a parkiem przyrody Montgó Położony w uprzywilejowanej części Denii, ten nowy kompleks mieszkaniowy oferuje idealną równowagę między Morzem Śródziemnym a imponującą górą Montgó, chronionym parkiem przyrody. Ciesz się tym, co najlepsze z obu światów: oszałamiającymi plażami z piaskiem i skałami, zapierającymi dech w piersiach krajobrazami oraz tętniącym życiem miastem pełnym historii i kultury. Denia: Urocze nadmorskie miasto Denia, licząca 43 000 mieszkańców, jest znanym ośrodkiem turystycznym i gastronomicznym na wybrzeżu Costa Blanca. To miasto portowe oferuje bezpośrednie połączenia promowe z Balearami, doskonałą infrastrukturę i łatwy dostęp do Alicante i Walencji za pośrednictwem głównych dróg i transportu publicznego. Miasto słynie z: Jego historycznego dziedzictwa, w tym kultowego zamku Denia. Światowej klasy kuchni, uznanej przez UNESCO za Kreatywne Miasto Gastronomii. Festiwali o narodowym znaczeniu turystycznym, takich jak Bous a la Mar i Fallas. Ciepły i przyjemny klimat przez cały rok, idealny do aktywności na świeżym powietrzu. Doskonała lokalizacja i wszystko na wyciągnięcie ręki Ta nowa inwestycja znajduje się w jednym z najbardziej poszukiwanych obszarów Denii, zaledwie 10 minut pieszo od centrum miasta i w odległości krótkiego spaceru od plaży. Supermarkety - 2 minuty spacerem. Główne ulice handlowe Denii - 10 minut spacerem. Plaże - kilka minut pieszo. Port i przystań w Denii - 2 km. Lotniska w Alicante i Walencji - 1 godzina jazdy samochodem. Dostęp do głównych autostrad - bezpośrednie połączenia z AP-7 i N-332. Nowoczesne domy w kompleksie mieszkaniowym w stylu śródziemnomorskim Ta nowa inwestycja obejmuje 63 ekskluzywne domy z 2 i 3 sypialniami, rozmieszczone w trzech budynkach o współczesnym śródziemnomorskim designie. Każda rezydencja obejmuje: prywatną komórkę lokatorską i miejsce parkingowe. Przestronne i jasne wnętrza zaprojektowane z myślą o komforcie. W pełni wyposażone kuchnie z urządzeniami najlepszych marek. Energooszczędne funkcje, w tym klimatyzacja aerotermalna. Wysokiej jakości wykończenia, takie jak stolarka PCV, okna Climalit i szkło antywłamaniowe Stadip. Wyjątkowe doświadczenie życia w otoczeniu natury 10 000 m² wspólnych terenów zielonych zostało zaprojektowanych przez doświadczonych architektów krajobrazu, z poszanowaniem naturalnego piękna otoczenia. Na terenie kompleksu znajdują się: Chroniony XIX-wieczny dom wiejski i stuletnie drzewo figowe. Basen i solarium, idealne do relaksu. Siłownia, kort do padla i plac zabaw dla dzieci. Klub towarzyski dla mieszkańców. Parking dla rowerów i stacje ładowania pojazdów elektrycznych. Idealny dom na całoroczne życie lub inwestycję Ten kompleks mieszkaniowy jest idealny do stałego zamieszkania lub jako inteligentna inwestycja w jednym z najbardziej atrakcyjnych obszarów Costa Blanca. Dzięki najwyższej klasy udogodnieniom, doskonałej lokalizacji i wyjątkowemu projektowi, jest to rzadka okazja do posiadania nowoczesnego domu w Denii. Skontaktuj się z nami już dziś, aby uzyskać więcej informacji lub umówić się na wizytę!