Allereerst bedankt dat je contact met ons hebt opgenomen.
We hebben uw verzoek met betrekking tot de eigenschap referentie ontvangen:GEE-81322. Een van onze agenten neemt zo snel mogelijk contact met u op.
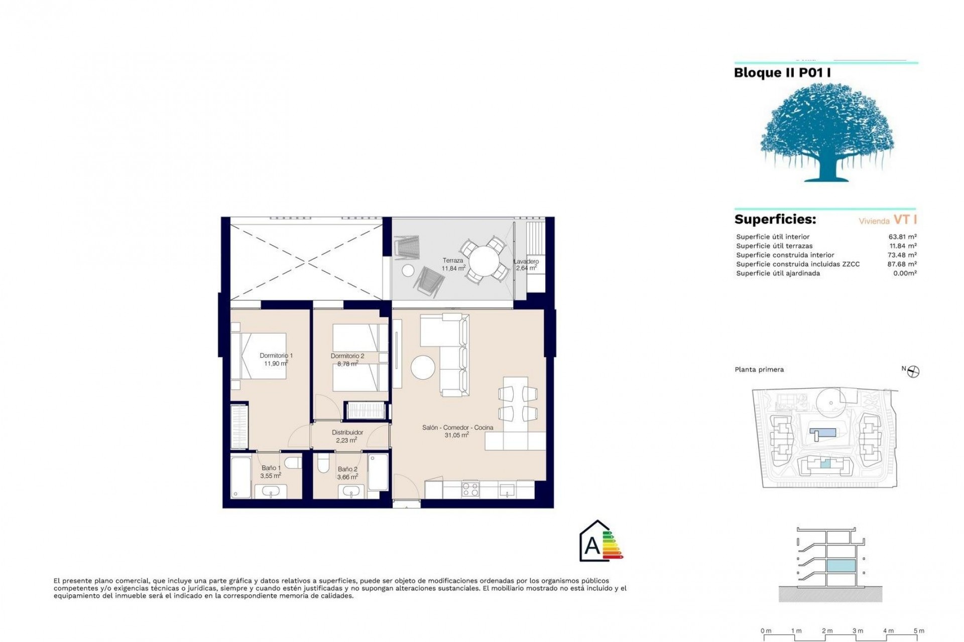
Exclusief nieuwbouwcomplex vlakbij de zee en het stadscentrum in Denia Wonen tussen de Middellandse Zee en het Montgó Natuurpark Dit nieuwe wooncomplex ligt in een bevoorrechte wijk van Denia en biedt de perfecte balans tussen de Middellandse Zee en de indrukwekkende berg Montgó, een beschermd natuurpark. Geniet van het beste van twee werelden: prachtige zand- en rotsstranden, adembenemende landschappen en een bruisende stad vol geschiedenis en cultuur. Denia: Een charmante kuststad Denia, met een bevolking van 43.000 inwoners, is een bekende toeristische en gastronomische bestemming aan de Costa Blanca. Deze havenstad biedt directe veerverbindingen met de Balearen, een uitstekende infrastructuur en gemakkelijke toegang tot Alicante en Valencia via de hoofdwegen en het openbaar vervoer. De stad staat bekend om: Het historische erfgoed, waaronder het iconische kasteel van Denia. De keuken van wereldklasse, erkend door UNESCO als Creatieve Gastronomiestad. Festivals van Nationaal Toeristisch Belang, zoals de Bous a la Mar en de Fallas. Het hele jaar door een warm en aangenaam klimaat, perfect voor buitenactiviteiten. Een toplocatie met alles binnen handbereik Dit nieuwe project ligt in een van de meest gewilde wijken van Denia, op slechts 10 minuten lopen van het stadscentrum en een korte wandeling naar het strand. Supermarkten - 2 minuten lopen. De belangrijkste winkelstraten van Denia - 10 minuten lopen. Stranden - Een paar minuten te voet. Haven en jachthaven van Denia - 2 km. Vliegvelden Alicante en Valencia - 1 uur rijden. Toegang tot belangrijke snelwegen - Directe verbindingen met AP-7 en N-332. Moderne woningen in een wooncomplex in mediterrane stijl Dit nieuwe project bestaat uit 63 exclusieve woningen met 2 en 3 slaapkamers, verdeeld over drie gebouwen met een eigentijds mediterraan design. Elke woning is inclusief: Een eigen berging en een parkeerplaats. Ruime en lichte interieurs, ontworpen voor comfort. Volledig uitgeruste keukens met apparatuur van topmerken. Energie-efficiënte functies, waaronder aerothermische klimaatregeling. Hoogwaardige afwerking, zoals PVC timmerwerk, Climalit ramen en Stadip veiligheidsglas. Een unieke woonervaring midden in de natuur De 10.000 m² gemeenschappelijke groene zones zijn ontworpen door deskundige tuinarchitecten, met respect voor de natuurlijke schoonheid van de omgeving. Binnen het complex vindt u: Een beschermde 19e-eeuwse boerderij en een eeuwenoude ficusboom. Een zwembad en solarium, perfect om te ontspannen. Een fitnessruimte, paddle tennisbaan en kinderspeelplaats. Een sociale club voor bewoners. Fietsenstalling en oplaadpunten voor elektrische auto's. Een ideaal huis om het hele jaar door te wonen of te investeren Dit wooncomplex is perfect voor permanente bewoning of als slimme investering in een van de meest aantrekkelijke gebieden van de Costa Blanca. Met eersteklas voorzieningen, een toplocatie en een uitzonderlijk ontwerp is dit een zeldzame kans om een modern huis in Denia te bezitten. Neem vandaag nog contact met ons op voor meer informatie of om een bezichtiging te plannen!