En primer lugar, gracias por contactarnos.
Hemos recibido su solicitud con respecto a la referencia de propiedad:GE2-62232. Uno de nuestros agentes se pondrá en contacto con usted lo antes posible.
Email info@gold-estates.be
Oficina en Bélgica: Moeistraat 20G, 9830 St-Martens-Latem
Oficina en España: Av. Marina Baixa 11, 03570 La Villa Joyosa, Alicante
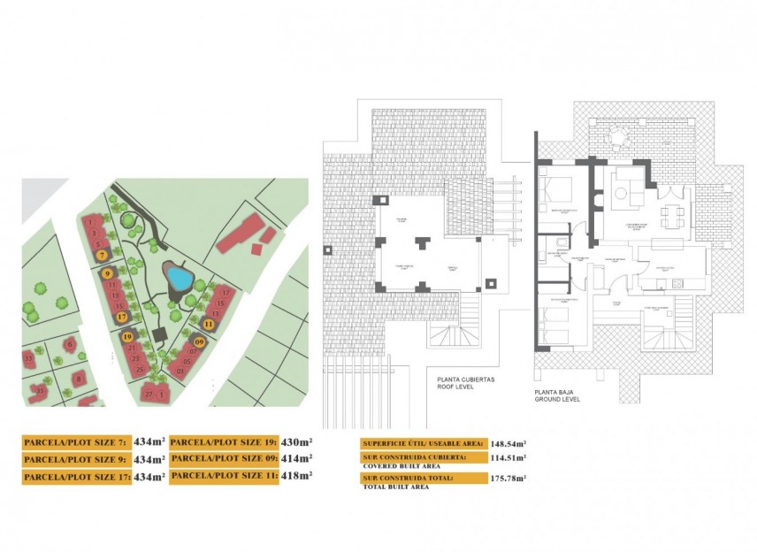
PAREADO LLAVE EN MANO EN FUENTE ALAMO, MURCIA Residencial de adosados, villas independientes y pareados en Fuente Álamo, Murcia. Hay siete modelos diferentes de casas para elegir, diseñados para adaptarse al gusto de todos. Diseños rústicos combinados con materiales de primera calidad y un enfoque en el espacio de vida cómodo hay algo para todos. Los residentes de esta comunidad privada de hermosas y amplias casas también podrán disfrutar de sus propios jardines y piscinas comunitarias. Este pareado de diseño inusual tiene 2 dormitorios y 1 baño, cocina independiente, salón con puertas de patio que dan acceso al porche cubierto y a la terraza semicubierta de la azotea. Tiene la opción de una piscina privada con un coste adicional. Fuente Álamo de Murcia es una localidad y municipio de la Región de Murcia, en el sur de España. Está situada a 22 km al noroeste de Cartagena y a 35 km al suroeste de Murcia. La ciudad se encuentra en la cuenca del Mar Menor, rodeada por las sierras de Algarrobo, Los Gómez, Los Victorias y el Carrascoy. El agua de estas montañas fluye hacia la Rambla de Fuente Álamo y luego hacia el Mar Menor. Fuente Álamo se encuentra a 30 minutos del aeropuerto de Murcia - Corvera.
Esta información que se proporciona aquí está sujeta a errores y no forma parte de ningún contrato. La oferta se puede cambiar o retirar sin previo aviso. Los precios no incluyen los costes de compra
¡La vida de tus sueños en España comienza con nuestra práctica guía! En 4 pasos, te ayudaremos a empezar bajo el sol español.
E-Mail info@gold-estates.be
Oficina en Bélgica: Moeistraat 20G, 9830 St-Martens-Latem
Oficina en España: Av. Marina Baixa 11, 03570 La Villa Joyosa, Alicante
© 2026 Gold Estates · Nota legal · Privacidad · Cookies · BIV Legale Informatie · Mapa Web
Diseño & CRM: Mediaelx
Encuentra tu hogar ideal guardando tus propiedades y recibiendo alertas sobre nuevas propiedades disponibles
Registrar nuevo usuarioEn primer lugar, gracias por contactarnos.
Hemos recibido su solicitud con respecto a la referencia de propiedad:GE2-62232. Uno de nuestros agentes se pondrá en contacto con usted lo antes posible.
En primer lugar, gracias por contactarnos.
Hemos recibido una solicitud de informe si baja el precio de la propiedad con la referencia: GE2-62232
Mientras tanto, eche un vistazo a esta selección de propiedades similares que podrían ser de su interés: