Tout d’abord, merci de nous contacter.
Nous avons reçu votre demande concernant la référence du bien:GE2-62232. Un de nos agents vous contactera dans les meilleurs délais.
Email info@gold-estates.be
Bureau en Belgique: Moeistraat 20G, 9830 St-Martens-Latem
Bureau en Espagne: Av. Marina Baixa 11, 03570 La Villa Joyosa, Alicante
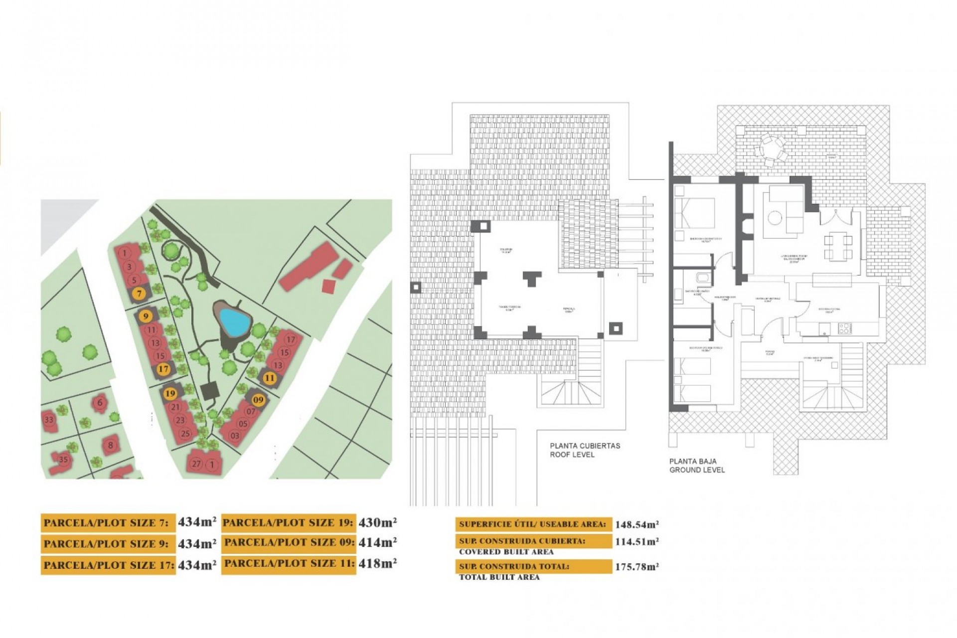
VILLA JUMELÉE PRÊTE À L'EMPLOI À FUENTE ALAMO, MURCIA Résidence de maisons de ville, villas indépendantes et jumelées à Fuente Álamo, Murcia. Vous pouvez choisir parmi sept modèles de maisons différents, conçus pour répondre aux goûts de chacun. Des conceptions rustiques combinées à des matériaux de première qualité et un accent mis sur un espace de vie confortable, il y en a pour tous les goûts. Les résidents de cette communauté privée de belles maisons spacieuses pourront également profiter de leurs propres jardins et piscines communs. Cette villa jumelée au design inhabituel comprend 2 chambres à coucher et 1 salle de bains, une cuisine indépendante, un salon avec des portes-fenêtres donnant sur le porche couvert et une terrasse semi-couverte sur le toit. Une option pour une piscine privée à un coût supplémentaire. Fuente Álamo de Murcia est une ville et une municipalité de la région de Murcie, dans le sud de l'Espagne. Elle est située à 22 km au nord-ouest de Carthagène et à 35 km au sud-ouest de Murcie. La ville se trouve dans le bassin de la Mar Menor, entourée par les montagnes d'Algarrobo, Los Gómez, Los Victorias et le Carrascoy. L'eau de ces montagnes s'écoule dans la Rambla de Fuente Álamo et ensuite dans la Mar Menor. Fuente Álamo se trouve à 30 minutes de l'aéroport de Murcia - Corvera.
Cette information donnée ici est sujette à des erreurs et ne fait partie d'aucun contrat. L'offre peut être modifiée ou retirée sans préavis. Les prix n'incluent pas les coûts d'achat
Votre vie de rêve en Espagne commence avec notre guide pratique ! En 4 étapes, nous vous guiderons sous le soleil espagnol.
E-Mail info@gold-estates.be
Bureau en Belgique: Moeistraat 20G, 9830 St-Martens-Latem
Bureau en Espagne: Av. Marina Baixa 11, 03570 La Villa Joyosa, Alicante
© 2026 Gold Estates · Mentions légales · Intimité · Cookies · BIV Legale Informatie · Plan du site
Conception & CRM: Mediaelx
Trouvez votre maison de rêve en sauvegardant vos propriétés et en recevant des alertes sur les nouvelles propriétés disponibles
Enregistrer un nouvel utilisateurTout d’abord, merci de nous contacter.
Nous avons reçu votre demande concernant la référence du bien:GE2-62232. Un de nos agents vous contactera dans les meilleurs délais.
Tout d’abord, merci de nous contacter.
Nous avons reçu une demande de rapport si vous abaissez le prix de la propriété avec la référence: GE2-62232
En attendant, jetez un œil à cette sélection de propriétés similaires qui pourraient vous intéresser: