Allereerst bedankt dat je contact met ons hebt opgenomen.
We hebben uw verzoek met betrekking tot de eigenschap referentie ontvangen:GE2-62232. Een van onze agenten neemt zo snel mogelijk contact met u op.
Email info@gold-estates.be
Kantoor België: Moeistraat 20G, 9830 St-Martens-Latem
Kantoor Spanje: Av. Marina Baixa 11, 03570 La Villa Joyosa, Alicante
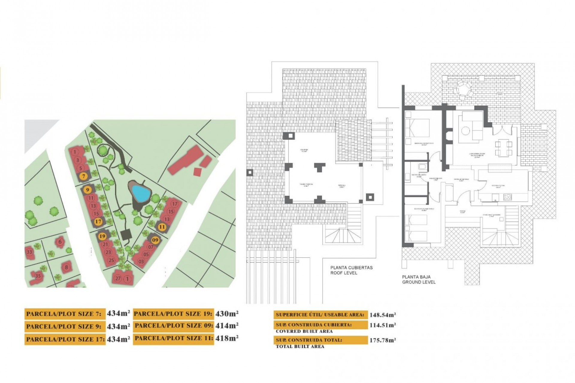
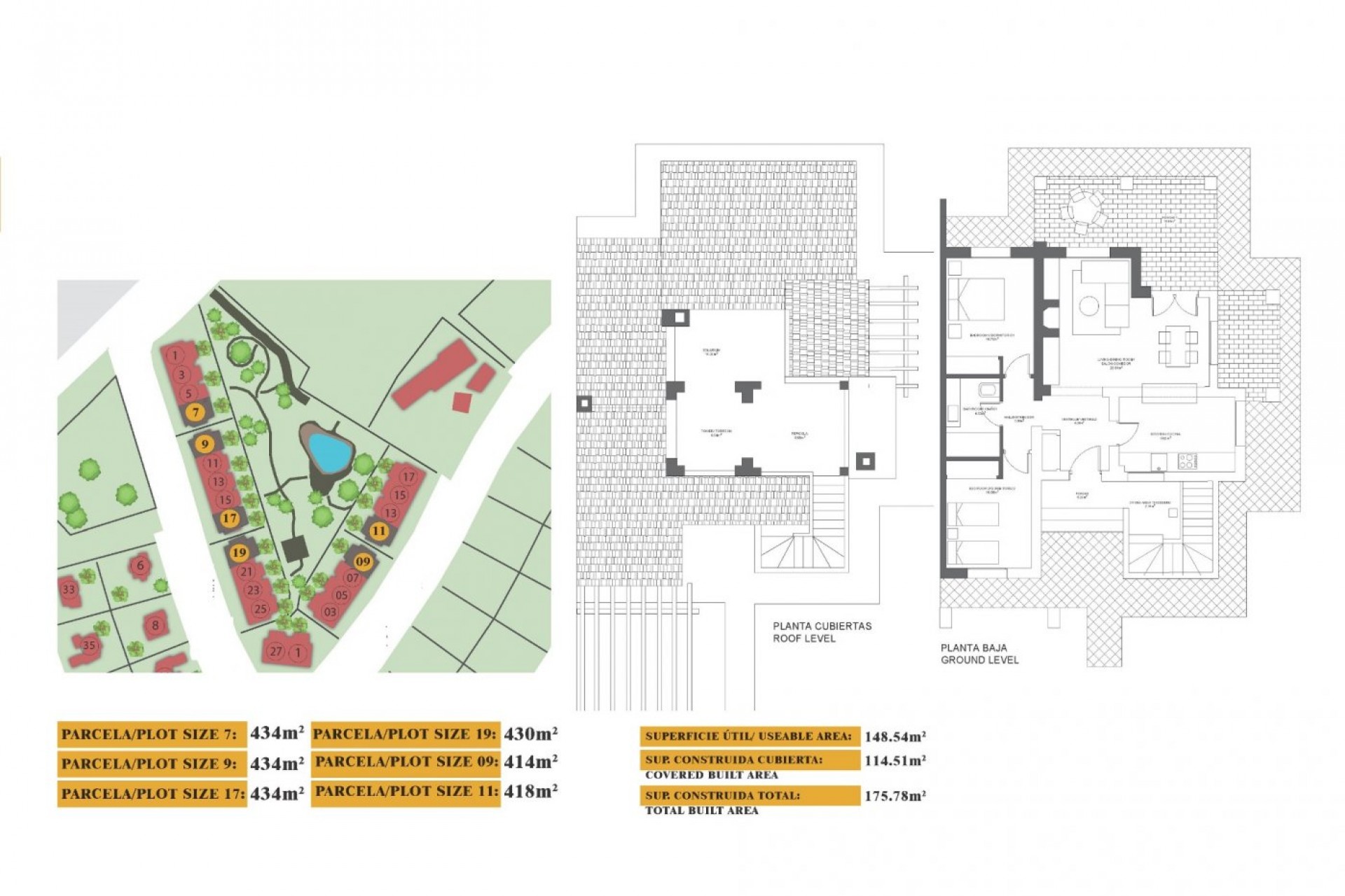
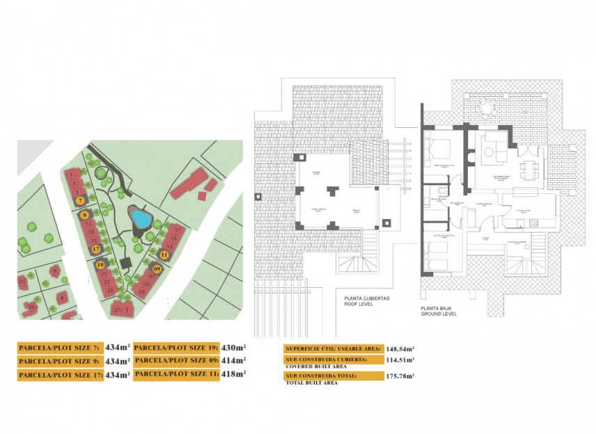
NYCKELFÄRDIGA PARHUS I FUENTE ALAMO, MURCIA Bostäder i radhus, fristående och parhus villor i Fuente Álamo, Murcia. Det finns sju olika modeller av hus att välja mellan, utformade för att passa allas smak. Rustik design i kombination med material av högsta kvalitet och fokus på bekvämt boende finns det något för alla. Invånarna i detta privata samhälle med vackra, rymliga hus kommer också att kunna njuta av sina egna gemensamma trädgårdar och pooler. Denna ovanligt designade parhusvilla har 2 sovrum och 1 badrum, oberoende kök, vardagsrum med altandörrar som leder till den täckta verandan och den halvtäckta takterrassen. Ett alternativ för en privat pool mot en extra kostnad. Fuente Álamo de Murcia är en stad och kommun i regionen Murcia i södra Spanien. Den ligger 22 km nordväst om Cartagena och 35 km sydväst om Murcia. Staden ligger i bassängen av Mar Menor omgiven av bergen Algarrobo, Los Gómez, Los Victorias och Carrascoy. Vattnet från dessa berg strömmar ner i Rambla de Fuente Álamo och sedan ut i Mar Menor. Fuente Álamo ligger 30 minuter från flygplatsen Murcia-Corvera.
Deze informatie is hier onderhevig aan fouten en maakt geen deel uit van een contract. De aanbieding kan zonder kennisgeving worden gewijzigd of ingetrokken. Prijzen zijn exclusief aankoopkosten.
Jouw droomleven in Spanje begint met onze handige gids! In 4 stappen maken we jou wegwijs onder de Spaanse zon.
E-Mail info@gold-estates.be
Kantoor België: Moeistraat 20G, 9830 St-Martens-Latem
Kantoor Spanje: Av. Marina Baixa 11, 03570 La Villa Joyosa, Alicante
Vind uw droomhuis door uw panden te bewaren en meldingen te ontvangen over nieuwe beschikbare panden.
Nieuwe gebruiker registrerenAllereerst bedankt dat je contact met ons hebt opgenomen.
We hebben uw verzoek met betrekking tot de eigenschap referentie ontvangen:GE2-62232. Een van onze agenten neemt zo snel mogelijk contact met u op.
Allereerst bedankt dat je contact met ons hebt opgenomen.
We hebben een aanvraag voor een rapport ontvangen als u de prijs van het onroerend goed met de referentie verlaagt: GE2-62232
Bekijk in de tussentijd eens een selectie van vergelijkbare woningen die voor u van belang kunnen zijn: